2 bedroom Flat to rent, High Street, Sittingbourne, Kent, ME10
Available Unfurnished, from 15/03/2025
Features and Description
- Two Bedroom Apartment
- Epc Rating C
- Brand New Conversion
- Two Allocated Parking Spaces
- Spacious
We are delighted to present to you this neutrally decorated, two-bedroom flat that is currently available to let in Sittingbourne. The property is in excellent condition and is perfect for anyone seeking a contemporary living space with convenience at its core.
Upon entering the property, you will be greeted by a well-sized, open-plan kitchen. The kitchen is fully equipped with all the necessary appliances and is perfect for cooking up a storm for family and friends. The kitchen adjoins to a spacious reception room, offering a bright and versatile space where you can relax, dine, or entertain.
The flat boasts two bedrooms, offering ample space for personalisation and relaxation. The property also benefits from a modern, well-kept bathroom, catering to all your needs.
An added advantage of this property is its EPC rating of C, indicating that it is reasonably energy efficient. This could potentially reduce your energy bills and is better for the environment. Additionally, it falls under the Council Tax Band A, which is an added financial benefit.
The property also comes with secure parking, a unique feature that adds to its appeal. This is particularly convenient for car owners and offers peace of mind in terms of vehicle security.
The flat is situated in a High Street location with fantastic public transport links and local amenities, making your daily commute and everyday living hassle-free.
This property is ideally suited for long-term rental. Don't miss this opportunity to secure this flat with its unique blend of comfort, convenience, and style. Book a viewing today!
Location
Situated on the High Street Sittingbourne surrounded by an array of convenience stores, cafes, coffee shops, bars and soon to be new cinema and restaurants. Short walk to the train station and industrial park with further array of shopping facilities and takeaways.
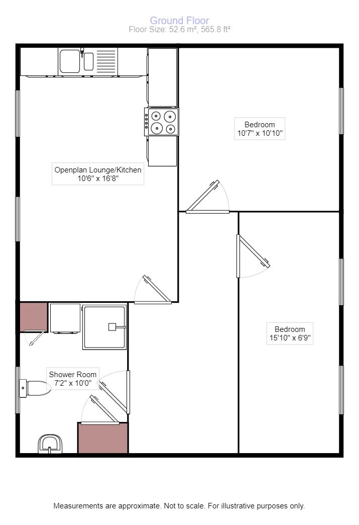
Hallway
0 x 0
Spacious
Openplan Lounge / Kitchen
0 x 0
Kitchen with integrated appliances, oven, hob, dishwasher and fridge/freezer
Shower Room
0 x 0
Good size room with shower, wc and sink and washing machine
Bedroom
0 x 0
Fits large double bed. Tv wall bracket installed
Bedroom
0 x 0
Fits either a double or two singles
IMPORTANT NOTE TO POTENTIAL RENTERS:
We endeavour to make our particulars accurate and reliable, however, they do not constitute or form part of an offer or any contract and none is to be relied upon as statements of representation or fact. The services, systems and appliances listed in this specification have not been tested by us and no guarantee as to their operating ability or efficiency is given. All photographs and measurements have been taken as a guide only and are not precise. Floor plans where included are not to scale and accuracy is not guaranteed. If you require clarification or further information on any points, please contact us, especially if you are travelling some distance to view.
All properties are available for a minimum length of time, with the exception of short term accommodation. Please contact the branch for details. A security deposit of at least one month’s rent is required. Rent is to be paid one month in advance. It is the tenant’s responsibility to insure any personal possessions. Payment of all utilities including water rates or metered supply and Council Tax is the responsibility of the tenant in every case.
High Street, Sittingbourne, Kent, ME10
Similar properties to rent by Your Move Sittingbourne
Kitchen with integrated appliances, oven, hob, dishwasher and fridge/freezer
Good size room with shower, wc and sink and washing machine
Fits large double bed. Tv wall bracket installed
The pin shows the exact address of the property
Energy Efficiency Rating
Very energy efficient - lower running costs
Not energy efficient - higher running costs
Current
80Potential
80CO2 Rating
Very energy efficient - lower running costs
Not energy efficient - higher running costs
