5 bedroom Detached House to rent, Towcester Road, Litchborough, Northamptonshire, NN12
Available Unfurnished, from 27/02/2026
Features and Description
- Available Immediately
- Five Bedrooms
- Double Garage
- Much Sought After Village
- Large Plot
- Off Road Parking For Multiple Vehicles
- Viewing Recommended
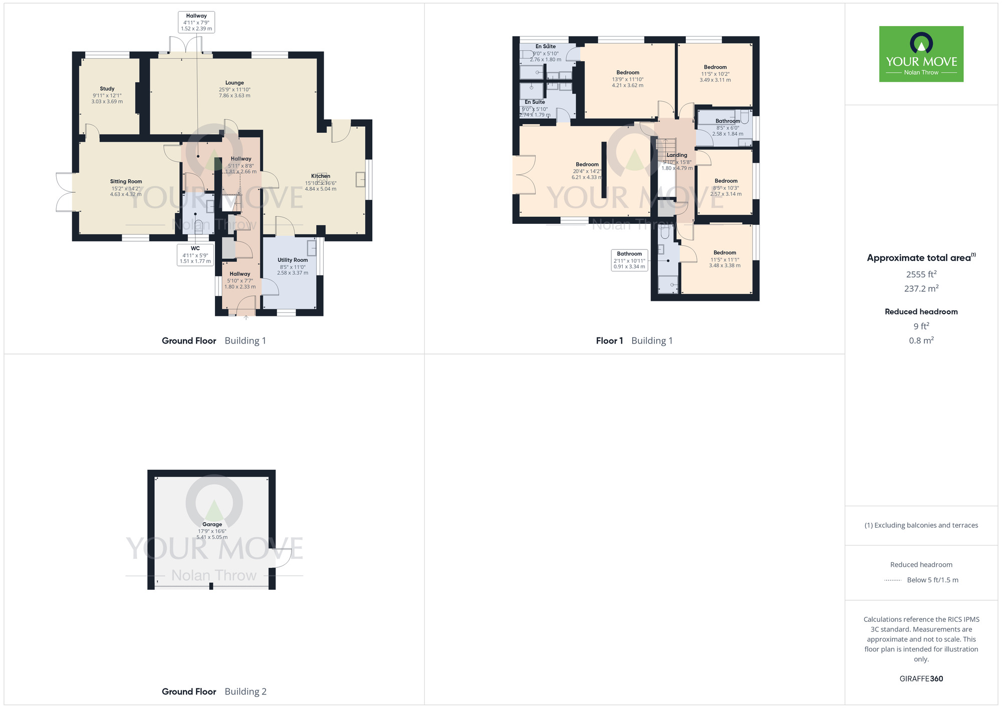
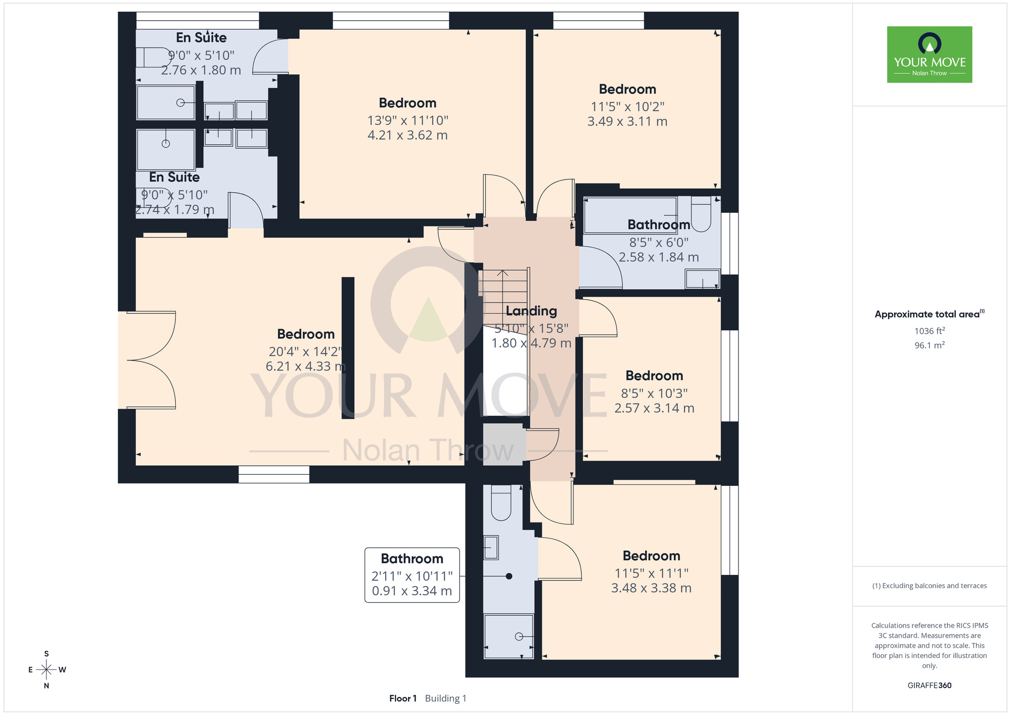
Available immediately is this well presented five bedroom detached property situated in the much sought after village of Litchborough. The property sits back from the road accessed via a long driveway and enjoys a good degree of privacy. Occupying a generous plot with ample off road parking for numerous vehicles, viewing is highly recommended to fully appreciate the individual nature and size of this beautiful property.
Features include a detached double garage, three bedrooms with en suites, two further bedrooms, three reception rooms, a modern fitted kitchen with large island, separate utility room and a good size garden.
Viewing is highly recommended to fully appreciate this wonderful property.
IMPORTANT NOTE TO POTENTIAL RENTERS:
We endeavour to make our particulars accurate and reliable, however, they do not constitute or form part of an offer or any contract and none is to be relied upon as statements of representation or fact. The services, systems and appliances listed in this specification have not been tested by us and no guarantee as to their operating ability or efficiency is given. All photographs and measurements have been taken as a guide only and are not precise. Floor plans where included are not to scale and accuracy is not guaranteed. If you require clarification or further information on any points, please contact us, especially if you are travelling some distance to view.
All properties are available for a minimum length of time, with the exception of short term accommodation. Please contact the branch for details. A security deposit of at least one month’s rent is required. Rent is to be paid one month in advance. It is the tenant’s responsibility to insure any personal possessions. Payment of all utilities including water rates or metered supply and Council Tax is the responsibility of the tenant in every case.
Towcester Road, Litchborough, Northamptonshire, NN12
The pin shows the exact address of the property
Energy Efficiency Rating
Very energy efficient - lower running costs
Not energy efficient - higher running costs
Current
58Potential
73CO2 Rating
Very energy efficient - lower running costs
Not energy efficient - higher running costs
