3 bedroom Detached House to rent, Church Road, Worsley, Greater Manchester, M28
Available Furnished, from 15/04/2026
Features and Description
- Outstanding Period Detached Property
- Three Double Bedrooms
- Three Spacious Reception Rooms
- Two Stunning Bathrooms
- Immaculately Presented
- Centrally Located In Walkden
- EPC Rating C
- Council Tax Band D
*** AVAILABLE MID APRIL *** Your Move are delighted to offer this immaculate detached family home featuring beautiful wooden floors, plantation window blinds and high ceilings and benefits three reception rooms, two bathrooms, downstairs W.C. and a large rear garden making it perfect for families wanting to make it their desired home.
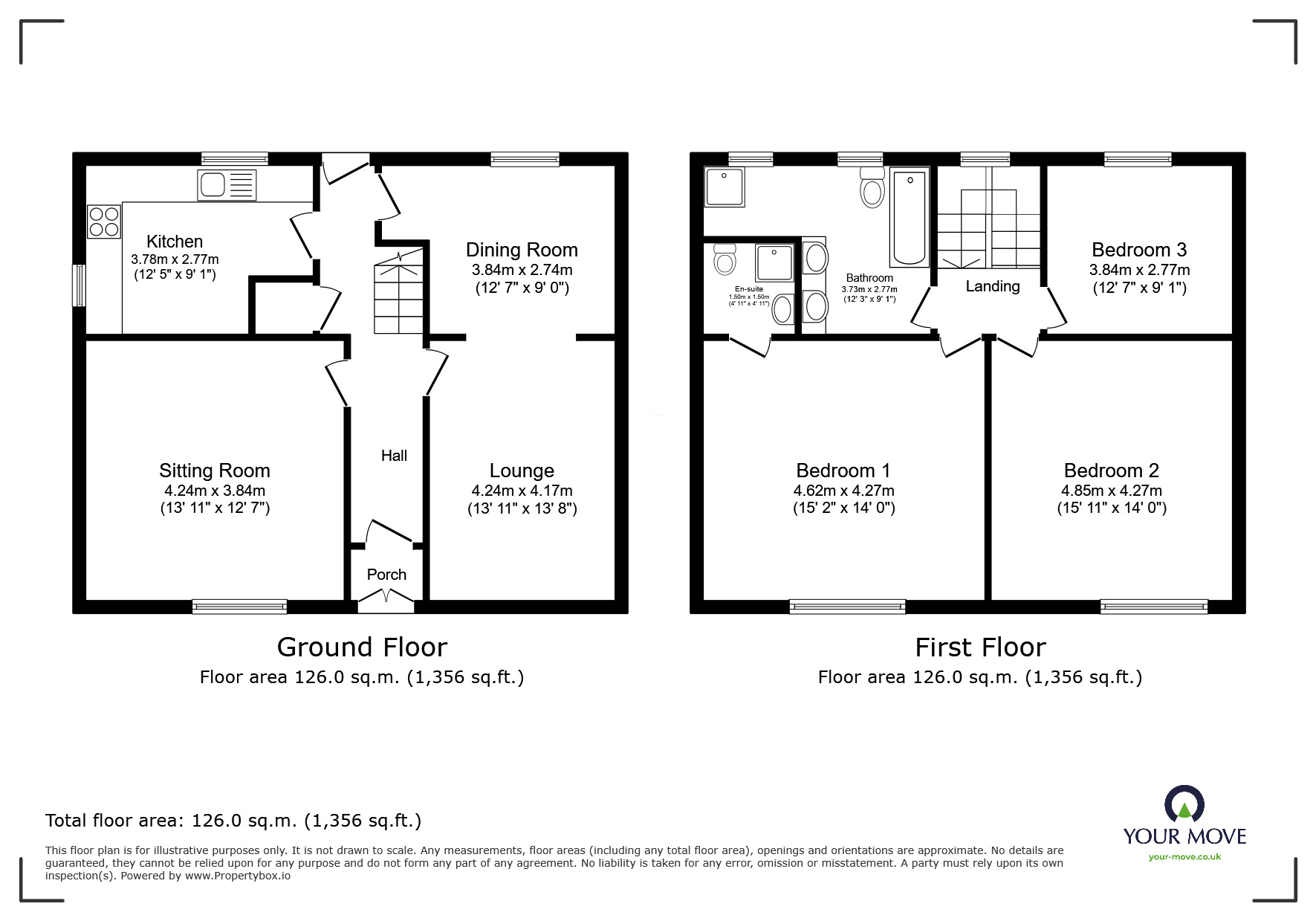
Once you enter there is a porch, entrance hallway, spacious living room, separate sitting room, dining room, downstairs W.C., modern fitted kitchen with built in oven and appliances.
Upstairs, large main bedroom leading to an en-suite shower room, two further double bedrooms and a modern four piece family bathroom with jacuzzi bath and separate shower cubicle.
Outside, enclosed front garden, to the rear is a fantastic garden with decked patio area and detached garage.
Located in a desirable area in the centre of Walkden, this property benefits from excellent public transport links, nearby schools, and local amenities, making it ideal for families.
The property also has a respectable EPC rating of C and falls within council tax band D.
Don't miss the opportunity to rent this stunning home in Worsley.
Call us today to arrange a viewing and experience the charm and comfort of this exceptional property.
Lounge
13'11" x 13'8" (4.24m x 4.17m)
Sitting Room
13'11" x 12'7" (4.24m x 3.84m)
Dining Room
12'7" x 8'12" (3.84m x 2.74m)
Kitchen
12'5" x 9'1" (3.78m x 2.77m)
Bedroom 1
15'2" x 14'0" (4.62m x 4.27m)
Bedroom 2
15'11" x 14'0" (4.85m x 4.27m)
Bedroom 3
12'7" x 9'1" (3.84m x 2.77m)
IMPORTANT NOTE TO POTENTIAL RENTERS:
We endeavour to make our particulars accurate and reliable, however, they do not constitute or form part of an offer or any contract and none is to be relied upon as statements of representation or fact. The services, systems and appliances listed in this specification have not been tested by us and no guarantee as to their operating ability or efficiency is given. All photographs and measurements have been taken as a guide only and are not precise. Floor plans where included are not to scale and accuracy is not guaranteed. If you require clarification or further information on any points, please contact us, especially if you are travelling some distance to view.
All properties are available for a minimum length of time, with the exception of short term accommodation. Please contact the branch for details. A security deposit of at least one month’s rent is required. Rent is to be paid one month in advance. It is the tenant’s responsibility to insure any personal possessions. Payment of all utilities including water rates or metered supply and Council Tax is the responsibility of the tenant in every case.
Church Road, Worsley, Greater Manchester, M28
The pin shows the exact address of the property
Energy Efficiency Rating
Very energy efficient - lower running costs
Not energy efficient - higher running costs
Current
73Potential
80CO2 Rating
Very energy efficient - lower running costs
Not energy efficient - higher running costs
