3 bedroom Detached House to rent, Hawkenbury Road, Tunbridge Wells, Kent, TN3
Available Part Furnished, from 10/04/2026
Features and Description
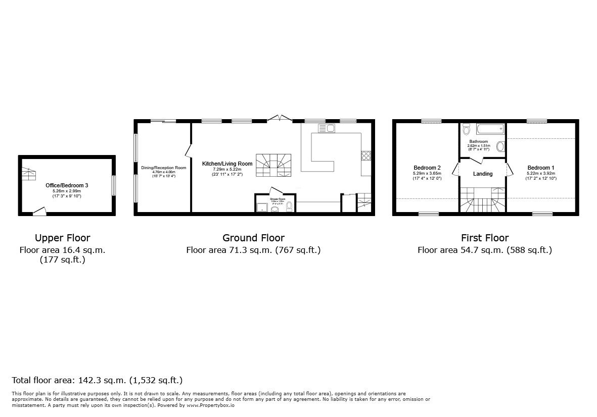
- Converted 2/3 bedroom barn
- Quiet countryside location in Hawkenbury, Royal Tunbridge Wells
- Stunning field views
- Exceptionally large rooms throughout
- Two bathrooms
- Flexible layout (2 bedrooms + study / 3 bedrooms)
- Large private garden
- Off-road parking
Nestled in the peaceful countryside of Hawkenbury on the outskirts of Royal Tunbridge Wells, this beautifully converted 2/3 bedroom barn offers spacious rural living with stunning field views and a wonderfully quiet setting.
The property boasts exceptionally large rooms throughout, combining character features with generous proportions to create a bright and versatile home. The flexible layout allows for either two substantial bedrooms with additional reception space, or three full bedrooms depending on your needs.
The heart of the home offers expansive living and dining areas, ideal for entertaining or simply enjoying the surrounding countryside views. The kitchen is well-sized and practical, complementing the barn’s spacious feel.
There are two well-appointed bathrooms, making the property perfectly suited for families or professional sharers seeking comfort and convenience.
Externally, the barn benefits from a large private garden — perfect for outdoor dining, gardening enthusiasts, or those simply wanting to enjoy the open rural outlook. The property also offers parking.
Located in the desirable Hawkenbury area, you’ll enjoy a tranquil, semi-rural lifestyle while remaining within easy reach of the amenities, schools, and mainline station of Tunbridge Wells.
Security Deposit: £2884.00. Holding Deposit: £576.00. EPC Grade: D. Council Tax Band: F
IMPORTANT NOTE TO POTENTIAL RENTERS:
We endeavour to make our particulars accurate and reliable, however, they do not constitute or form part of an offer or any contract and none is to be relied upon as statements of representation or fact. The services, systems and appliances listed in this specification have not been tested by us and no guarantee as to their operating ability or efficiency is given. All photographs and measurements have been taken as a guide only and are not precise. Floor plans where included are not to scale and accuracy is not guaranteed. If you require clarification or further information on any points, please contact us, especially if you are travelling some distance to view.
All properties are available for a minimum length of time, with the exception of short term accommodation. Please contact the branch for details. A security deposit of at least one month’s rent is required. Rent is to be paid one month in advance. It is the tenant’s responsibility to insure any personal possessions. Payment of all utilities including water rates or metered supply and Council Tax is the responsibility of the tenant in every case.
Hawkenbury Road, Tunbridge Wells, Kent, TN3
Additional Information
-
Property refTUN260130
-
EPCD
-
Council TaxF
-
Local authorityTunbridge Wells Borough Council
Your Move Letting Agents Tunbridge Wells
Rental Tools
Similar properties to rent by Your Move Tunbridge Wells
The pin shows the exact address of the property
Energy Efficiency Rating
Very energy efficient - lower running costs
Not energy efficient - higher running costs
Current
57Potential
68CO2 Rating
Very energy efficient - lower running costs
Not energy efficient - higher running costs
