3 bedroom Detached House to rent, Kirkland Fold, Wigton, Cumbria, CA7
Available Unfurnished, from 31/01/2026
Features and Description
- Detached Family Home
- Three bedrooms
- Two Bathrooms
- Cloakroom W/C
- Kitchen/Dining Room
- White Goods
- Large Lounge
- Enclosed Garden
- Garage & Parking
- EPC Rated C
- Council Tax Band C
- Zero Deposit Guarantee available
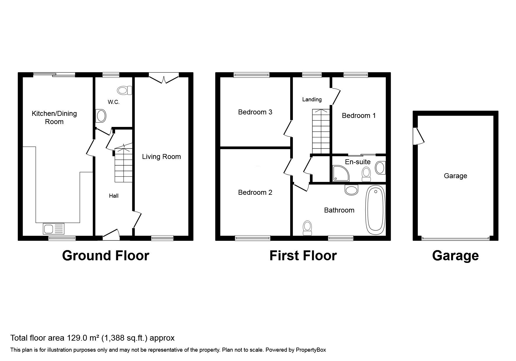
This detached family home is situated on a popular residential estate in the market town of Wigton. The property comprises entrance hall, light & airy lounge with duel aspect and double patio doors leading to the rear enclosed garden. There is a useful cloakroom w/c, understairs storage. The kitchen dining room is fitted with modern units, double electric oven, electric hob, washing machine & a fridge freezer. The double doors lead to the rear garden. To the first floor there are two double bedrooms & a spacious single bedroom, En-suit shower room wc, with additional storage & a separate family bathroom with a bath.
EPC Rated C
Council Tax Band C
AGENTS NOTES
The property is fully double glazed & benefits from Gas central heating.
All windows have either curtain poles or blinds.
Parking is situated to the rear of the property (Garage, drive & additional parking).
Zero Deposit Guarantee available.
Entrance Hall
Providing access to all lower ground floor rooms & the first floor. This light & airy space has neutral décor & pale grey wood effect vinyl laminate flooring with handy understairs storage cupboard.
Kitchen / Dining Room
8'12" x 19'2" (2.74m x 5.84m)
Fitted with a range of modern wall & base units, electric hob, electric double oven, free standing fridge freezer and washing machine. Benefitting from neutral décor, moderns splashbacks, complimentary grey work surfaces, modern radiator & tile effect vinyl flooring. This spacious room has duel aspect and patio doors that lead to the rear garden.
Cloackroom WC
6'5" x 4'12" (1.96m x 1.52m)
The handy cloakroom w/c is situated to the rear of the property, with neutral décor & modern vinyl flooring.
Lounge
19'4" x 10'0" (5.90m x 3.05m)
This light & airy lounge with duel aspect and double patio doors leading to the rear garden. Benefiting from neutral décor, pale grey carpet, curtain poles & vertical blinds. the radiator sits behind a modern radiator cover.
Stairs & Landing
Leading to the first floor, the spacious landing.
Bedroom 1
10'7" x 10'2" (3.23m x 3.10m)
Situated to the rear of the property this double bedroom benefits from built in wardrobes, neutral carpet, TV point & blinds. Access to the En-Suit is from a door hidden behind the built in wardrobes.
En-Suite Shower Room
Situated to the front of the property & accessed from bedroom 1, the En-suit is fitted with a modern shower cubicle, wash hand basin, w/c & separate storage cupboard. Benefitting from modern décor & grey flooring.
Bedroom 3
8'9" x 7'8" (2.67m x 2.34m)
This good sized single bedroom is situated to the rear of the property overlooking the garden. Benefiting from neutral décor, feature wall, light carpet & vertical blinds.
Family Bathroom
Comprising of separate bath, wash hand basin & w/c. Benefitting from neutral décor & modern vinyl.
Garage
17'10" x 9'7" (5.44m x 2.92m)
Situated behind the property with the additional driveway & parking.
Rear Garden
Enclosed rear garden, laid to lawn & patio, with side access the the detached garage.
Agents Notes
The property is fully double glazed & benefits from Gas central heating.All windows have either curtain poles or blinds.Parking is situated to the rear of the property (Garage, drive & additional parking).
IMPORTANT NOTE TO POTENTIAL RENTERS:
We endeavour to make our particulars accurate and reliable, however, they do not constitute or form part of an offer or any contract and none is to be relied upon as statements of representation or fact. The services, systems and appliances listed in this specification have not been tested by us and no guarantee as to their operating ability or efficiency is given. All photographs and measurements have been taken as a guide only and are not precise. Floor plans where included are not to scale and accuracy is not guaranteed. If you require clarification or further information on any points, please contact us, especially if you are travelling some distance to view.
All properties are available for a minimum length of time, with the exception of short term accommodation. Please contact the branch for details. A security deposit of at least one month’s rent is required. Rent is to be paid one month in advance. It is the tenant’s responsibility to insure any personal possessions. Payment of all utilities including water rates or metered supply and Council Tax is the responsibility of the tenant in every case.
Kirkland Fold, Wigton, Cumbria, CA7
Fitted with a range of modern wall & base units, electric hob, electric double oven, free standing fridge freezer and washing machine. Benefitting from neutral décor, moderns splashbacks, complimentary grey work surfaces, modern radiator & tile effect vinyl flooring. This spacious room has duel aspect and patio doors that lead to the rear garden.
This light & airy lounge with duel aspect and double patio doors leading to the rear garden. Benefiting from neutral décor, pale grey carpet, curtain poles & vertical blinds. the radiator sits behind a modern radiator cover.
Situated to the rear of the property this double bedroom benefits from built in wardrobes, neutral carpet, TV point & blinds. Access to the En-Suit is from a door hidden behind the built in wardrobes.
Situated to the front of the property & accessed from bedroom 1, the En-suit is fitted with a modern shower cubicle, wash hand basin, w/c & separate storage cupboard. Benefitting from modern décor & grey flooring.
This good sized single bedroom is situated to the rear of the property overlooking the garden. Benefiting from neutral décor, feature wall, light carpet & vertical blinds.
Enclosed rear garden, laid to lawn & patio, with side access the the detached garage.
The pin shows the exact address of the property
Energy Efficiency Rating
Very energy efficient - lower running costs
Not energy efficient - higher running costs
Current
78Potential
88CO2 Rating
Very energy efficient - lower running costs
Not energy efficient - higher running costs
