3 bedroom End Terrace House to rent, Dobie Street, Barnsley, S70
Features and Description
- End of terrace property
- Two spacious reception rooms
- Dedicated dining room
- Three bedrooms available
- Unique attic bedroom
- En-suite shower room included
- Central location with parking
- Close to public transport
- Conservatory
This end of terrace property, located in Barnsley, is presently available to let. The property comes unfurnished, offering you the opportunity to personalise it to your taste and style. It presents an EPC rating of E and falls under council tax band A, making it a cost-efficient option.
The property boasts two reception rooms, providing ample space for relaxation and entertainment. One of these spaces is a dedicated dining room, perfect for family meals and social gatherings. The house benefits from a modern kitchen perfect for all your culinary needs. There is also a conservatory perfect for a utility room.
The property offers three bedrooms, including a double bedroom and an attic bedroom. The attic bedroom adds a unique charm to the property and could serve as an artistic retreat or a quiet study area. One of the bedrooms features an en-suite shower room, providing a private and convenient space for your daily routines. This setup ensures that there's no morning rush for bathroom space, making it ideal for families.
One of the unique features of this property is its parking facility, which is a rare find in such a central location. The property is ideally situated, with public transport links, local amenities, and schools nearby. This makes it an excellent choice for families seeking a convenient and comfortable living situation.
Please don't hesitate to get in touch for further details or to arrange a viewing.
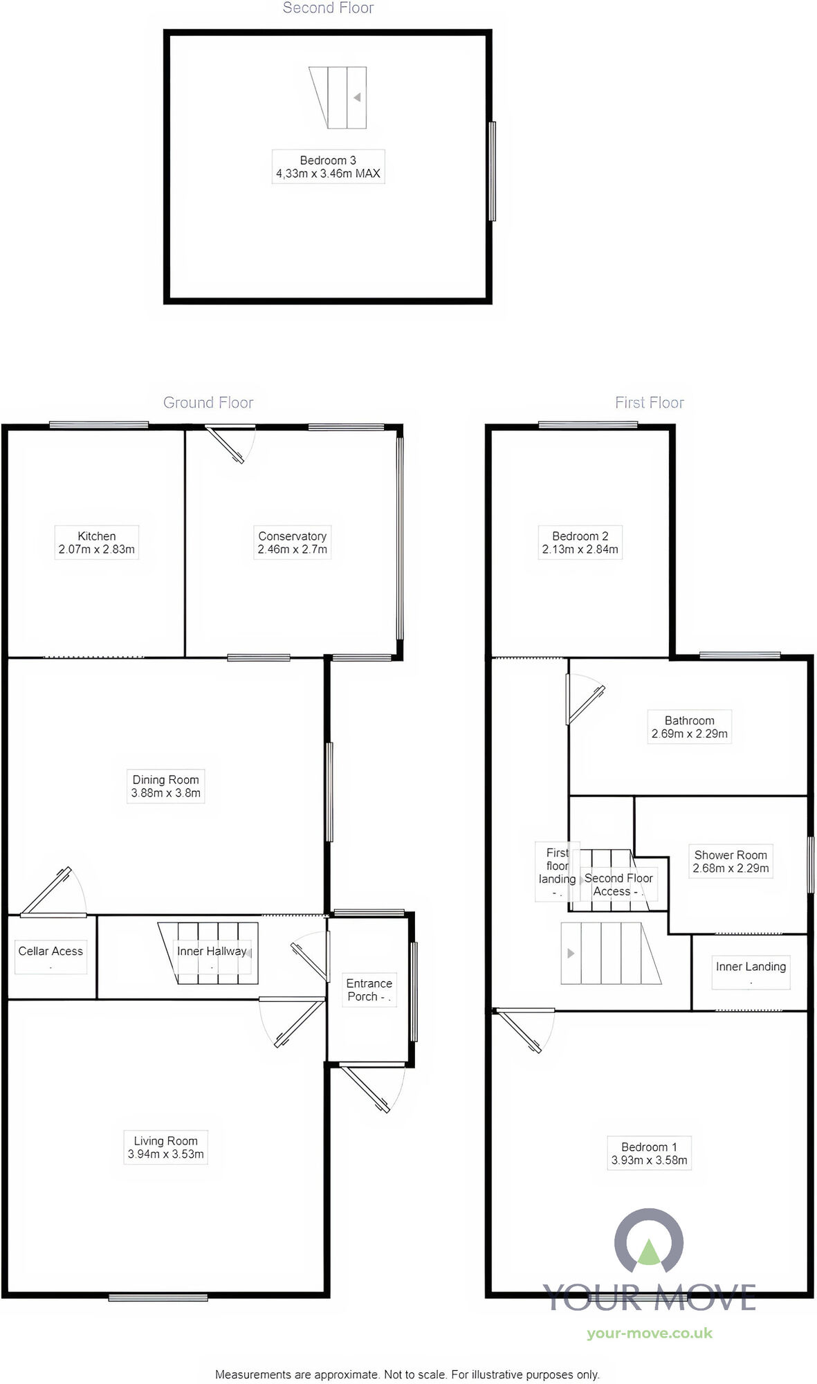
Living Room
3.94 x 3.53
Dining Room
3.90 x 3.88
Kitchen
2.83 x 2.07
Conservatory
2.70 x 2.46
Bedroom 1
3.99 x 3.58
En-Suite Shower Room
2.68 x 2.29
Bedroom 2
2.84 x 2.13
Bathroom
2.69 x 2.29
Attic Bedroom
4.33 x 3.46
IMPORTANT NOTE TO POTENTIAL RENTERS:
We endeavour to make our particulars accurate and reliable, however, they do not constitute or form part of an offer or any contract and none is to be relied upon as statements of representation or fact. The services, systems and appliances listed in this specification have not been tested by us and no guarantee as to their operating ability or efficiency is given. All photographs and measurements have been taken as a guide only and are not precise. Floor plans where included are not to scale and accuracy is not guaranteed. If you require clarification or further information on any points, please contact us, especially if you are travelling some distance to view.
All properties are available for a minimum length of time, with the exception of short term accommodation. Please contact the branch for details. A security deposit of at least one month’s rent is required. Rent is to be paid one month in advance. It is the tenant’s responsibility to insure any personal possessions. Payment of all utilities including water rates or metered supply and Council Tax is the responsibility of the tenant in every case.
Dobie Street, Barnsley, S70
Additional Information
-
Property refBAR260006
-
EPCE
-
Council TaxA
-
Local authorityBarnsley Metropolitan Borough Council
Your Move Letting Agents Barnsley
Rental Tools
The pin shows the exact address of the property
Energy Efficiency Rating
Very energy efficient - lower running costs
Not energy efficient - higher running costs
Current
51Potential
79CO2 Rating
Very energy efficient - lower running costs
Not energy efficient - higher running costs
