2 bedroom End Terrace House to rent, Ethel Terrace, High Spen, Tyne and Wear, NE39
Available Unfurnished, from 02/02/2026
Features and Description
- Three Bedroom End Of Terrace House
- Refurbished To A High Standard
- No Chain
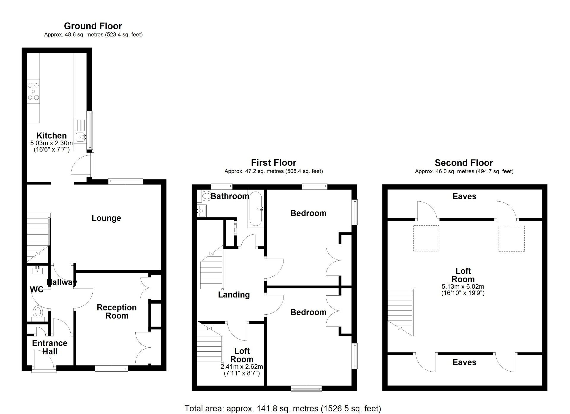
- Approx SQ. M 124
- Gateshead Council Tax Band A
- EPC Grade C
Immaculate through out, a fantastic opportunity to purchase a fully refurbished property situated on Ethel Terrace in High Spen. Offered to the market with no upper chain this property has undergone a complete overhaul and change of layout creating a spacious and modern living space. This property is a real credit to the current owners and would make a fantastic home.
AGENTS NOTE: Pictures are from August 2024
To the ground floor this property comprises, entrance hallway with built in storage, WC/Cloakroom with WC and built in vanity unit, Reception room with two built in storage units double glazed window and radiator. Lounge with media wall, feature fireplace and recessed lighting system. Finally the kitchen benefits high quality floor and wall soft closing units with a range of integrated appliances to include electric induction hob, double oven, fridge/freezer, dishwasher and washing machine, there has also been extra plug sockets added as well as a stylish radiator and a recessed lighting system with a door for access to the rear.
To the first floor there is two dual aspect double bedrooms both with built in storage and radiators, a family bathroom with shower over bath, hand wash basin/vanity unit and WC as well as a built in storage unit and a final room with stairs to the loft area which is fully boarded/carpeted and benefits two Velux windows.
Externally this property has an enclosed private yard to the rear which has an EV plug socket for an electric vehicle. This space can be used for off street parking or an outside seating area.
The house is situated within this popular terrace along Hookergate Lane (B6315), which runs through the village of High Spen, a former mining village at the edge of Rowlands Gill. There are some shops and amenities in the village, which is at the entrance to Chopwell Woods, and is 9.5 miles from Newcastle and just under 13 miles from the airport. There are local countryside walks and cycle routes in the area and High Spen Primary School just along the road.
Freehold
Gateshead council tax band A
EPC Grade C
To proceed to rent this property you will have to sign a Holding Deposit Agreement and pay a Holding Deposit of one weeks rent which will be used as part of the first rent payment upon signing the tenancy agreement. The Holding Deposit Agreement will give you details of the circumstances that could lead to your holding deposit becoming non-refundable, as per the terms of the Tenant Fees Act 2019.
IMPORTANT NOTE TO POTENTIAL RENTERS:
We endeavour to make our particulars accurate and reliable, however, they do not constitute or form part of an offer or any contract and none is to be relied upon as statements of representation or fact. The services, systems and appliances listed in this specification have not been tested by us and no guarantee as to their operating ability or efficiency is given. All photographs and measurements have been taken as a guide only and are not precise. Floor plans where included are not to scale and accuracy is not guaranteed. If you require clarification or further information on any points, please contact us, especially if you are travelling some distance to view.
All properties are available for a minimum length of time, with the exception of short term accommodation. Please contact the branch for details. A security deposit of at least one month’s rent is required. Rent is to be paid one month in advance. It is the tenant’s responsibility to insure any personal possessions. Payment of all utilities including water rates or metered supply and Council Tax is the responsibility of the tenant in every case.
Ethel Terrace, High Spen, Tyne and Wear, NE39
The pin shows the exact address of the property
Energy Efficiency Rating
Very energy efficient - lower running costs
Not energy efficient - higher running costs
Current
69Potential
80CO2 Rating
Very energy efficient - lower running costs
Not energy efficient - higher running costs
