3 bedroom End Terrace House to rent, Manor Street, Hinckley, Leicestershire, LE10
Available Unfurnished, from 06/04/2026
Features and Description
- End Terrace Home
- Town Centre Location
- Two Reception Rooms
- Modern Fitted Kitchen
- Three Bedrooms
- ZERO DEPOSIT GUARANTEE OPTION
- Gas Central Heating
- Shower Room
- Courtyard Garden
- Available Immediately
- EPC Rating E
- Council Tax Band A
This conveniently located three bed modernised end terraced home is close to the town centre and is deceptively spacious inside.
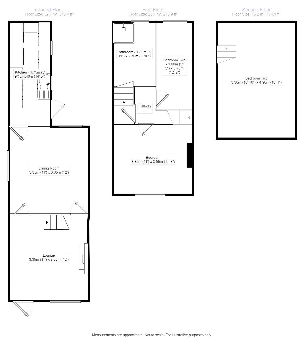
Accommodation comprises Lounge, Dining Room, Kitchen, Landing, Bedroom One, Bedroom Two, Family Bathroom, Stairs To Second Floor and Bedroom Three. Externally the property has a Courtyard Garden to rear.
This home is available now and is sure to go quickly. Call now to book your viewing today.
Location
The property lies close to the centre of Hinckley which offers a host of local amenities including the popular Crescent development, local theatre (The Concordia) leading supermarkets, hair and beauty parlours, restaurants and is served by a number of sought after schools nearby (according to the latest league tables) train and bus stations are also accessible. With an excellent road network this property is ideal for those looking to commute to any of the main Midlands centres.
Property
This conveniently located three bed modernised end terraced home is close to the town centre and is deceptively spacious inside. Accommodation comprises Lounge, Dining Room, Kitchen, Landing, Bedroom One, Bedroom Two, Family Bathroom, Stairs To 2nd Floor and Bedroom Three. Externally the property has a Courtyard Garden to rear.
Lounge
12'0" x 11'1" (3.66m x 3.38m)
Dining Room
12'1" x 11'1" (3.68m x 3.38m)
Kitchen
14'4" x 5'10" (4.37m x 1.78m)
Complete with oven and hob
Bedroom 1
12'0" x 11'1" (3.66m x 3.38m)
Bedroom 2
12'2" x 5'7" (3.70m x 1.70m)
Family Bathroom
8'11" x 5'3" (2.72m x 1.60m)
Bedroom 3
16'1" x 10'2" (4.90m x 3.10m)
Converted loft offering a spacious third bedroom
IMPORTANT NOTE TO POTENTIAL RENTERS:
We endeavour to make our particulars accurate and reliable, however, they do not constitute or form part of an offer or any contract and none is to be relied upon as statements of representation or fact. The services, systems and appliances listed in this specification have not been tested by us and no guarantee as to their operating ability or efficiency is given. All photographs and measurements have been taken as a guide only and are not precise. Floor plans where included are not to scale and accuracy is not guaranteed. If you require clarification or further information on any points, please contact us, especially if you are travelling some distance to view.
All properties are available for a minimum length of time, with the exception of short term accommodation. Please contact the branch for details. A security deposit of at least one month’s rent is required. Rent is to be paid one month in advance. It is the tenant’s responsibility to insure any personal possessions. Payment of all utilities including water rates or metered supply and Council Tax is the responsibility of the tenant in every case.
Manor Street, Hinckley, Leicestershire, LE10
Complete with oven and hob
Converted loft offering a spacious third bedroom
The pin shows the exact address of the property
Energy Efficiency Rating
Very energy efficient - lower running costs
Not energy efficient - higher running costs
Current
53Potential
83CO2 Rating
Very energy efficient - lower running costs
Not energy efficient - higher running costs
