2 bedroom End Terrace House to rent, Marsh Lane, Belper, Derbyshire, DE56
Available from 28/11/2025
Features and Description
- Beautifully Presented Throughout
- Full Gas Central Heating
- Double Glazing
- Two Double Bedrooms
- Two Reception Rooms
- Excellent Fitted Kitchen
- Four Piece Bathroom Suite
This beautifully renovated end-terrace home sits just a short stroll from Belper’s vibrant town centre, combining timeless character with modern style. Set back behind a neat, low-maintenance front garden, the property opens with a welcoming porch that leads into two generous reception rooms, one featuring a bay window and a log burner-style electric fireplace. The contemporary kitchen is fitted with integrated appliances, offering both practicality and elegance. Upstairs, you’ll find two spacious double bedrooms alongside a luxurious four-piece bathroom suite. Outside, the rear garden provides a private retreat with a paved patio, a lawn, and a large shed for storage. Please note: pets are not permitted.
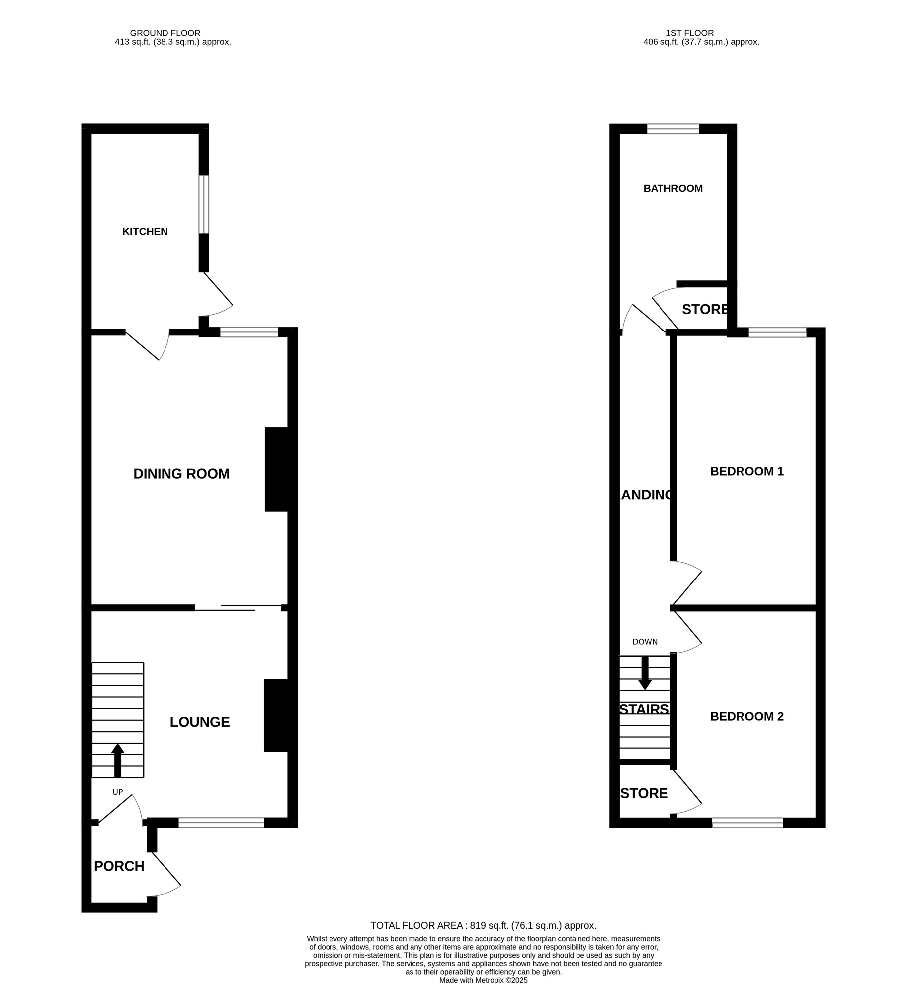
Porch
UPVC obscure double-glazed front door to the side elevation and window to the front with tile flooring.
Living Room
12'3" x 11'9" (3.73m x 3.58m)
With a double-glazed bay window to the front elevation and wall-mounted radiator as well as stairs leading to the first floor and understairs storage solution as well as feature farmhouse sliding doors to the dining room.
Dining Room
15'9" x 11'8" (4.80m x 3.56m)
With double-glazed window to the rear elevation, wall-mounted radiator and log burner style electric fireplace.
Kitchen
11'7" x 6'8" (3.53m x 2.03m)
Wood effect herringbone style laminate flooring, double-glazed window and UPVC door to the side elevation. The kitchen featuring modern wall and base cabinets with wood block countertops, a tile splashback and composite sink with mixer tap over as well as integrated double oven, induction hob, extractor hood, dishwasher and fridge/freezer.
Landing
Carpeted flooring, wall-mounted radiator.
Bedroom 1
12'3" x 8'8" (3.73m x 2.64m)
Carpeted with a, wall-mounted radiator and double-glazed window to the rear elevation, complete with freestanding wardrobes and panelled walls with picture rail.
Bedroom 2
5'5" x 8'8" (1.65m x 2.64m)
Carpeted with double glazed window to the front elevation, wall-mounted radiator and built-in walk-in wardrobe over the stairs.
Bathroom
11'7" x 6'8" (3.53m x 2.03m)
With wood effect laminate flooring, obscure double-glazed window to the rear elevation, wall-mounted heated towel rail and airing cupboard housing the combi boiler. The suite is completed with a W/C, wash-hand basin vanity unit, panel bath with shower head attachments and a sizable walk-in shower with waterfall and additional detachable shower head.
Outside
The front garden features a stone path with gravel boarders set back from the road. The rear garden is mostly laid to lawn with a patio and area as well as a shed which benefits from electrics.
IMPORTANT NOTE TO POTENTIAL RENTERS:
We endeavour to make our particulars accurate and reliable, however, they do not constitute or form part of an offer or any contract and none is to be relied upon as statements of representation or fact. The services, systems and appliances listed in this specification have not been tested by us and no guarantee as to their operating ability or efficiency is given. All photographs and measurements have been taken as a guide only and are not precise. Floor plans where included are not to scale and accuracy is not guaranteed. If you require clarification or further information on any points, please contact us, especially if you are travelling some distance to view.
All properties are available for a minimum length of time, with the exception of short term accommodation. Please contact the branch for details. A security deposit of at least one month’s rent is required. Rent is to be paid one month in advance. It is the tenant’s responsibility to insure any personal possessions. Payment of all utilities including water rates or metered supply and Council Tax is the responsibility of the tenant in every case.
Marsh Lane, Belper, Derbyshire, DE56
The pin shows the exact address of the property
Energy Efficiency Rating
Very energy efficient - lower running costs
Not energy efficient - higher running costs
Current
62Potential
68CO2 Rating
Very energy efficient - lower running costs
Not energy efficient - higher running costs
