2 bedroom End Terrace House to rent, Melbourne Walk, Northampton, Northamptonshire, NN1
Available Furnished, from 20/05/2026
Features and Description
- Council Tax Band A
- Two/Three Bedroom House
- Fully Furnished
- Close To Hospital
- Garden
- EPC Rating D
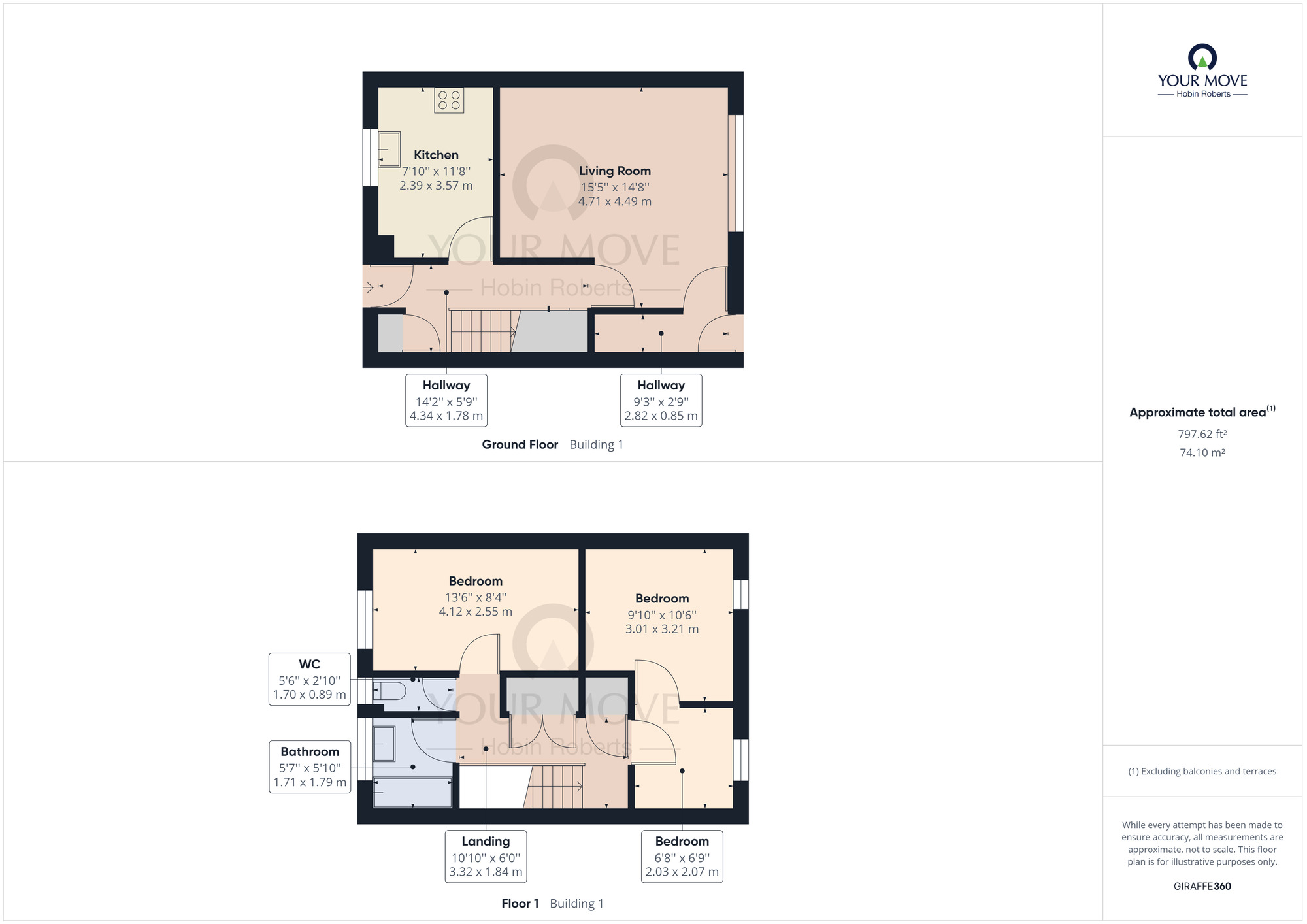
Available from Mid to late May, is this two/three bedroom end of terrace family home, situated within close proximity of the Northampton General Hospital and several amenities. The property benefits from UPVc double glazing and gas central heating throughout. On entering, the entrance hall has stairs rising to the first floor landing with a storage cupboard and a door leading to the lounge and kitchen. The lounge/dining room is a good size and provides ample space and access to the enclosed rear garden. The kitchen is fitted with base and eye level units, work surfaces, an integrated dishwasher, plumbing for a washing machine, and space for white goods. Off the first floor there are three bedrooms, a family bathroom, and a separate W/C. Outside, there are front and rear gardens and access to communal parking bays.
Melbourne Walk is within close proximity of the Northampton General Hospital and all the surrounding local amenities. Situated just off of the Wellingborough Road, you are close to numerous designer shops, bars, and restaurants, which make Abington one of the most desirable areas of the town. Northampton Town Centre is approximately 1.8 miles away, and the Northampton Train Station is a further 0.5 miles away. Abington is also home to one of the best parks in Northampton, featuring a bowling green, a museum, and an abundance of open space. The county cricket ground is within walking distance, as are several supermarkets. Schools are popular and cater all ages. Properties in Abington are mature and traditional and embody the history of the town.
IMPORTANT NOTE TO POTENTIAL RENTERS:
We endeavour to make our particulars accurate and reliable, however, they do not constitute or form part of an offer or any contract and none is to be relied upon as statements of representation or fact. The services, systems and appliances listed in this specification have not been tested by us and no guarantee as to their operating ability or efficiency is given. All photographs and measurements have been taken as a guide only and are not precise. Floor plans where included are not to scale and accuracy is not guaranteed. If you require clarification or further information on any points, please contact us, especially if you are travelling some distance to view.
All properties are available for a minimum length of time, with the exception of short term accommodation. Please contact the branch for details. A security deposit of at least one month’s rent is required. Rent is to be paid one month in advance. It is the tenant’s responsibility to insure any personal possessions. Payment of all utilities including water rates or metered supply and Council Tax is the responsibility of the tenant in every case.
Melbourne Walk, Northampton, Northamptonshire, NN1
The pin shows the exact address of the property
Energy Efficiency Rating
Very energy efficient - lower running costs
Not energy efficient - higher running costs
Current
60Potential
85CO2 Rating
Very energy efficient - lower running costs
Not energy efficient - higher running costs
