4 bedroom End Terrace House to rent, Wellburn Road, Washington, Tyne and Wear, NE37
Available from 17/04/2026
Features and Description
We are delighted to bring to the rental market this beautifully refurbished three-bedroom home located on the ever-popular Wellburn Road in Donwell. Finished to a high standard throughout, this property offers modern, move-in ready accommodation, ideal for families or professional tenants seeking a quiet residential setting.
The home has undergone a full refurbishment, boasting a fresh, contemporary feel with neutral décor, new flooring, and upgraded kitchen and bathroom. The standout feature is the spacious open-plan lounge/dining area, flooded with natural light and offering direct access into a bright conservatory, perfect for additional living space or a home office.
Externally, the property benefits from a private rear garden, while the front offers a pleasant approach within this quiet cul-de-sac style setting.
About the Area
Donwell is a highly regarded residential area within Washington, known for its quiet surroundings, family-friendly environment, and excellent access to local amenities. There are nearby schools, shops, and transport links, with easy access to the A1 and A19 making it ideal for commuters.
Accommodation
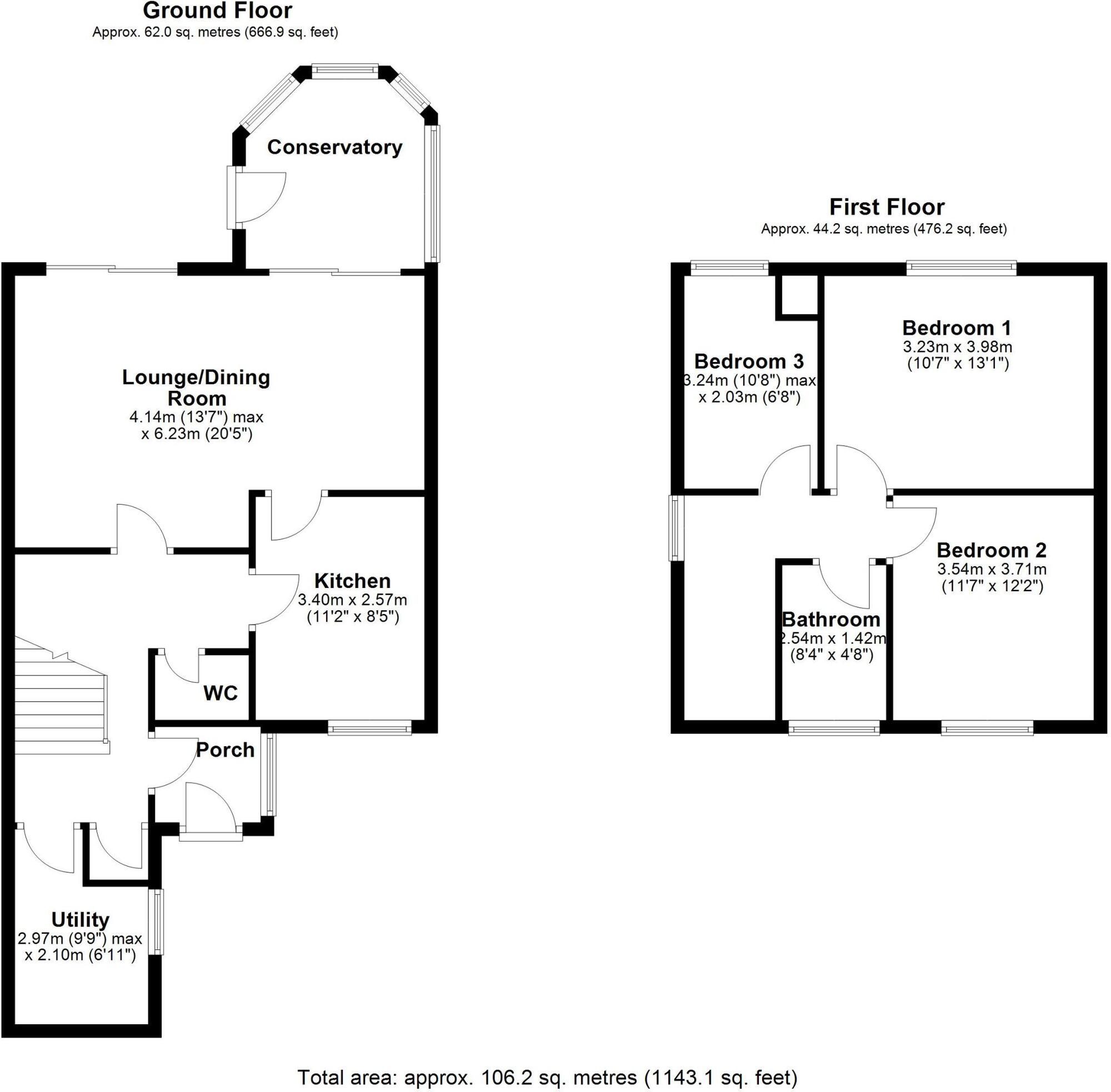
Ground Floor
Porch
Entrance porch providing access into the main hallway.
WC
Convenient ground floor WC.
Utility Room
2.97m x 2.10m (9'9" x 6'11")
Useful additional space ideal for laundry and storage.
Kitchen
3.40m x 2.57m (11'2" x 8'5")
Modern fitted kitchen with a range of wall and base units, integrated oven and hob, and space for additional appliances. Finished with contemporary worktops and splashbacks.
Lounge / Dining Room
4.14m (13'7") max x 6.23m (20'5")
A fantastic open-plan living and dining space, offering excellent proportions and flexibility. Bright and airy with patio doors leading out to the rear garden and access into the conservatory.
Conservatory
A superb addition providing extra living space, overlooking the rear garden and ideal as a second sitting area or home office.
First Floor
Bedroom One
3.23m x 3.98m (10'7" x 13'1")
A generous double bedroom with pleasant outlook.
Bedroom Two
3.54m x 3.71m (11'7" x 12'2")
Another well-proportioned double bedroom.
Bedroom Three
3.24m max x 2.03m (10'8" max x 6'8")
Ideal as a single bedroom, nursery, or home office.
Bathroom
2.54m x 1.42m (8'4" x 4'8")
Stylish modern bathroom fitted with a white suite including bath with shower over, wash hand basin, and WC, complemented by contemporary tiling.
External
Private rear garden with patio area and planted borders, ideal for relaxing or entertaining.
IMPORTANT NOTE TO POTENTIAL RENTERS:
We endeavour to make our particulars accurate and reliable, however, they do not constitute or form part of an offer or any contract and none is to be relied upon as statements of representation or fact. The services, systems and appliances listed in this specification have not been tested by us and no guarantee as to their operating ability or efficiency is given. All photographs and measurements have been taken as a guide only and are not precise. Floor plans where included are not to scale and accuracy is not guaranteed. If you require clarification or further information on any points, please contact us, especially if you are travelling some distance to view.
All properties are available for a minimum length of time, with the exception of short term accommodation. Please contact the branch for details. A security deposit of at least one month’s rent is required. Rent is to be paid one month in advance. It is the tenant’s responsibility to insure any personal possessions. Payment of all utilities including water rates or metered supply and Council Tax is the responsibility of the tenant in every case.
Wellburn Road, Washington, Tyne and Wear, NE37
The pin shows the exact address of the property
Energy Efficiency Rating
Very energy efficient - lower running costs
Not energy efficient - higher running costs
Current
N/APotential
N/ACO2 Rating
Very energy efficient - lower running costs
Not energy efficient - higher running costs
