This calculator provides a guide to the amount of residential stamp duty you may pay and does not guarantee this will be the actual cost. This calculation is based on the Stamp Duty Land Tax Rates for residential properties purchased from 23rd September 2022 and second homes from 31st October 2024. For more information on Land and Buildings Transaction Tax, click here.
4 bedroom Flat for sale, Morar Street, Methil, Fife, KY8
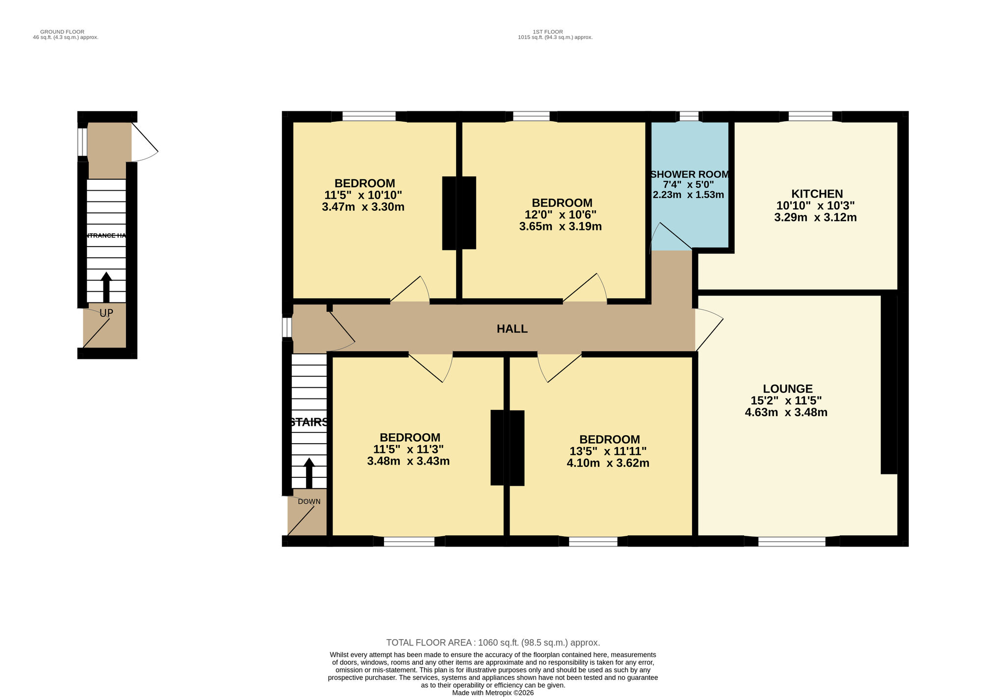
Features and Description
- CLOSING DATE - 28.01.26 at 12 noon
- Upper Flat
- Four Bedrooms
- Lounge
- Kitchen/Dining Room
- Shower Room
- D.G G.C.H
- Garden
A spacious upper flat, providing family sized accommodation at an affordable price. The floor space of this flat rivals many houses within the local area and will appeal to families looking for four bedroom accommodation at an affordable price. Entry is gained into the property on the ground floor level. An internal staircase leads to the first floor level. The first floor landing leads to the lounge, kitchen/dining room, four double bedrooms and a shower room/WC. The specification includes double glazing and gas central heating. Externally, the property has a private section of garden, featuring lawn and chipped area.
Location-
Morar Street is a residential address, well positioned for access to the shops and services on nearby Methilhaven Road. Leven town centre is approximately 1.5 miles distant where a wider range of shops, services and amenities can be found. Train stations at Leven and Cameron Bridge operate on the Fife Circle line to Edinburgh.
Our View-
A rare chance to purchase a four bedroom flat that offers sizeable accommodation at a competitive price. Purchasers requiring four bedrooms will love the size of the rooms and affordable price.
Location
CLOSING DATE - WEDNESDAY 28th JANUARY 2026 AT 12 NOON.<br /> Morar Street is a residential address, well positioned for access to the shops and services on nearby Methilhaven Road. Leven town centre is approximately 1.5 miles distant where a wider range of shops, services and amenities can be found. Train stations at Leven and Cameron Bridge operate on the Fife Circle line to Edinburgh.
IMPORTANT NOTE TO POTENTIAL PURCHASERS:
We endeavour to make our particulars accurate and reliable, however, they do not constitute or form part of an offer or any contract and none is to be relied upon as statements of representation or fact. The services, systems and appliances listed in this specification have not been tested by us and no guarantee as to their operating ability or efficiency is given. All photographs and measurements have been taken as a guide only and are not precise. Floor plans where included are not to scale and accuracy is not guaranteed. If you require clarification or further information on any points, please contact us, especially if you are travelling some distance to view. Fixtures and fittings other than those mentioned are to be agreed with the seller.
Morar Street, Methil, Fife, KY8
The pin shows the exact address of the property
Energy Efficiency Rating
Very energy efficient - lower running costs
Not energy efficient - higher running costs
Current
76Potential
76CO2 Rating
Very energy efficient - lower running costs
Not energy efficient - higher running costs
