1 bedroom Flat to rent, Coolinge Road, Folkestone, Kent, CT20
Available Unfurnished, from 03/12/2025
Features and Description
- 1 Bedroom
- Close To Local Amenities
- Great Transport Links
- Epc Grade C
- Allocated Parking Space
- Close To Town Centre
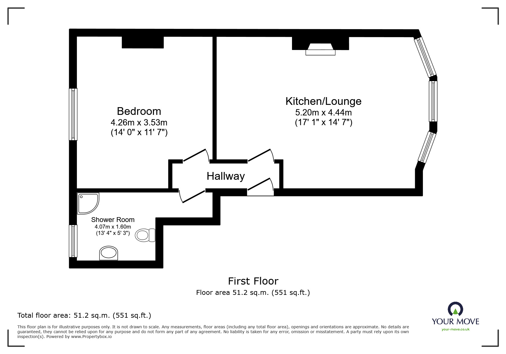
A stunning, newly refurbished first-floor flat is available to rent immediately. The property features a spacious open-plan lounge and kitchen, a generously sized bedroom, and a modern fitted shower room. It also benefits from one allocated parking space. It is conveniently located within walking distance of local amenities and transport links. Rent per calendar month £850, Refundable holding deposit £196, Security deposit £980, Council tax band A, EPC Grade C.
Lounge / Kitchen
17'1" x 14'7" (5.21m x 4.45m)
Bedroom
11'7" x 14'0" (3.54m x 4.27m)
Bathroom
13'4" x 5'3" (4.07m x 1.60m)
IMPORTANT NOTE TO POTENTIAL RENTERS:
We endeavour to make our particulars accurate and reliable, however, they do not constitute or form part of an offer or any contract and none is to be relied upon as statements of representation or fact. The services, systems and appliances listed in this specification have not been tested by us and no guarantee as to their operating ability or efficiency is given. All photographs and measurements have been taken as a guide only and are not precise. Floor plans where included are not to scale and accuracy is not guaranteed. If you require clarification or further information on any points, please contact us, especially if you are travelling some distance to view.
All properties are available for a minimum length of time, with the exception of short term accommodation. Please contact the branch for details. A security deposit of at least one month’s rent is required. Rent is to be paid one month in advance. It is the tenant’s responsibility to insure any personal possessions. Payment of all utilities including water rates or metered supply and Council Tax is the responsibility of the tenant in every case.
Coolinge Road, Folkestone, Kent, CT20
The pin shows the exact address of the property
Energy Efficiency Rating
Very energy efficient - lower running costs
Not energy efficient - higher running costs
Current
73Potential
77CO2 Rating
Very energy efficient - lower running costs
Not energy efficient - higher running costs
