1 bedroom Flat to rent, Duke Street, Wigton, Cumbria, CA7
Features and Description
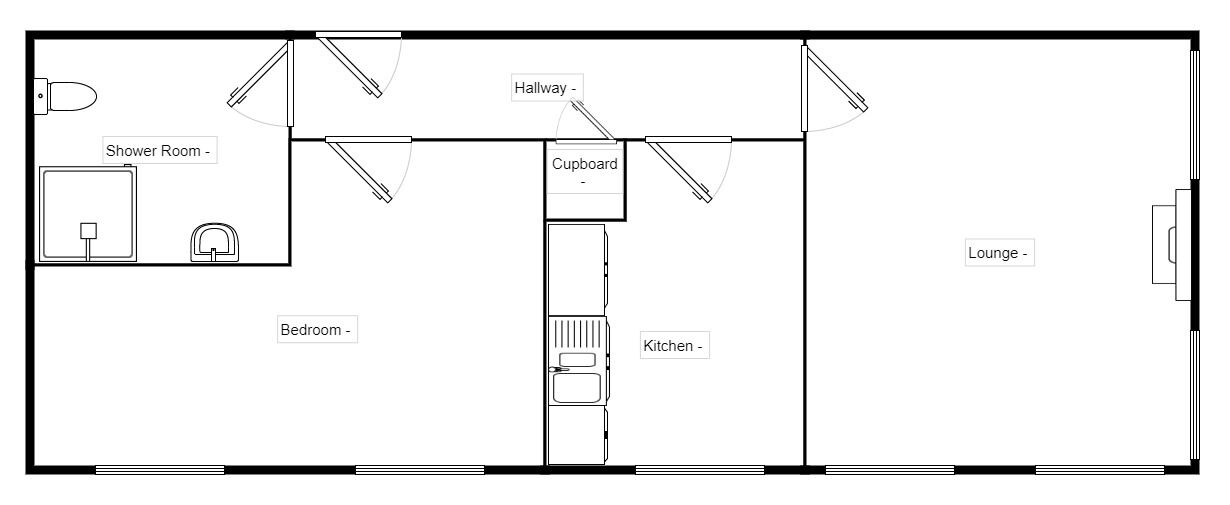
- First floor flat
- One double bedroom with bed.
- Shower room W/C
- Kitchen with electric cooker & washing machine.
- Lounge
- No Parking
- Zero Deposit Guarantee Available
- EPC Rated E
- Council Tax Band A
This first floor property is ideally located in the centre of the popular market town of Wigton, it is within walking distance to local amenities, transport links and outstanding schools. The property comprises a living room with dual aspect windows, kitchen with a range of fitted units,electric cooker, washing machine, double bedroom with furniture and shower room with wash hand basin, w/c and shower. The property also benefits from electric heating and double glazing. There is NO PARKING with this property, cars can be parked within water street car park which operates a permit system. Available now. Zero deposit Guarantee EPC Rating E. Council Tax Band A.
Agents Notes
The property benefits from electric heating & double glazing.
The kitchen includes an older electric cooker, washing machine & space for a fridge freezer. The landlord is not providing a fridge freezer.
The lounge currently has a piano in it, this will be removed.
Double bedroom includes a double bed & single wardrobe, these items can be removed.
Please note there is NO PARKING with this property, cars can be parked within water street car park which operates a permit scheme via MI Permits.
Location
Wigton offers a wide range of social, retail and leisure facilities and is approximately nine miles from the Lake District National Park.
Living Room
13'3" x 13'5" (4.05m x 4.09m)
This light & airy room with duel aspect windows, electric heating, dark grey carpet & window dressings.
Kitchen
10'0" x 8'1" (3.06m x 2.47m)
Fitted with a range of wall & base units, electric cooker & a washing machine (there is space for a fridge freezer).
Bedroom
13'5" x 10'3" (4.08m x 3.13m)
This double bedroom has a grey carpet, window dressings, electric heater, double bed & a single wardrobe.
Shower Room
Shower room with wash hand basin, W/C and separate shower cubicle ( New Vinyl flooring is on Order)..
AGENTS NOTES
The property benefits from electric heating & double glazing.The kitchen includes an older electric cooker, washing machine & space for a fridge freezer. The landlord is not providing a fridge freezer.The lounge currently has a piano in it, this will be removed.Double bedroom includes a double bed & single wardrobe, these items can be removed.Please note there is NO PARKING with this property, cars can be parked within water street car park which operates a permit scheme via MI Permits.
IMPORTANT NOTE TO POTENTIAL RENTERS:
We endeavour to make our particulars accurate and reliable, however, they do not constitute or form part of an offer or any contract and none is to be relied upon as statements of representation or fact. The services, systems and appliances listed in this specification have not been tested by us and no guarantee as to their operating ability or efficiency is given. All photographs and measurements have been taken as a guide only and are not precise. Floor plans where included are not to scale and accuracy is not guaranteed. If you require clarification or further information on any points, please contact us, especially if you are travelling some distance to view.
All properties are available for a minimum length of time, with the exception of short term accommodation. Please contact the branch for details. A security deposit of at least one month’s rent is required. Rent is to be paid one month in advance. It is the tenant’s responsibility to insure any personal possessions. Payment of all utilities including water rates or metered supply and Council Tax is the responsibility of the tenant in every case.
Duke Street, Wigton, Cumbria, CA7
This light & airy room with duel aspect windows, electric heating, dark grey carpet & window dressings.
Fitted with a range of wall & base units, electric cooker & a washing machine (there is space for a fridge freezer).
This double bedroom has a grey carpet, window dressings, electric heater, double bed & a single wardrobe.
Shower room with wash hand basin, W/C and separate shower cubicle ( New Vinyl flooring is on Order)..
The pin shows the exact address of the property
Energy Efficiency Rating
Very energy efficient - lower running costs
Not energy efficient - higher running costs
Current
49Potential
66CO2 Rating
Very energy efficient - lower running costs
Not energy efficient - higher running costs
