2 bedroom Flat to rent, Nevill Street, Tunbridge Wells, Kent, TN2
Available from 22/05/2026
Features and Description
- Historic Pantiles Location
- Spacious Internal Layout
- Open Plan Reception - Vaulted Ceiling
- Kitchen With Central Island
- Central Location - Close to MLRS
- Two Double Bedrooms & Two Bathrooms
Welcome to this charming flat that's available to let, where you'll find a delightful mix of comfort and charm. The property is neutrally decorated, making it a perfect canvas for you to bring your interior design dreams to life and even better its located at the entrance of the historic Pantiles so the location is perfect!
Positioned on the third floor of this Grade II listed building and boasting a lift to all floors and two generously sized double bedrooms, this flat is perfect for sharers, families or couples. Both bedrooms are spacious and filled with natural light, creating an inviting atmosphere for restful nights. The first bedroom comes with an en-suite and built-in wardrobes, adding to the overall convenience.
The bathroom is sizeable and well-appointed, ready to cater to your daily needs. The kitchen is a real treat - an open-plan space that receives plenty of natural light, and boasts a central island. It's the perfect setup for those who love to cook and entertain.
One of the key highlights of this property is the reception room. It's open-plan with twin windows and high vaulted ceilings, providing a sense of grandeur and space and some impressive town scape views. You'll love the versatility this room offers, whether you want to unwind with a good book or host an intimate gathering.
As for the location, it's simply unbeatable. The flat is conveniently situated next to the historic Pantiles, near public transport links, local amenities, and nearby parks, ensuring everything you need is within reach.
Security Deposit: £2019.00 Holding Deposit: £403.00 EPC Exempt Council Tax Band D.
Location
The historic Pantiles is known for its charming Georgian colonnade, the Corn Exchange and Chealybeate spring with a delightful variety of independent shops, art galleries, boutiques, cafés, restaurants and pubs, the summer jazz festivals and regular food and craft markets, all of which you can enjoy from the view of your balcony. The nearby, bustling High Street is linked by the delightful Chapel Place walkway with the mainline station just a little further on.
The Pantiles is very well placed for the neighbouring open spaces of the Common with its network of footpaths. Calverley Park is also within convenient reach and there are both cricket and tennis facilities at the Nevill grounds, off nearby Warwick Park with the renowned Nevill Golf Club about 1.7 miles.
The High Street also offers a wonderful choice of further independent clothing boutiques and retailers, jewellers, cafés such as Fine Grind, Juliets and Arte Bianca, a GAIL's' bakery and restaurants including The Ivy Royal Tunbridge Wells and The Warren.
The mainline station serving London Charing Cross (via London Bridge and Waterloo East) and Cannon Street is about 0.4 miles by foot; the Centaur Commuter Coach also stops near the station.
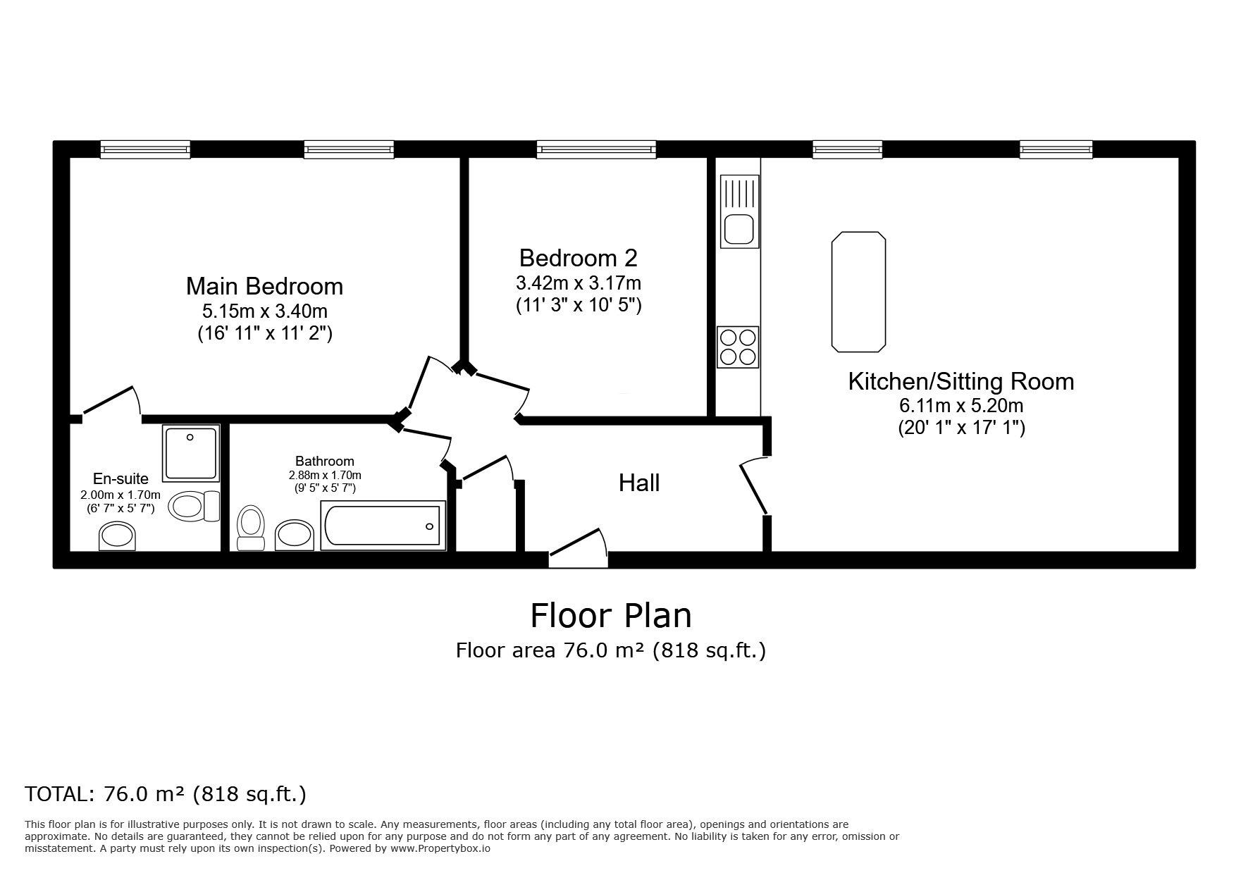
Open Plan Kitchen / Reception Room
20'1" x 17'1" (6.12m x 5.20m)
Bedroom 1
16'11" x 11'2" (5.16m x 3.40m)
En-Suite Shower Room WC
6'7" x 5'7" (2.00m x 1.70m)
Bedroom 2
11'3" x 10'5" (3.43m x 3.18m)
Family Bathroom WC
9'5" x 5'7" (2.87m x 1.70m)
IMPORTANT NOTE TO POTENTIAL RENTERS:
We endeavour to make our particulars accurate and reliable, however, they do not constitute or form part of an offer or any contract and none is to be relied upon as statements of representation or fact. The services, systems and appliances listed in this specification have not been tested by us and no guarantee as to their operating ability or efficiency is given. All photographs and measurements have been taken as a guide only and are not precise. Floor plans where included are not to scale and accuracy is not guaranteed. If you require clarification or further information on any points, please contact us, especially if you are travelling some distance to view.
All properties are available for a minimum length of time, with the exception of short term accommodation. Please contact the branch for details. A security deposit of at least one month’s rent is required. Rent is to be paid one month in advance. It is the tenant’s responsibility to insure any personal possessions. Payment of all utilities including water rates or metered supply and Council Tax is the responsibility of the tenant in every case.
Nevill Street, Tunbridge Wells, Kent, TN2
Additional Information
-
Property refTUN240430
-
Council TaxD
-
Local authorityTunbridge Wells Borough Council
Your Move Letting Agents Tunbridge Wells
Rental Tools
Similar properties to rent by Your Move Tunbridge Wells
The pin shows the exact address of the property
Energy Efficiency Rating
Very energy efficient - lower running costs
Not energy efficient - higher running costs
Current
N/APotential
N/ACO2 Rating
Very energy efficient - lower running costs
Not energy efficient - higher running costs
