1 bedroom Flat to rent, Sommerville Close, Faversham, Kent, ME13
Available Unfurnished, from 07/03/2026
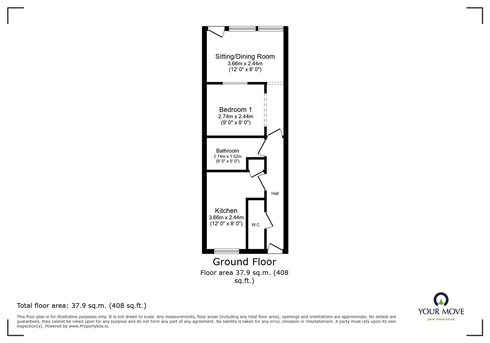
Features and Description
- Walking distance to Faversham station
- Direct trains to London and Canterbury
- Allocated off-street parking space
- Close to historic town centre
- Near shops, cafés and markets
- Ideal for single professional or couple
- Access to A2 and M2 roads
- Near parks and riverside walks
Newly renovated one bedroom flat available now within walking distance to Faversham Town. Perfect home for first time renters and commuters.
Holding Deposit: £206
Security Deposit: £1032
Location
Sommerville Close is a quiet residential cul-de-sac situated on the popular outskirts of Faversham, offering a peaceful setting while remaining conveniently close to the town’s amenities. Faversham’s historic town centre provides a wide range of independent shops, cafes, pubs and supermarkets, along with excellent transport links including a mainline railway station with services to London. The area is well regarded for its schooling, green spaces and access to the Kent countryside, while the nearby A2 and M2 offer straightforward road connections to Canterbury, Sittingbourne and the coast.
IMPORTANT NOTE TO POTENTIAL RENTERS:
We endeavour to make our particulars accurate and reliable, however, they do not constitute or form part of an offer or any contract and none is to be relied upon as statements of representation or fact. The services, systems and appliances listed in this specification have not been tested by us and no guarantee as to their operating ability or efficiency is given. All photographs and measurements have been taken as a guide only and are not precise. Floor plans where included are not to scale and accuracy is not guaranteed. If you require clarification or further information on any points, please contact us, especially if you are travelling some distance to view.
All properties are available for a minimum length of time, with the exception of short term accommodation. Please contact the branch for details. A security deposit of at least one month’s rent is required. Rent is to be paid one month in advance. It is the tenant’s responsibility to insure any personal possessions. Payment of all utilities including water rates or metered supply and Council Tax is the responsibility of the tenant in every case.
Sommerville Close, Faversham, Kent, ME13
The pin shows the exact address of the property
Energy Efficiency Rating
Very energy efficient - lower running costs
Not energy efficient - higher running costs
Current
47Potential
80CO2 Rating
Very energy efficient - lower running costs
Not energy efficient - higher running costs
