1 bedroom Flat to rent, Thurcaston Road, Leicester, LE4
Available Unfurnished, from 30/04/2026
Features and Description
- Council tax band A
- EPC band D
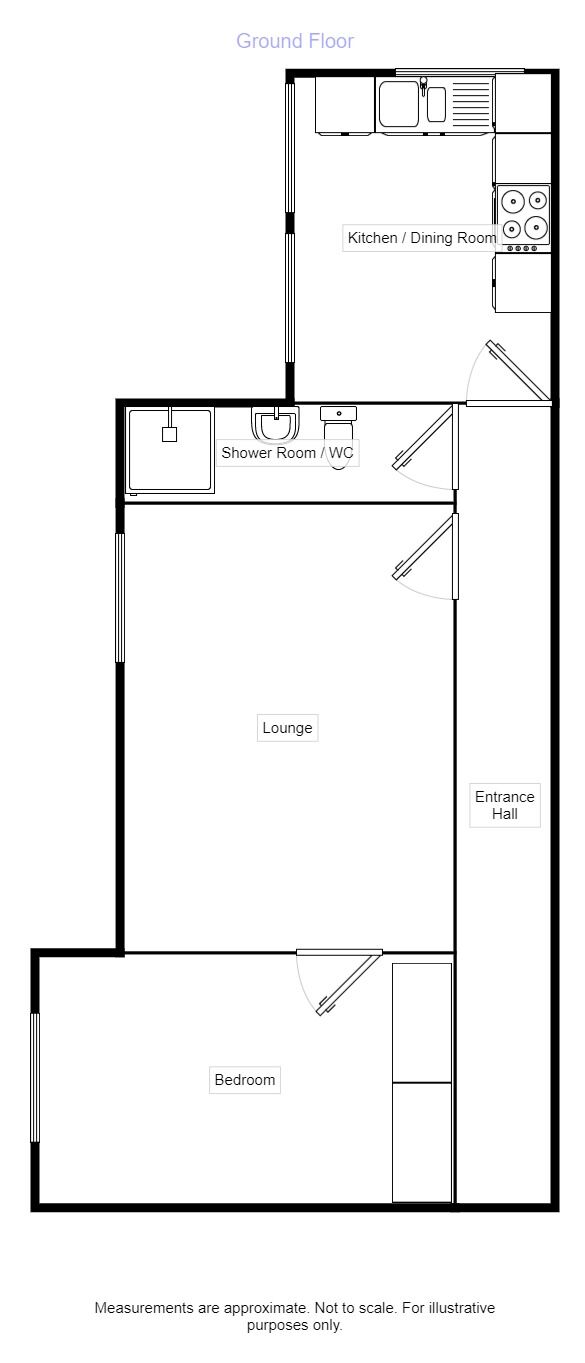
- First Floor One Double Bed Flat
- Newly decorated
- Fitted Kitchen / Dining Room
- Shower Room / WC
Your Move are delighted to offer for Let this spacious newly decorated One Bedroom First Floor Flat.
The accommodation benefits from double glazing and gas central heating via a combi boiler. The flat has its own entrance and door entry system. The Lounge is large with a wall mounted electric fire and fire place as well as a TV point. The Bedroom offers floor to ceiling fitted wardrobes and also offers a TV point. The Kitchen / Dining room has a range of wall and base units with an integral electric hob with an electric oven below and extractor hood with light over. The Kitchen. The Shower Room has a shower, WC and hand basin. This flat is in very good order and an early viewing is highly recommended to avoid disappointment !!!
Holding and Security Deposits may apply, ask in branch for details.
Kitchen / Dining Room
2.64 x 3.3
Lounge
3.35 x 4.5
Bedroom
4.22 x 2.57
IMPORTANT NOTE TO POTENTIAL RENTERS:
We endeavour to make our particulars accurate and reliable, however, they do not constitute or form part of an offer or any contract and none is to be relied upon as statements of representation or fact. The services, systems and appliances listed in this specification have not been tested by us and no guarantee as to their operating ability or efficiency is given. All photographs and measurements have been taken as a guide only and are not precise. Floor plans where included are not to scale and accuracy is not guaranteed. If you require clarification or further information on any points, please contact us, especially if you are travelling some distance to view.
All properties are available for a minimum length of time, with the exception of short term accommodation. Please contact the branch for details. A security deposit of at least one month’s rent is required. Rent is to be paid one month in advance. It is the tenant’s responsibility to insure any personal possessions. Payment of all utilities including water rates or metered supply and Council Tax is the responsibility of the tenant in every case.
Thurcaston Road, Leicester, LE4
The pin shows the exact address of the property
Energy Efficiency Rating
Very energy efficient - lower running costs
Not energy efficient - higher running costs
Current
65Potential
71CO2 Rating
Very energy efficient - lower running costs
Not energy efficient - higher running costs
