2 bedroom Flat to rent, Warwick Avenue, Bedford, Bedfordshire, MK40
Available Unfurnished, from 15/05/2026
Features and Description
- Holding and Security Deposits may apply, ask in branch for details
- Two Bedroom Third Floor Apartment
- Lounge and Open Planned Modern Kitchen
- Main Bedroom With En-suite Shower Room
- Walking Distance to Bedford Town Centre
- Security Gated Parking
- Well Presented
- EPC Rating B and Council Tax Band C
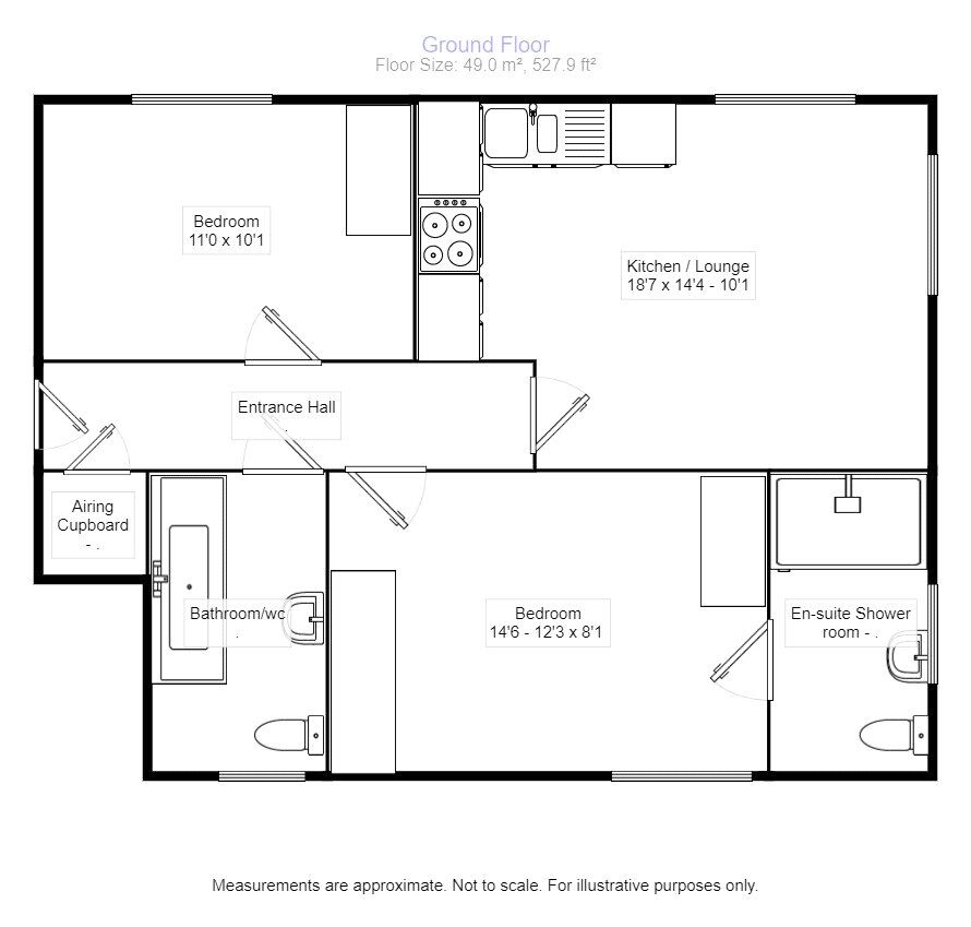
This well presented, third floor apartment is located within a short walk to Bedford Train Station and Bedford Town centre. This spacious two bedroom apartment offers you neutral décor, entrance hall with a utility cupboard, living room with modern fitted kitchen and appliance's. There is two double bedrooms with built in wardrobes and the main bedroom has an en-suite shower room. There is a further bathroom with a modern white bathroom suite with a shower over. There is security gated access leading round the back of the block to a private allocated residents parking area. EPC grade B. Call Your Move to arrange your viewing
IMPORTANT NOTE TO POTENTIAL RENTERS:
We endeavour to make our particulars accurate and reliable, however, they do not constitute or form part of an offer or any contract and none is to be relied upon as statements of representation or fact. The services, systems and appliances listed in this specification have not been tested by us and no guarantee as to their operating ability or efficiency is given. All photographs and measurements have been taken as a guide only and are not precise. Floor plans where included are not to scale and accuracy is not guaranteed. If you require clarification or further information on any points, please contact us, especially if you are travelling some distance to view.
All properties are available for a minimum length of time, with the exception of short term accommodation. Please contact the branch for details. A security deposit of at least one month’s rent is required. Rent is to be paid one month in advance. It is the tenant’s responsibility to insure any personal possessions. Payment of all utilities including water rates or metered supply and Council Tax is the responsibility of the tenant in every case.
Warwick Avenue, Bedford, Bedfordshire, MK40
The pin shows the exact address of the property
Energy Efficiency Rating
Very energy efficient - lower running costs
Not energy efficient - higher running costs
Current
83Potential
83CO2 Rating
Very energy efficient - lower running costs
Not energy efficient - higher running costs
