1 bedroom Link Detached House to rent, Bridle Path Road, Leeds, LS17
Available Furnished, from 10/04/2026
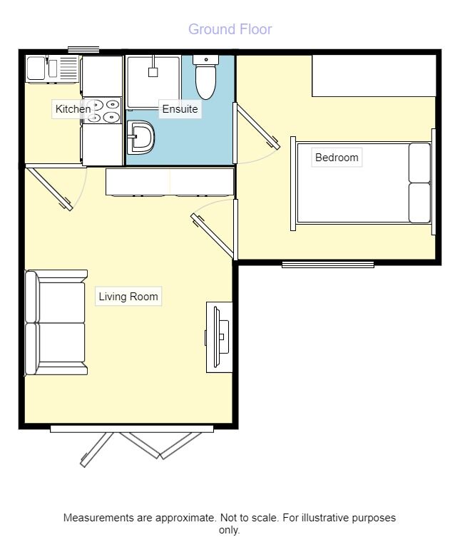
Features and Description
- 1 Bedroom
- Description
- Summary
- Ensuite
- Living Room
- Kitchen
- Outside
This unique property is ideal for single professionals or a couple that want to be near to the City but like a more countryside feel. Located on the grounds of the main house, this converted building will provide a quiet, comfy retreat away from the busier areas. Finished to a high standard with gas, double glazing and wifi. Perfect for professionals.
IMPORTANT NOTE TO POTENTIAL RENTERS:
We endeavour to make our particulars accurate and reliable, however, they do not constitute or form part of an offer or any contract and none is to be relied upon as statements of representation or fact. The services, systems and appliances listed in this specification have not been tested by us and no guarantee as to their operating ability or efficiency is given. All photographs and measurements have been taken as a guide only and are not precise. Floor plans where included are not to scale and accuracy is not guaranteed. If you require clarification or further information on any points, please contact us, especially if you are travelling some distance to view.
All properties are available for a minimum length of time, with the exception of short term accommodation. Please contact the branch for details. A security deposit of at least one month’s rent is required. Rent is to be paid one month in advance. It is the tenant’s responsibility to insure any personal possessions. Payment of all utilities including water rates or metered supply and Council Tax is the responsibility of the tenant in every case.
Bridle Path Road, Leeds, LS17
The pin shows the exact address of the property
Energy Efficiency Rating
Very energy efficient - lower running costs
Not energy efficient - higher running costs
Current
64Potential
91CO2 Rating
Very energy efficient - lower running costs
Not energy efficient - higher running costs
