This calculator provides a guide to the amount of residential stamp duty you may pay and does not guarantee this will be the actual cost. This calculation is based on the Stamp Duty Land Tax Rates for residential properties purchased from 23rd September 2022 and second homes from 31st October 2024. For more information on Land and Buildings Transaction Tax, click here.
4 bedroom Mid Terrace House for sale, Longthorn Gardens, Dalkeith, Midlothian, EH22
Features and Description
Discover contemporary living in the heart of Shawfair with this exciting new development offering a superb range of spacious 2, 3, 4 and 5 bedroom homes alongside stylish 2 bedroom apartments. Thoughtfully designed for modern lifestyles, each property features bright open-plan living spaces, high-quality kitchens and bathrooms, generous bedrooms, and energy-efficient construction, with selected homes benefiting from private outdoor space. Ideally located in a popular residential area, residents enjoy easy access to a wide range of local amenities including shops, schools, and leisure facilities, while excellent transport links—such as Shawfair railway station and nearby road networks—provide convenient connections into Edinburgh city centre and beyond.
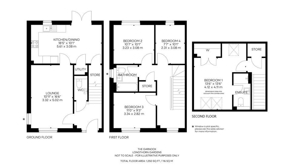
This beautifully designed three-storey home offers an enviable blend of space, style and functionality. At the heart of the home is the open-plan kitchen/dining area, with French doors out to the garden creating a seamless indoor-outdoor flow. A spacious lounge, practical utility store and WC complete the ground floor. Upstairs,you’ll find three well-proportioned bedrooms, offering flexibility for family members or a home office. The top floor is dedicated to the luxurious principal bedroom, with an en suite shower room for added convenience.
IMPORTANT NOTE TO POTENTIAL PURCHASERS:
We endeavour to make our particulars accurate and reliable, however, they do not constitute or form part of an offer or any contract and none is to be relied upon as statements of representation or fact. The services, systems and appliances listed in this specification have not been tested by us and no guarantee as to their operating ability or efficiency is given. All photographs and measurements have been taken as a guide only and are not precise. Floor plans where included are not to scale and accuracy is not guaranteed. If you require clarification or further information on any points, please contact us, especially if you are travelling some distance to view. Fixtures and fittings other than those mentioned are to be agreed with the seller.
Longthorn Gardens, Dalkeith, Midlothian, EH22
The pin shows the exact address of the property
Energy Efficiency Rating
Very energy efficient - lower running costs
Not energy efficient - higher running costs
Current
N/APotential
N/ACO2 Rating
Very energy efficient - lower running costs
Not energy efficient - higher running costs
