3 bedroom Mid Terrace House to rent, Canning Street, Hinckley, Leicestershire, LE10
Available Unfurnished, from 30/04/2026
Features and Description
- Three Bedrooms
- Sought After Central Location
- Two Reception Rooms
- Available Now
- EPC Rating D
- Council Tax Band A
This spacious terraced home is situated close to the centre of Hinckley while being far enough out to enjoy the quiet. This home in this location has much to offer the lucky tenant and early viewing is strongly recommended to save on later disappointment!
Location
The property lies close to the centre of Hinckley which offers a host of local amenities including the popular Crescent development, local theatre (The Concordia) leading supermarkets, hair and beauty parlours, restaurants and is served by a number of sought after schools nearby (according to the latest league tables) train and bus stations are also accessible. With an excellent road network this property is ideal for those looking to commute to any of the main Midlands centres.
Property
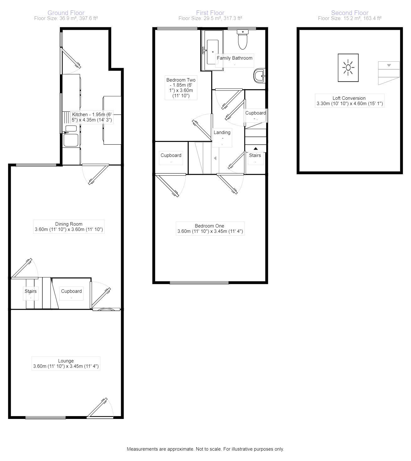
Accommodation comprises Lounge, Dining Room, Kitchen, Landing, Bedroom One, Bedroom Two, Family Bathroom and Stairs to 2nd Floor, Loft Conversion. Externally the property has a yard to rear.
Lounge
11'4" x 11'9" (3.46m x 3.59m)
Dining Room
11'10" x 11'9" (3.60m x 3.58m)
Kitchen
14'4" x 6'5" (4.37m x 1.95m)
Landing
7'4" x 2'7" (2.24m x 0.78m)
Bedroom 1
11'5" x 11'10" (3.47m x 3.60m)
Bedroom 2
11'11" x 6'0" (3.62m x 1.83m)
Family Bathroom
7'5" x 6'8" (2.27m x 2.04m)
Bedroom 3
15'1" x 10'10" (4.61m x 3.31m)
IMPORTANT NOTE TO POTENTIAL RENTERS:
We endeavour to make our particulars accurate and reliable, however, they do not constitute or form part of an offer or any contract and none is to be relied upon as statements of representation or fact. The services, systems and appliances listed in this specification have not been tested by us and no guarantee as to their operating ability or efficiency is given. All photographs and measurements have been taken as a guide only and are not precise. Floor plans where included are not to scale and accuracy is not guaranteed. If you require clarification or further information on any points, please contact us, especially if you are travelling some distance to view.
All properties are available for a minimum length of time, with the exception of short term accommodation. Please contact the branch for details. A security deposit of at least one month’s rent is required. Rent is to be paid one month in advance. It is the tenant’s responsibility to insure any personal possessions. Payment of all utilities including water rates or metered supply and Council Tax is the responsibility of the tenant in every case.
Canning Street, Hinckley, Leicestershire, LE10
Additional Information
-
Property refHIN230012
-
EPCD
-
TenureFreehold
-
Council TaxA
-
Local authorityHinckley and Bosworth Council
Your Move Letting Agents Hinckley
Rental Tools
The pin shows the exact address of the property
Energy Efficiency Rating
Very energy efficient - lower running costs
Not energy efficient - higher running costs
Current
65Potential
83CO2 Rating
Very energy efficient - lower running costs
Not energy efficient - higher running costs
