3 bedroom Mid Terrace House to rent, Peter Street, Workington, Cumbria, CA14
Available Unfurnished, from 27/04/2026
Features and Description
- EPC Rating D
- Council Tax Band A
- Security Deposit £750
- Mid Terraced House
- Town Centre Location
- Three Bedrooms
- First Floor Bathroom
- Unfurnished
A three bedroomed mid terraced house located close to Workington town centre. It is within walking distance of a wide range of shops and amenities, schools and public transport.
The property is heated by gas central heating and has accommodation to include an open plan lounge/dining room, kitchen, first floor bathroom, three bedrooms and rear yard. Parking is on street via a resident's permit from Cumberland Council.
Council Tax Band A. EPC Rating D.
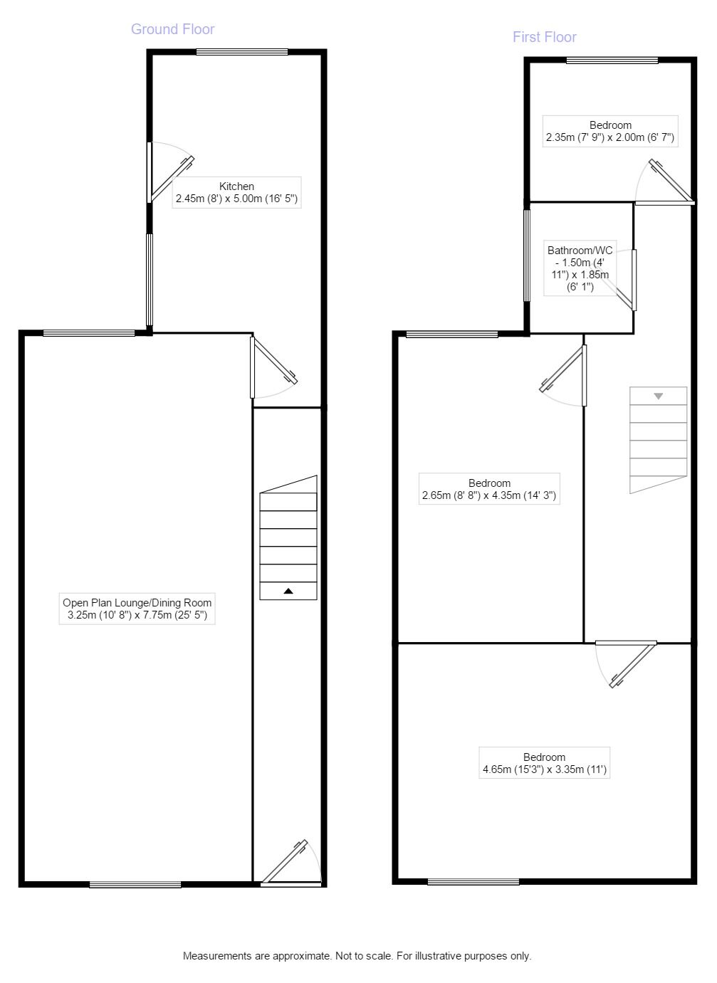
Entrance Hall
With stairs to the first floor.
Open Plan Lounge / Dining Room
10'8" x 25'5" (3.25m x 7.75m)
A spacious open plan, dual aspect lounge dining room with wood effect flooring.
Kitchen
8'0" x 12'12" (2.45m x 3.95m)
Fitted with a range of wall and base units incorporating a sink unit and built in oven and hob.
Bedroom 3
7'9" x 6'7" (2.35m x 2.00m)
Bathroom
4'11" x 6'1" (1.50m x 1.85m)
Fitted with a suite comprising wc, wash basin and bath.
Bedroom 2
8'8" x 14'3" (2.65m x 4.35m)
Bedroom 1
15'3" x 10'12" (4.65m x 3.35m)
Rear Yard
To the rear of the property is an enclosed yard.
IMPORTANT NOTE TO POTENTIAL RENTERS:
We endeavour to make our particulars accurate and reliable, however, they do not constitute or form part of an offer or any contract and none is to be relied upon as statements of representation or fact. The services, systems and appliances listed in this specification have not been tested by us and no guarantee as to their operating ability or efficiency is given. All photographs and measurements have been taken as a guide only and are not precise. Floor plans where included are not to scale and accuracy is not guaranteed. If you require clarification or further information on any points, please contact us, especially if you are travelling some distance to view.
All properties are available for a minimum length of time, with the exception of short term accommodation. Please contact the branch for details. A security deposit of at least one month’s rent is required. Rent is to be paid one month in advance. It is the tenant’s responsibility to insure any personal possessions. Payment of all utilities including water rates or metered supply and Council Tax is the responsibility of the tenant in every case.
Peter Street, Workington, Cumbria, CA14
Additional Information
-
Property refWHT160013
-
EPCD
-
Council TaxA
-
Local authorityCumberland Council
Your Move Letting Agents Whitehaven
Rental Tools
Fitted with a range of wall and base units incorporating a sink unit and built in oven and hob.
Fitted with a suite comprising wc, wash basin and bath.
The pin shows the exact address of the property
Energy Efficiency Rating
Very energy efficient - lower running costs
Not energy efficient - higher running costs
Current
59Potential
82CO2 Rating
Very energy efficient - lower running costs
Not energy efficient - higher running costs
