3 bedroom Detached House to rent, Kennedy Crescent, Gosport, Hampshire, PO12
Available Unfurnished, from 13/02/2026
Features and Description
** GORGEOUS, LARGE, LIGHT & AIRY THREE DOUBLE BEDROOM DETACHED HOUSE IN ALVERSTOKE **
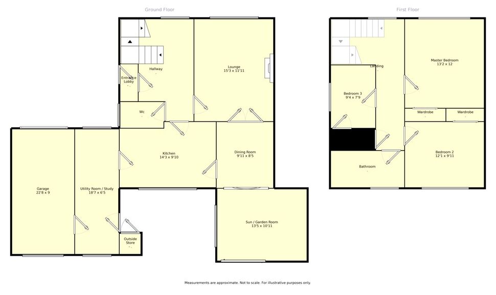
* Good Sized Lounge * Dining Room * Reception Room 3/Sun Room * Study * Modern Kitchen overlooking the Garden * Downstairs WC * Modern Family Bathroom * Mature Good Sized Garden * Garage & Driveway * Must be seen to appreciate!!
EPC Rating C
Council Tax Band E
IMPORTANT NOTE TO POTENTIAL RENTERS:
We endeavour to make our particulars accurate and reliable, however, they do not constitute or form part of an offer or any contract and none is to be relied upon as statements of representation or fact. The services, systems and appliances listed in this specification have not been tested by us and no guarantee as to their operating ability or efficiency is given. All photographs and measurements have been taken as a guide only and are not precise. Floor plans where included are not to scale and accuracy is not guaranteed. If you require clarification or further information on any points, please contact us, especially if you are travelling some distance to view.
All properties are available for a minimum length of time, with the exception of short term accommodation. Please contact the branch for details. A security deposit of at least one month’s rent is required. Rent is to be paid one month in advance. It is the tenant’s responsibility to insure any personal possessions. Payment of all utilities including water rates or metered supply and Council Tax is the responsibility of the tenant in every case.
Kennedy Crescent, Gosport, Hampshire, PO12
Additional Information
-
Property refWLO250418
Your Move Letting Agents Waterlooville
Rental Tools
Similar properties to rent by Your Move Waterlooville
The pin shows the exact address of the property
Energy Efficiency Rating
Very energy efficient - lower running costs
Not energy efficient - higher running costs
Current
N/APotential
N/ACO2 Rating
Very energy efficient - lower running costs
Not energy efficient - higher running costs
