2 bedroom Semi Detached Bungalow to rent, Martins Road, Bedworth, Warwickshire, CV12
Available Unfurnished, from 01/02/2026
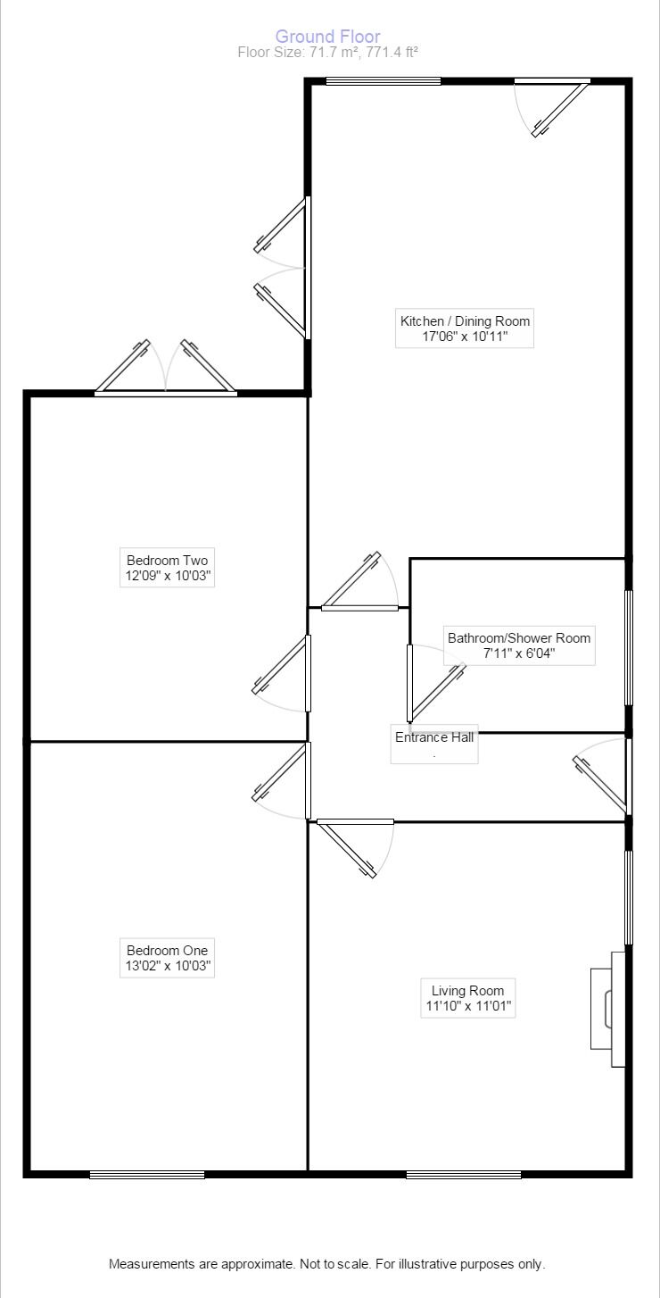
Features and Description
- Two Bedroom Extended Bungalow
- Two Double Size Bedrooms
- Extended Dining Kitchen
- Good Size Lounge
- Viewing Essential
- Beautiful Gardens
- EPC Rating D
This three or four bedroom extended semi-detached property is situated in a popular cul-de-sac in the village of Hoo.
The accommodation on offer comprises lounge/dining room, kitchen, study, conservatory, utility room, ground floor bedroom/reception two with three bedrooms, bathroom and separate w.c., to the first floor.
The many benefits include double glazing where stated, gas central heating and a private driveway for approximately three vehicles.
We highly recommend viewing of this property to fully appreciate the size and flexibility of the accommodation on offer.
Location
Located in a popular residential area there are a wealth of amenities on offer to include convenience shops, schools, petrol station, eateries and easy access to Coventry, Nuneaton via the A444 and the M6 motorway network.
IMPORTANT NOTE TO POTENTIAL RENTERS:
We endeavour to make our particulars accurate and reliable, however, they do not constitute or form part of an offer or any contract and none is to be relied upon as statements of representation or fact. The services, systems and appliances listed in this specification have not been tested by us and no guarantee as to their operating ability or efficiency is given. All photographs and measurements have been taken as a guide only and are not precise. Floor plans where included are not to scale and accuracy is not guaranteed. If you require clarification or further information on any points, please contact us, especially if you are travelling some distance to view.
All properties are available for a minimum length of time, with the exception of short term accommodation. Please contact the branch for details. A security deposit of at least one month’s rent is required. Rent is to be paid one month in advance. It is the tenant’s responsibility to insure any personal possessions. Payment of all utilities including water rates or metered supply and Council Tax is the responsibility of the tenant in every case.
Martins Road, Bedworth, Warwickshire, CV12
The pin shows the exact address of the property
Energy Efficiency Rating
Very energy efficient - lower running costs
Not energy efficient - higher running costs
Current
67Potential
81CO2 Rating
Very energy efficient - lower running costs
Not energy efficient - higher running costs
