3 bedroom Semi Detached House to rent, Bluebell Grove, Woodville, Leicestershire, DE11
Features and Description
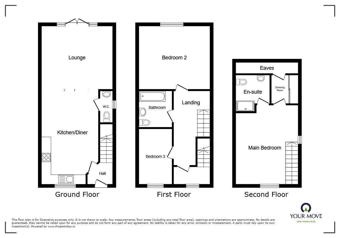
*** THREE BEDROOMS *** THREE STOREYS ***
Holding and Security Deposits may apply, ask in branch for details.
Welcome to this delightful semi-detached property in the charming area of Woodville, Swadlincote. With a "To Let" sign hanging out front, this home is ideal for families and couples alike, offering plenty of space and comfort.
The property boasts three inviting bedrooms. The first is a spacious main bedroom on the top floor, with a luxurious en-suite and built-in wardrobes, the second one is also a comfortable double, and the third is a cosy single bedroom, both on the first floor. There is also a family bathroom.
The open-plan kitchen is a dream for any home cook, and the single open-plan reception room offers a welcoming space for relaxation and entertainment, with the added benefit of access to a lovely garden. The property's unique features include ample parking and a beautiful garden, perfect for enjoying sunny days. With a commendable EPC rating of B and a council tax band of C, this property is a cost-effective choice. Come and see for yourself the potential this home holds for creating lasting memories.
IMPORTANT NOTE TO POTENTIAL RENTERS:
We endeavour to make our particulars accurate and reliable, however, they do not constitute or form part of an offer or any contract and none is to be relied upon as statements of representation or fact. The services, systems and appliances listed in this specification have not been tested by us and no guarantee as to their operating ability or efficiency is given. All photographs and measurements have been taken as a guide only and are not precise. Floor plans where included are not to scale and accuracy is not guaranteed. If you require clarification or further information on any points, please contact us, especially if you are travelling some distance to view.
All properties are available for a minimum length of time, with the exception of short term accommodation. Please contact the branch for details. A security deposit of at least one month’s rent is required. Rent is to be paid one month in advance. It is the tenant’s responsibility to insure any personal possessions. Payment of all utilities including water rates or metered supply and Council Tax is the responsibility of the tenant in every case.
Additional Information
-
Property refSWD260256
-
Council TaxC
-
Local authorityNorth West Leicestershire
