3 bedroom Semi Detached House to rent, Sovereign Gardens, Selston, Nottingham, NG16
Available Unfurnished, from 01/04/2026
Features and Description
- Stunning Family Home
- EPC Grading C
- En Suite To Master
- Off Road Parking
- Enclosed Low Maintenance Garden
- Integrated Appliances
- Easy Commuting To The M1 Motorway
Stunning Modern Semi Detached home available to rent from April but be quick as this one will go fast!!! The Entrance hall gives access to the cloaks W/C and the modern fitted kitchen, the Lounge has plenty of space for a table & chairs along. To the first floor are three bedrooms with the Master bedroom having En-Suite facilities and a modern family Bathroom. An enclosed garden to the rear and a driveway to the side. EPC rating grade is C Early Viewings are advised
Location
Selston is a small village that is situated in close proximity of J27 of the M1 Motorway which also gives access to the A38. Within the village there are a handful of local shops and amenities. A short journey away is Alfreton Town Centre which has a wider variety of shops, doctors, school and a sport centre.
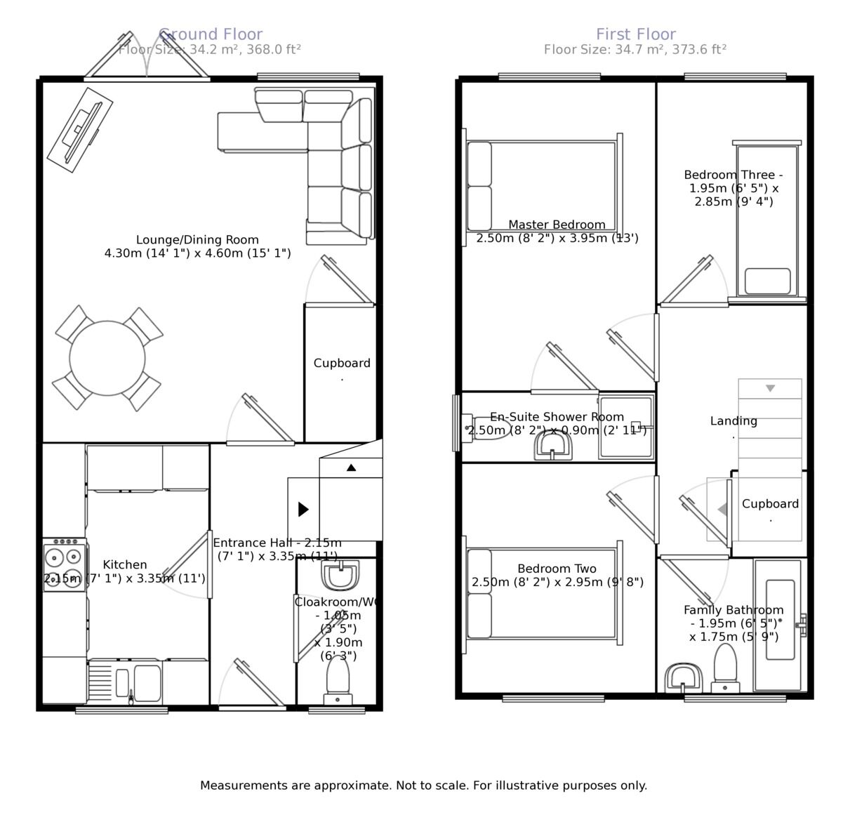
Entrance Hall
1.09 x 3.35
Enter through the composite door into the hallway having an under stairs storage cupboard.
Cloakroom / WC
1.07 x 1.88
Having a low flush wc and wash hand basin.
Kitchen
2.13 x 3.35
The kitchen is undergoing a refurbishment and will have a range of fitted wall and base units with worktops over and inset stainless steel sink drainer. Integrated oven and hob with extractor hood over. Plumbing for a washing machine and space for a fridge freezer. Tiled splash backs and window to the front elevation.
Lounge / Dining Room
4.6 x 4.62
A great size reception room having a radiator and window to the rear elevation. French doors opening onto the rear garden.
Bedroom 1
2.49 x 3.96
A great size double room having a radiator and window to the rear elevation.
En-Suite Shower Room
2.49 x .91
Having a ow flush wc, wash hand basin and walk in shower enclosure. Part tiled walls and heated towel rail.
Bedroom 2
2.49 x 2.95
A further good size double room having a radiator and window to the front elevation.
Bedroom 3
1.96 x 2.87
A good size third bedroom having a radiator and window to the rear elevation.
Family Bathroom
1.96 x 1.73
A white suite comprising low flush wc, wash hand basin and panelled bath with shower over. Part tiled walls, heated towel rail and window to the front elevation.
Rear Garden
To the rear is an enclosed garden laid mainly to lawn with a paved patio area and side access gate.
Parking
Ample off road parking is provided with a driveway leading to the side elevation.
EPC
EPC rating is C
IMPORTANT NOTE TO POTENTIAL RENTERS:
We endeavour to make our particulars accurate and reliable, however, they do not constitute or form part of an offer or any contract and none is to be relied upon as statements of representation or fact. The services, systems and appliances listed in this specification have not been tested by us and no guarantee as to their operating ability or efficiency is given. All photographs and measurements have been taken as a guide only and are not precise. Floor plans where included are not to scale and accuracy is not guaranteed. If you require clarification or further information on any points, please contact us, especially if you are travelling some distance to view.
All properties are available for a minimum length of time, with the exception of short term accommodation. Please contact the branch for details. A security deposit of at least one month’s rent is required. Rent is to be paid one month in advance. It is the tenant’s responsibility to insure any personal possessions. Payment of all utilities including water rates or metered supply and Council Tax is the responsibility of the tenant in every case.
Sovereign Gardens, Selston, Nottingham, NG16
Additional Information
-
Property refKIA150118
-
EPCC
-
Council TaxB
-
Local authorityAshfield District Council
Your Move Letting Agents Kirkby-in-Ashfield
Rental Tools
Enter through the composite door into the hallway having an under stairs storage cupboard.
The kitchen is undergoing a refurbishment and will have a range of fitted wall and base units with worktops over and inset stainless steel sink drainer. Integrated oven and hob with extractor hood over. Plumbing for a washing machine and space for a fridge freezer. Tiled splash backs and window to the front elevation.
Having a ow flush wc, wash hand basin and walk in shower enclosure. Part tiled walls and heated towel rail.
A further good size double room having a radiator and window to the front elevation.
A white suite comprising low flush wc, wash hand basin and panelled bath with shower over. Part tiled walls, heated towel rail and window to the front elevation.
To the rear is an enclosed garden laid mainly to lawn with a paved patio area and side access gate.
The pin shows the exact address of the property
Energy Efficiency Rating
Very energy efficient - lower running costs
Not energy efficient - higher running costs
Current
80Potential
92CO2 Rating
Very energy efficient - lower running costs
Not energy efficient - higher running costs
