3 bedroom Semi Detached House to rent, Spinney Drive, Barlestone, Leicestershire, CV13
Available Unfurnished, from 06/03/2026
Features and Description
- Semi Detached House
- Three Spacious Bedrooms
- Available Early March
- Conservatory To Rear
- Single Garage
- Parking Via Drive For Three Cars
- Highly Sought After Village Location
- Viewing Strongly Recommended
- EPC Rating D
- Council Tax Band B
Take a look at this spacious three bedroom home which is situated in the much sought after village of Barlestone. Benefitting from three spacious bedrooms, conservatory to rear and a drive large enough for several cars with single detached garage beyond. This home has much to offer and in this location is sure to be in demand! Hurry to book your viewing...
Location
Barlestone, a small highly desirable rural setting benefits from excellent views of the surrounding countryside due to its elevated position, situated on the outskirts of Hinckley and Bosworth parish. The village is popular for those seeking a rural lifestyle. Barlestone offers a smaller Co-Op store, post office, local shops and restaurant.
Property
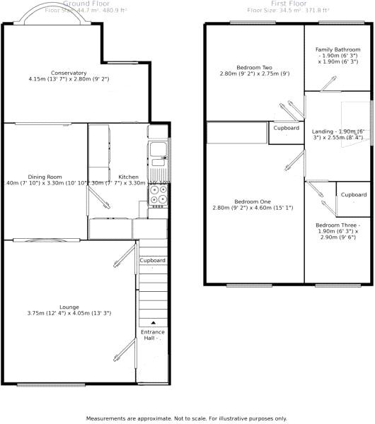
Take a look at this spacious three bedroom home which is situated in the much sought after village of Barlestone. Benefitting from three spacious bedrooms, conservatory to rear and a drive large enough for several cars with single detached garage beyond. This home has much to offer and in this location is sure to be in demand! Hurry to book your viewing...Accommodation fully comprises Entrance Hall, Living Room, Dining Room, Kitchen, Conservatory, Landing, Bedroom One, Bedroom Two, Bedroom Three and Family Bathroom.Externally the property has a large drive to side leading to the single detached Garage with gardens to front and rear.
Entrance Hall
3'5" x 6'2" (1.04m x 1.88m)
Lounge
12'3" x 13'3" (3.73m x 4.04m)
Dining Room
7'11" x 10'10" (2.41m x 3.30m)
Kitchen
7'6" x 10'10" (2.29m x 3.30m)
Conservatory
13'7" x 11'4" (4.14m x 3.45m)
Landing
8'1" x 5'11" (2.46m x 1.80m)
Bedroom 1
12'12" x 8'8" (3.96m x 2.64m)
Bedroom 2
9'3" x 9'1" (2.82m x 2.77m)
Bedroom 3
6'6" x 9'7" (1.98m x 2.92m)
Family Bathroom
6'3" x 6'2" (1.90m x 1.88m)
IMPORTANT NOTE TO POTENTIAL RENTERS:
We endeavour to make our particulars accurate and reliable, however, they do not constitute or form part of an offer or any contract and none is to be relied upon as statements of representation or fact. The services, systems and appliances listed in this specification have not been tested by us and no guarantee as to their operating ability or efficiency is given. All photographs and measurements have been taken as a guide only and are not precise. Floor plans where included are not to scale and accuracy is not guaranteed. If you require clarification or further information on any points, please contact us, especially if you are travelling some distance to view.
All properties are available for a minimum length of time, with the exception of short term accommodation. Please contact the branch for details. A security deposit of at least one month’s rent is required. Rent is to be paid one month in advance. It is the tenant’s responsibility to insure any personal possessions. Payment of all utilities including water rates or metered supply and Council Tax is the responsibility of the tenant in every case.
Spinney Drive, Barlestone, Leicestershire, CV13
The pin shows the exact address of the property
Energy Efficiency Rating
Very energy efficient - lower running costs
Not energy efficient - higher running costs
Current
67Potential
84CO2 Rating
Very energy efficient - lower running costs
Not energy efficient - higher running costs
