This calculator provides a guide to the amount of residential stamp duty you may pay and does not guarantee this will be the actual cost. This calculation is based on the Stamp Duty Land Tax Rates for residential properties purchased from 23rd September 2022 and second homes from 31st October 2024. For more information on Stamp Duty Land Tax, click here.
2 bedroom Semi Detached House for sale, Sherbourne Drive, Burton-on-Trent, Staffordshire, DE14
Features and Description
- Investors Only
- Excellent Corner Plot
- Large Garden
- EPC Grade D
- Cul de sac Location
- Regents Park Estate
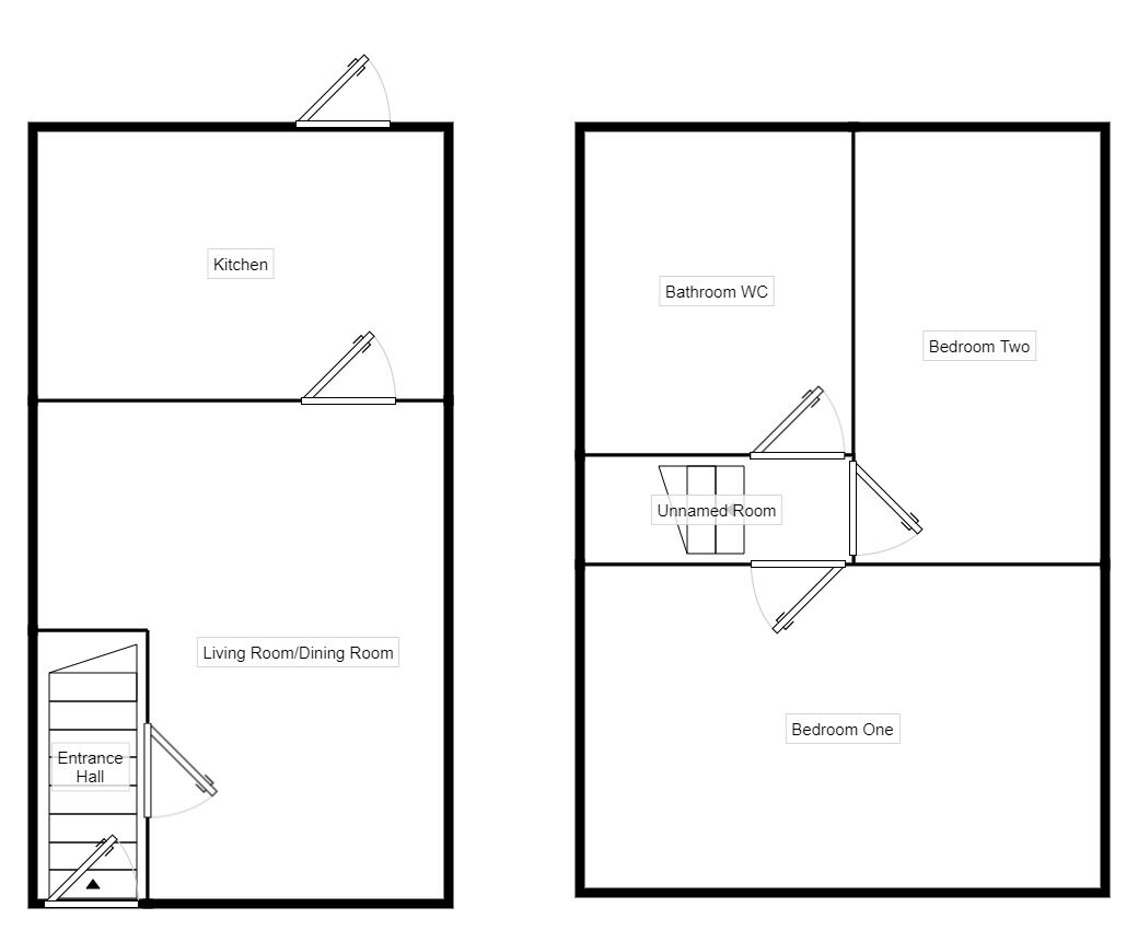
Situated on a generous corner plot in the very popular Regents Park area of Branston. The accommodation comprises entrance hall, lounge diner and kitchen. To the first floor are two good sized bedrooms and bathroom WC. Outside the property there is ample off road parking along with a very private larger than average garden to the side and rear. EPC Grade D.
Location
Situated on the very popular Regents Park estate in Branston, within walking distance of a great selection of amenities and good schools. There is also excellent access to the major road links such as the A38.
Entrance Hall
7`8 x 2`8
Lounge Diner
14`0 x 8`6
Kitchen
7`8 x 11`7
Bedroom 1
8`6 x 11`6
Bedroom 2
10`2 x 6`3
Bathroom WC
5`1 x 7`3
IMPORTANT NOTE TO POTENTIAL PURCHASERS:
We endeavour to make our particulars accurate and reliable, however, they do not constitute or form part of an offer or any contract and none is to be relied upon as statements of representation or fact. The services, systems and appliances listed in this specification have not been tested by us and no guarantee as to their operating ability or efficiency is given. All photographs and measurements have been taken as a guide only and are not precise. Floor plans where included are not to scale and accuracy is not guaranteed. If you require clarification or further information on any points, please contact us, especially if you are travelling some distance to view. Fixtures and fittings other than those mentioned are to be agreed with the seller.
Sherbourne Drive, Burton-on-Trent, Staffordshire, DE14
Additional Information
-
Property refBUR200165
-
EPCD
-
TenureFreehold
-
Council TaxB
-
Local authorityEast Staffordshire Borough Council
Similar properties for sale by Your Move Burton on Trent
The pin shows the exact address of the property
Energy Efficiency Rating
Very energy efficient - lower running costs
Not energy efficient - higher running costs
Current
58Potential
86CO2 Rating
Very energy efficient - lower running costs
Not energy efficient - higher running costs
