This calculator provides a guide to the amount of residential stamp duty you may pay and does not guarantee this will be the actual cost. This calculation is based on the Stamp Duty Land Tax Rates for residential properties purchased from 23rd September 2022 and second homes from 31st October 2024. For more information on Stamp Duty Land Tax, click here.
3 bedroom Semi Detached House for sale, Homefield Road, Codsall, Staffordshire, WV8
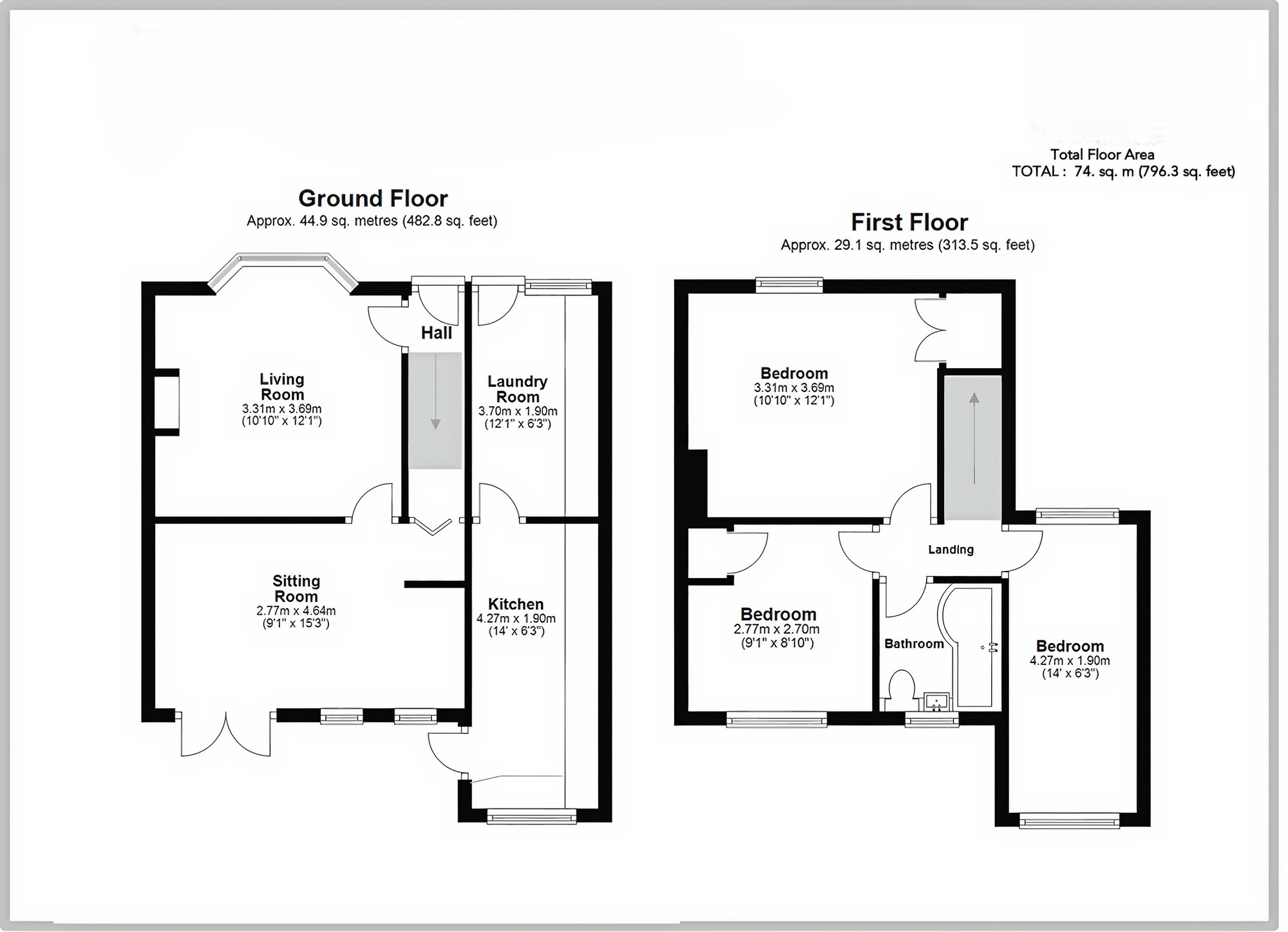
Features and Description
- THREE BEDROOM SEMI DETACHED HOUSE
- LOUNGE AND SPACIOUS DINING ROOM/SITTING ROOM
- MODERN STYLE BREAKFAST KITCHEN
- UTILITY ROOM
- MODERN BATHROOM W/C
- SOUTH FACING LARGE REAR GARDEN
- SOUTH AFTER VILLAGE LOCATION
- DOUBLE GLAZING AND GAS CENTRAL HEATING
- DRIVEWAY FOR OFF ROAD PARKING
A VIEWING IS HIGHLY RECOMMENDED ON THIS VERY WELL PRESENTED EXTENDED THREE BEDROOM SEMI DETACHED HOUSE OCCUPYING A MOST SOUGHT AFTER LOCATION IN THE VILLAGE OF CODSALL/BILBROOK HAVING PLENTY OF AMENITIES NEARBY ALONG WITH A TRAIN STATION FOR COMMUTING. THIS PROPERTY BOASTS MANY FEATURES INCLUDING A LARGE SOUTH FACING REAR GARDEN. TWO RECEPTION ROOMS AND A MODERN INTERIOR.
Location
The property is situated in the sought after village of Bilbrook/Codsall. There are a variety of amenities in the village, and the exciting project of i54 is nearby, whilst the city centre of Wolverhampton is approx 5 miles and there is access to the M6 and M54 motorways nearby.
Entrance Hall
Double glazed door, stairs to first floor, radiator.
Lounge
12'1" x 12'2" (3.68m x 3.70m)
Double glazed window, radiator, dual fuel wood/coal log burner.
Dining Room / Sitting Room
15'2" x 9'2" (4.62m x 2.79m)
Double doors opening onto the rear garden, radiator, understairs cupboard, double glazed window.
Fitted Modern Kitchen
14'0" x 6'3" (4.27m x 1.90m)
Wall and base units with surfaces over, built in double oven, hob, extractor fan, double glazed window, side double glazed door.
Utility Room
12'2" x 6'10" (3.70m x 2.08m)
Further cupboards, space for appliances, double glazed door leading to the front.
First Floor Landing
Loft access and boarded.
Bedroom 1
12'3" x 11'1" (3.73m x 3.39m)
Double glazed window, radiator, built in double wardrobe.
Bedroom 2
13'9" x 6'2" (4.20m x 1.87m)
Double glazed window, radiator.
Bedroom 3
9'1" x 8'9" (2.78m x 2.67m)
Double glazed window, radiator, built in wardrobe
Bathroom WC
6'0" x 5'11" (1.83m x 1.80m)
Three piece white suite with a mains shower, heated towel radiator, double glazed window.
Rear Garden
Plenty of lawn areas and patio areas.
Front Driveway
Off Road Parking
Local Authority / Council Tax Band
South Staffordshire Council/Band C
Tenure
Freehold
IMPORTANT NOTE TO POTENTIAL PURCHASERS:
We endeavour to make our particulars accurate and reliable, however, they do not constitute or form part of an offer or any contract and none is to be relied upon as statements of representation or fact. The services, systems and appliances listed in this specification have not been tested by us and no guarantee as to their operating ability or efficiency is given. All photographs and measurements have been taken as a guide only and are not precise. Floor plans where included are not to scale and accuracy is not guaranteed. If you require clarification or further information on any points, please contact us, especially if you are travelling some distance to view. Fixtures and fittings other than those mentioned are to be agreed with the seller.
Homefield Road, Codsall, Staffordshire, WV8
Additional Information
-
Property refPER250062
-
EPCD
-
TenureFreehold
-
Council TaxC
-
Local authoritySouth Staffordshire Council
Double glazed door, stairs to first floor, radiator.
Double glazed window, radiator, dual fuel wood/coal log burner.
Double doors opening onto the rear garden, radiator, understairs cupboard, double glazed window.
Further cupboards, space for appliances, double glazed door leading to the front.
Double glazed window, radiator, built in double wardrobe.
Double glazed window, radiator.
Double glazed window, radiator, built in wardrobe
Three piece white suite with a mains shower, heated towel radiator, double glazed window.
Plenty of lawn areas and patio areas.
The pin shows the exact address of the property
Energy Efficiency Rating
Very energy efficient - lower running costs
Not energy efficient - higher running costs
Current
60Potential
82CO2 Rating
Very energy efficient - lower running costs
Not energy efficient - higher running costs
