This calculator provides a guide to the amount of residential stamp duty you may pay and does not guarantee this will be the actual cost. This calculation is based on the Stamp Duty Land Tax Rates for residential properties purchased from 23rd September 2022 and second homes from 31st October 2024. For more information on Stamp Duty Land Tax, click here.
3 bedroom Semi Detached House for sale, Lobley Hill Road, Gateshead, NE8
Features and Description
- Very Spacious With Large Garden
- Highly Convenient Location
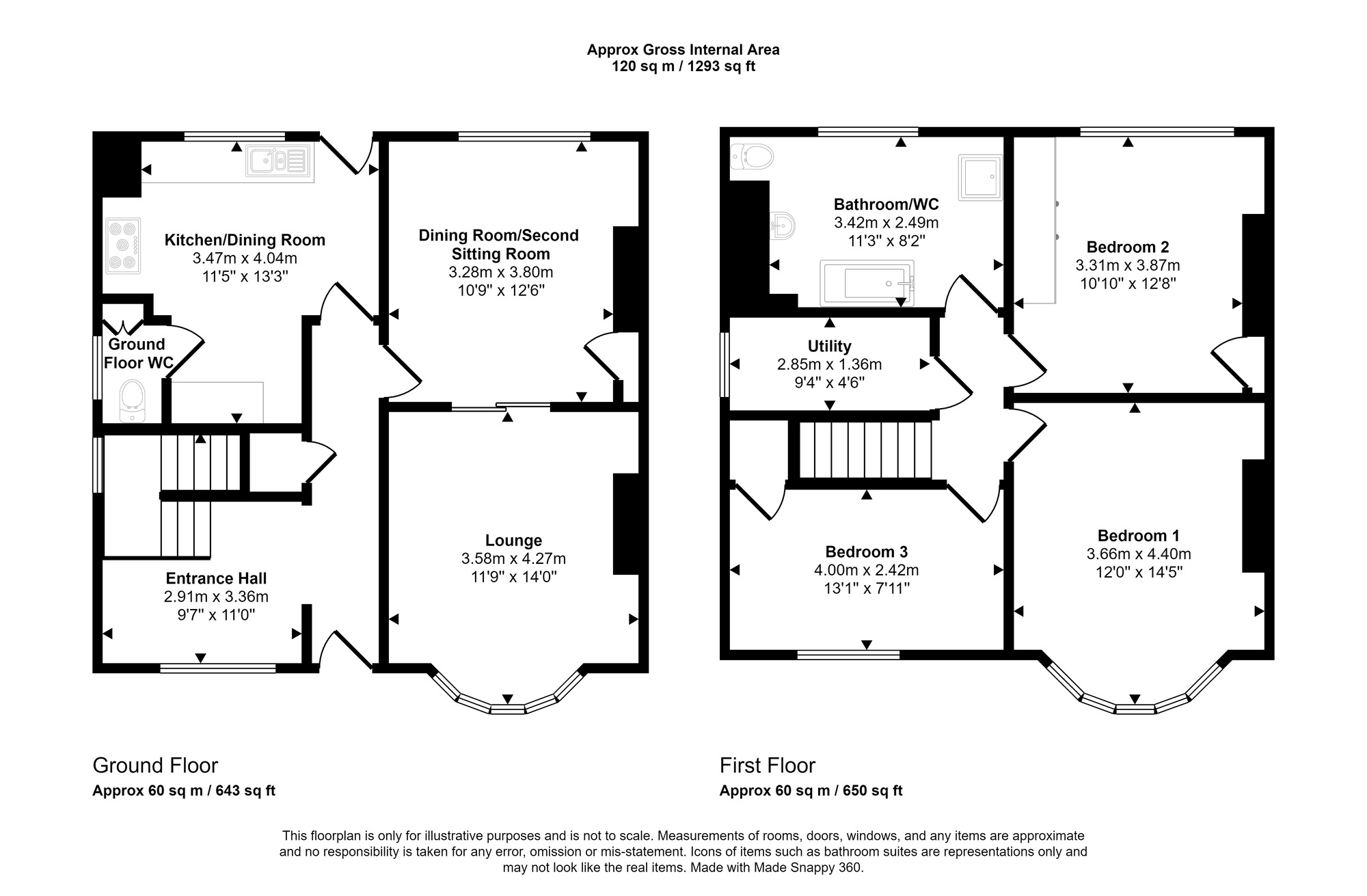
- Approx. Floor Area: 120 sqM or 1293sqFT
- Council Tax Band B
- EPC RATING D
An incredible chance awaits as we present this exceptional family home. With an ideal location near the A1, Team Valley and just a short walk from Saltwell Road High Street, this property offers convenience and accessibility. Gateshead Town Centre is easily reached, and the Metrocentre is less than a 10-minute drive away.
Key Features:
-Beautifully Presented Front Garden:
Begin your journey with the captivating front garden, a prelude to the treasures within. As you step through the UPVC front door, you're greeted by a bright and spacious hall adorned with tiled flooring.
- Two Spacious Reception Rooms:
Enter the dining room, currently used as a second sitting room, featuring high ceilings and large windows that fill the room with natural light. Slide the double French doors to reveal the lounge with a semi-circular double glazed bay window, creating a welcoming ambiance.
- Stunning Kitchen:
The kitchen is a showstopper with olive green panel units, white work surfaces, and top-of-the-range appliances. The black Smeg range dual fuel cooker is a centerpiece, set against a white gloss brick effect tiled splashback.
- Private Rear Garden:
Beyond the dining room's large rear-facing window, step into a stunning rear garden with a large patio, well-manicured lawn, and a pebbled feature with floral arrangements. There are a number of outbuildings, some of brick and some of wood construction. The brick-built outbuilding consists of an additional utility area with power and plumbing supplied while the buildings of wooden construction consist of a dog pen, pigeon coup and aviary for canaries (the wooden units can be sold with the house or taken down).
- Other Features:
Benefit from new drainage and guttering, double loft and cavity wall insulations, CCTV, and a 5-year-old combi-boiler, ensuring a comfortable and efficient living environment.
Room Descriptions:
- Entrance Hall:
Spacious and bright with tiled flooring, high ceilings, and large windows. Provides access to the dining room, kitchen, and a built-in under stairs cupboard.
- Lounge:
A spacious carpeted lounge with a semi-circular double glazed bay window, offering a delightful view. Features an electric fireplace with a white marble hearth.
- Dining Room:
Currently used as a second sitting room, this carpeted space boasts a large rear-facing double glazed window and an electric fireplace.
- Kitchen:
Tiled flooring, half-height grey gloss brick tiled splashback, and a stunning range of base and wall units. The black Smeg range cooker steals the spotlight.
- First Floor Bedrooms and Bathroom:
Three generous-sized double bedrooms and a spacious bathroom with separate shower cubicle, exuding elegance.
- Utility Room:
A unique and generously sized utility room on the first floor with vinyl flooring and ample space for appliances.
Exterior:
- Front: Beautifully presented garden, double gates leading to an elevated parking space.
- Rear: Spacious and beautifully presented garden with a large patio, lawned area, and various outbuildings, including a brick-built utility and wooden structures for pets.
We understand the property is Freehold.
MAKING AN OFFER Please note that all offers will require financial verification including mortgage agreement in principle, proof of deposit funds, proof of available cash and full chain details including selling agents and solicitors down the chain. Under New Money Laundering Regulations we require proof of identification from all buyers before acceptance letters are sent and solicitors can be instructed.
IMPORTANT NOTE TO POTENTIAL PURCHASERS:
We endeavour to make our particulars accurate and reliable, however, they do not constitute or form part of an offer or any contract and none is to be relied upon as statements of representation or fact. The services, systems and appliances listed in this specification have not been tested by us and no guarantee as to their operating ability or efficiency is given. All photographs and measurements have been taken as a guide only and are not precise. Floor plans where included are not to scale and accuracy is not guaranteed. If you require clarification or further information on any points, please contact us, especially if you are travelling some distance to view. Fixtures and fittings other than those mentioned are to be agreed with the seller.
Lobley Hill Road, Gateshead, NE8
The pin shows the exact address of the property
Energy Efficiency Rating
Very energy efficient - lower running costs
Not energy efficient - higher running costs
Current
68Potential
80CO2 Rating
Very energy efficient - lower running costs
Not energy efficient - higher running costs
