This calculator provides a guide to the amount of residential stamp duty you may pay and does not guarantee this will be the actual cost. This calculation is based on the Stamp Duty Land Tax Rates for residential properties purchased from 23rd September 2022 and second homes from 31st October 2024. For more information on Stamp Duty Land Tax, click here.
3 bedroom End Terrace House for sale, Wennington Road, Wennington, Rainham, RM13
Features and Description
- EPC D
- THREE BEDROOMS
- END OF TERRACE
- THROUGH LOUNGE
- OPEN PLAN KITCHEN
- CONSERVATORY
- UPSTAIRS SHOWER ROOM
- DOWNSTAIRS BATHROOM
- OFF STREET PARKING IN FRONT
- GARAGE TO REAR
** OFFERS IN EXCESS OF £450,000 **
Welcome to this delightful three bedroom end of terrace house which is ready for you to make it your own. Located in a serene rural area, this home boasts a blend of space, comfort, and practicality.
Enjoy the spacious living room which is perfect for relaxing or entertaining, leading seamlessly to a bright and airy conservatory ideal for soaking up the countryside views or hosting family and friends.
The heart of the home features an open-plan kitchen and living room, creating a social hub for everyday living and special occasions.
Convenience is key with a shower room upstairs and an additional family bathroom downstairs which is perfect for busy households.
There is ample parking with not one, but two garages, along with off-street parking for additional vehicles.
Whether you're looking for a peaceful retreat or a family-friendly home with plenty of room to grow, this property has it all. Don’t miss the opportunity to view this charming property in a tranquil location.
Contact us today to arrange a viewing!
COUNCIL TAX BAND - D
EPC D
Lettings and management
Your Move offer Landlords a professional, ARLA accredited, lettings and management service. Please contact our lettings director Fatih Akdag for more information
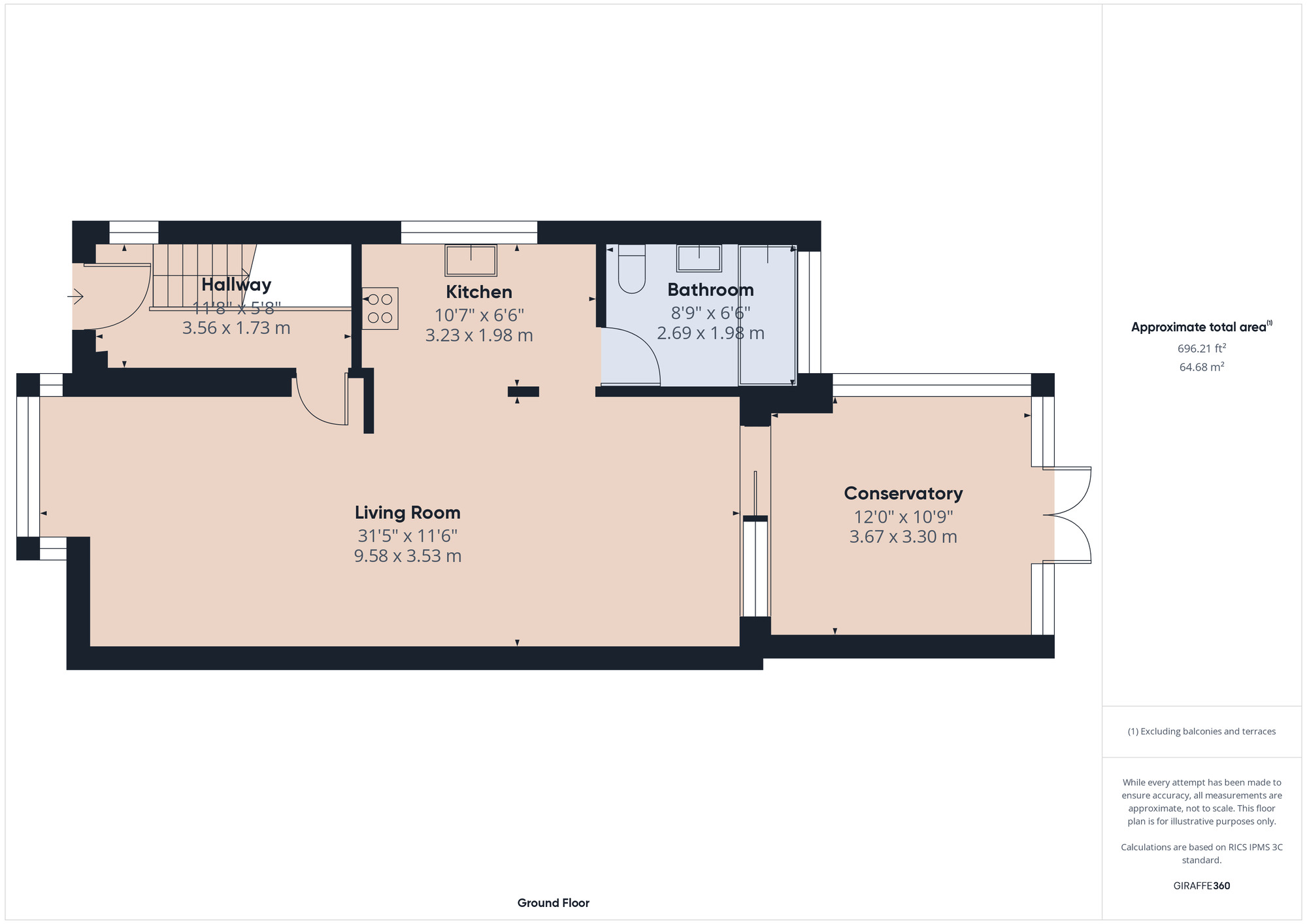
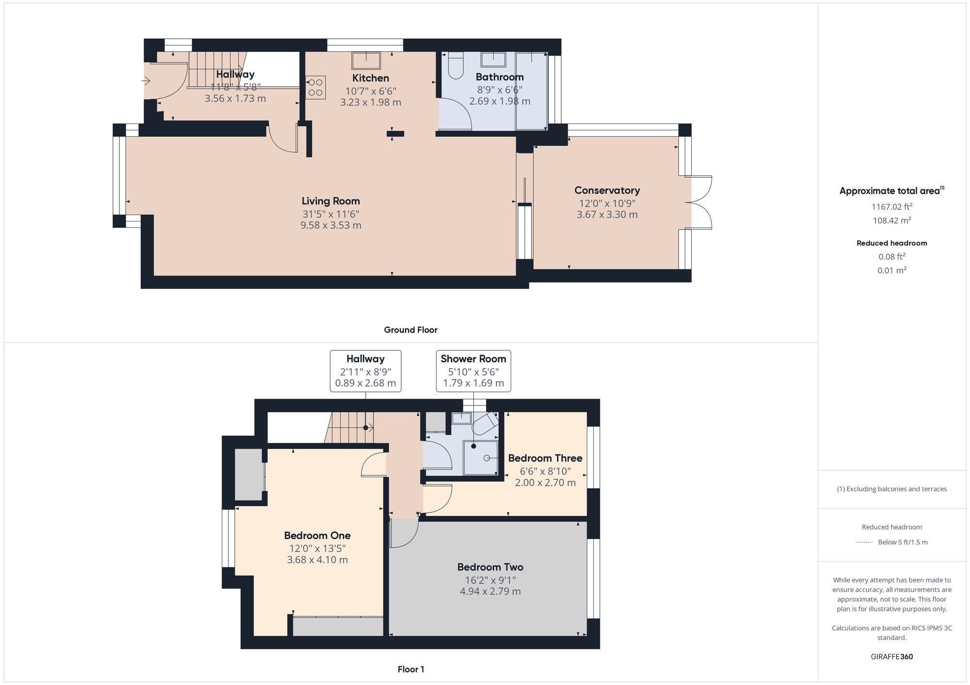
Living Room
31'5" x 11'6" (9.58m x 3.50m)
Kitchen
10'7" x 6'6" (3.23m x 1.98m)
Conservatory
12'0" x 10'9" (3.66m x 3.28m)
Bathroom
8'9" x 6'6" (2.67m x 1.98m)
Bedroom 1
13'5" x 12'0" (4.10m x 3.66m)
Bedroom 2
16'2" x 9'1" (4.93m x 2.77m)
IMPORTANT NOTE TO POTENTIAL PURCHASERS:
We endeavour to make our particulars accurate and reliable, however, they do not constitute or form part of an offer or any contract and none is to be relied upon as statements of representation or fact. The services, systems and appliances listed in this specification have not been tested by us and no guarantee as to their operating ability or efficiency is given. All photographs and measurements have been taken as a guide only and are not precise. Floor plans where included are not to scale and accuracy is not guaranteed. If you require clarification or further information on any points, please contact us, especially if you are travelling some distance to view. Fixtures and fittings other than those mentioned are to be agreed with the seller.
Wennington Road, Wennington, Rainham, RM13

Additional Information
-
Property refQRO230043
-
EPCD
-
TenureFreehold
-
Council TaxD
-
Local authorityHavering Council























The pin shows the exact address of the property
Energy Efficiency Rating
Very energy efficient - lower running costs
Not energy efficient - higher running costs
Current
64Potential
84CO2 Rating
Very energy efficient - lower running costs
Not energy efficient - higher running costs