This calculator provides a guide to the amount of residential stamp duty you may pay and does not guarantee this will be the actual cost. This calculation is based on the Stamp Duty Land Tax Rates for residential properties purchased from 23rd September 2022 and second homes from 31st October 2024. For more information on Stamp Duty Land Tax, click here.
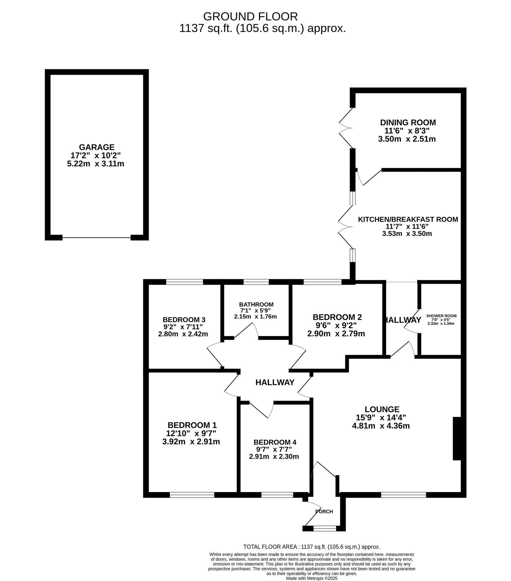
4 bedroom Detached Bungalow for sale, Dale Park Avenue, Kilburn, Derbyshire, DE56
Features and Description
This beautifully extended and well-presented four-bedroom detached bungalow, is ideally positioned within this sought-after residential area of Kilburn. Offering generous, versatile living accommodation across a single level, the property is perfectly suited to families, downsizers seeking extra space, or anyone looking for a home that effortlessly combines comfort with practicality.
The property has been extended to the rear, creating an additional reception area. Accommodation includes a spacious lounge, a fitted breakfasting kitchen, four well-proportioned bedrooms and both a contemporary family bathroom and separate shower room. The extension provides excellent flexibility—ideal for those needing additional living space, guest rooms or a home office.
Externally, the bungalow enjoys a driveway providing ample off-street parking, along with a garage for further storage or vehicle space. To the rear sits a private garden offering a pleasant outdoor area to relax, entertain or enjoy time with family.
Well located for local amenities, transport links and access to nearby towns and countryside, this is a fantastic opportunity to acquire a spacious, ready-to-move-into bungalow in a popular village setting.
Porch
A welcoming hallway ideal for storing coats and shoes. Providing access to the lounge and having a forward facing upvc double glazed window.
Lounge
4.36m x 4.51m maz
This living room boasts a classic fireplace with electric fire, radiator, television point and a large front facing window that fills the space with natural light, and a practical layout ideal for both relaxation and entertaining.
Breakfasting Kitchen
3.53m x 3.50m max
This impressive kitchen offers a warm and inviting feel, featuring an extensive range of solid wood cabinetry that provides excellent storage throughout. The room is finished with sleek black granite worktops and a stylish glossy tiled splashback, creating a contemporary contrast against the natural wood tones. Integrated appliances, including an oven with hob and extractor, ensure a practical and well-equipped cooking space. The layout offers generous worktop areas, ideal for meal preparation, while the attractive wooden flooring adds to the sense of quality. Double glazed patio door open onto the rear garden. A spacious and functional kitchen, perfectly suited to modern family living.
Dining Room
8'3" x 11'6" (2.51m x 3.50m)
A bright, well-proportioned room finished in neutral tones with soft carpeting and recessed ceiling lighting. French doors open directly onto the garden, providing excellent natural light and a seamless indoor-outdoor connection. Ideal for dining, entertaining, or flexible everyday use.
Inner hallway
Allowing access to all four bedrooms and the family bathroom.
Bedroom 1
12'10" x 9'7" (3.92m x 2.91m)
A front facing double bedroom with upvc double glazed window and a centrally heated radiator.
Bedroom 2
2.79m x 2.95m max
A double bedroom located to the rear of the property. Here there is a a centrally heated radiator and a upvc double glazed window looing into the rear garden.
Bedroom 3
9'2" x 7'11" (2.80m x 2.42m)
A bright and comfortable bedroom featuring a rear facing window that allows plenty of natural light. Finished in neutral tones and a carpeted floor covering, the room offers a pleasant outlook of the garden. Suitable for a variety of uses including bedroom or guest accommodation.
Bedroom 4
9'7" x 7'7" (2.91m x 2.30m)
A well-proportioned and versatile bedroom finished in neutral tones with soft carpeting. Benefiting from natural light via a front-facing window, the room is ideal for use as a bedroom, home office, or guest room.
Bathroom
This well-presented family bathroom offers a bright and inviting space, featuring a modern three-piece suite. The room includes a panelled bath with chrome mixer tap and a glass shower screen, complemented by contemporary wall tiling with decorative detailing. A sleek vanity unit with inset basin provides useful storage, while the frosted window offers both natural light and privacy.
Shower Room
This modern shower room is finished with attractive full-height tiling, creating a sleek and contemporary feel. It features a stylish corner shower enclosure with glass doors, a fitted vanity unit with inset wash basin, and a concealed-cistern WC for a clean, streamlined look. Practical storage is integrated within the vanity cupboards, while the fitted mirror enhances the sense of space. Warm, neutral tones and polished surfaces give the room a smart, high-quality finish—ideal for everyday convenience.
Garage
17'2" x 10'2" (5.22m x 3.11m)
Having power, lighting and an up and over vehicular door.
External
A block-paved driveway providing off-road parking, complemented by a neatly maintained front garden with established shrubs and lawn. Gated side access leads to the detached garage and rear garden via gated access. An enclosed and low-maintenance rear garden featuring a central lawn bordered by paved patio areas, ideal for outdoor seating and entertaining. Brick-built boundaries and timber fencing provide privacy, while gated access adds practicality. A pleasant and manageable outdoor space.
IMPORTANT NOTE TO POTENTIAL PURCHASERS:
We endeavour to make our particulars accurate and reliable, however, they do not constitute or form part of an offer or any contract and none is to be relied upon as statements of representation or fact. The services, systems and appliances listed in this specification have not been tested by us and no guarantee as to their operating ability or efficiency is given. All photographs and measurements have been taken as a guide only and are not precise. Floor plans where included are not to scale and accuracy is not guaranteed. If you require clarification or further information on any points, please contact us, especially if you are travelling some distance to view. Fixtures and fittings other than those mentioned are to be agreed with the seller.
Dale Park Avenue, Kilburn, Derbyshire, DE56
Additional Information
-
Property refQBP250357
-
EPCC
-
TenureFreehold
-
Council TaxC
-
Local authorityAmber Valley Borough Council
The pin shows the exact address of the property
Energy Efficiency Rating
Very energy efficient - lower running costs
Not energy efficient - higher running costs
Current
69Potential
75CO2 Rating
Very energy efficient - lower running costs
Not energy efficient - higher running costs
