This calculator provides a guide to the amount of residential stamp duty you may pay and does not guarantee this will be the actual cost. This calculation is based on the Stamp Duty Land Tax Rates for residential properties purchased from 23rd September 2022 and second homes from 31st October 2024. For more information on Stamp Duty Land Tax, click here.
2 bedroom Detached Bungalow for sale, Rowan Crescent, Wolverhampton, West Midlands, WV3
Features and Description
- Sought-after Wolverhampton residential location
- Detached two-bedroom bungalow
- Freehold and EPC rated D
- City of Wolverhampton Council tax band C
- Two reception rooms with fireplaces
- Light-filled main reception room with fire
- Second reception overlooking low-maintenance garden
- Modern fitted bathroom
- Double bedroom with built-in wardrobe
- Second large single bedroom
- Off-street parking available
- Good transport links to Birmingham, London
- Close to parks, shops and schools
This neutrally decorated two-bedroom detached bungalow is for sale in a sought-after residential area of Wolverhampton, offering convenient access to local amenities, schools and green spaces.
The property comprises two reception rooms, both featuring fireplaces. The main reception benefits from large windows, while the second reception room enjoys views over the low-maintenance garden. A small sun porch provides an additional spot to enjoy the outdoor aspect. The kitchen enjoys good natural light and includes a range-style cooker. There are two bedrooms: a double bedroom with built-in wardrobe, and a large single bedroom. The bathroom is fitted with modern fittings. The bungalow also benefits from parking and an EPC rating of D. Council Tax is band C.
The location provides access to nearby parks such as West Park and Bantock Park, offering open green spaces, walking routes and leisure facilities. Local amenities, including shops, cafés and everyday services, are available in the surrounding area and in Wolverhampton city centre.
There are public transport links serving the area, with bus services into central Wolverhampton, where Wolverhampton railway station offers direct services to Birmingham (around 20–25 minutes), London Euston (from approximately 1 hour 45 minutes on faster services) and other major destinations.
Nearby schools and educational facilities serve the local community, making this property suitable for both owner occupiers and investors seeking a well-located bungalow in Wolverhampton.
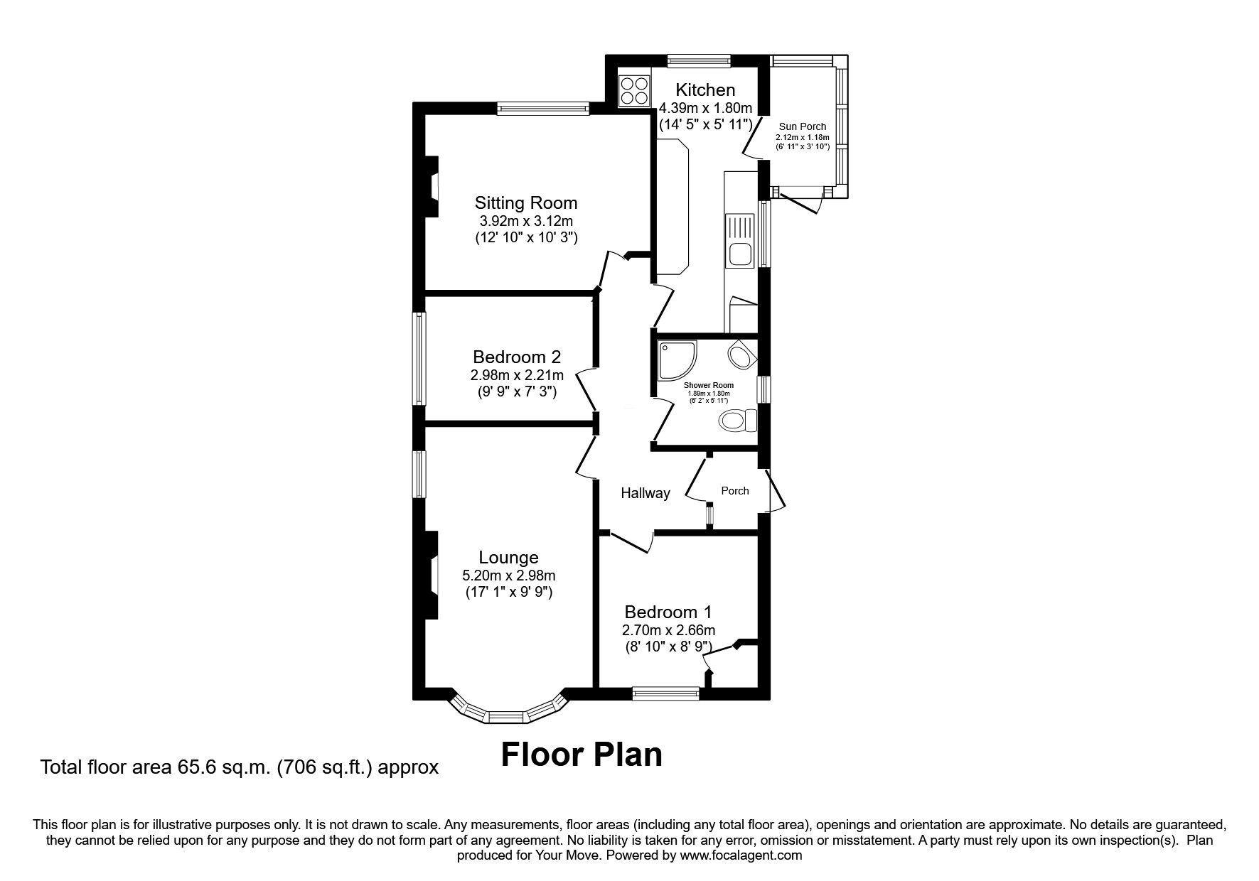
Entrance Porch
1.4m x 0.81m max.
With UPVC and double-glazed entrance door and door to hallway.
Entrance Hall
4.06m x 1.88m max.
With doors to lounge, sitting room, kitchen, bedrooms one and two, and shower room? W.C.
Lounge
5.2m x 2.97m max.
With double-glazed bay window to front, coving to ceiling and ceiling rose, and feature stone fire and hearth with inset electric fire.
Sitting Room
3.9m x 3.12m max.
With double-glazed window to rear and inset feature coal-effect gas fire with complementary surround and hearth.
Kitchen
4.4m x 1.8m max.
With double-glazed windows to side and rear and door to sun porch and fitted with a range of wall and base units with complementary work-surfaces and splash-backs, range style dual-fuel gas/ electric cooker, inset stainless-steel sink-drainer unit, central heating boiler, and plumbing for a washing machine,
Sun Porch
2.1m x 1.17m max.
Double-glazed with door to rear garden and providing a delightful breakfast area.
Bedroom 1
2.7m x 2.67m max.
With double-glazed window to front and built-in wardrobe.
Bedroom 2
2.97m x 2.2m max.
With double-glazed window to side.
Shower Room / WC
1.88m x 1.8m max.
With obscured double-glazed window to side and fitted with a modern three-piece shower suite, comprising shower cubicle, wash-basin set into storage cupboard, close-coupled W.C/ cistern, and the whole having part-tiled walls.
Frontage
The property has an ornamental wall to the front with decorative wrought iron railings and a pair of brick piers with a tiled roof archway surrounding a pair of wrought iron entrance gates leading to a block-paved driveway providing off-road parking for several vehicles. There is a lawned garden area with planted borders, and a UPVC and obscured glazed doorway, set into a wall with ornamental tiled roof, leading to the rear garden.
Rear Garden
This is modest in size and largely paved for ease of maintenance, with a greenhouse, timber shed, outside tap and light.
IMPORTANT NOTE TO POTENTIAL PURCHASERS:
We endeavour to make our particulars accurate and reliable, however, they do not constitute or form part of an offer or any contract and none is to be relied upon as statements of representation or fact. The services, systems and appliances listed in this specification have not been tested by us and no guarantee as to their operating ability or efficiency is given. All photographs and measurements have been taken as a guide only and are not precise. Floor plans where included are not to scale and accuracy is not guaranteed. If you require clarification or further information on any points, please contact us, especially if you are travelling some distance to view. Fixtures and fittings other than those mentioned are to be agreed with the seller.
Rowan Crescent, Wolverhampton, West Midlands, WV3
Additional Information
-
Property refWOL260078
-
EPCD
-
TenureFreehold
-
Council TaxC
-
Local authorityCity of Wolverhampton Council
Similar properties for sale by Your Move Wolverhampton
With double-glazed bay window to front, coving to ceiling and ceiling rose, and feature stone fire and hearth with inset electric fire.
With double-glazed window to rear and inset feature coal-effect gas fire with complementary surround and hearth.
With double-glazed windows to side and rear and door to sun porch and fitted with a range of wall and base units with complementary work-surfaces and splash-backs, range style dual-fuel gas/ electric cooker, inset stainless-steel sink-drainer unit, central heating boiler, and plumbing for a washing machine,
With double-glazed window to front and built-in wardrobe.
With double-glazed window to side.
The property has an ornamental wall to the front with decorative wrought iron railings and a pair of brick piers with a tiled roof archway surrounding a pair of wrought iron entrance gates leading to a block-paved driveway providing off-road parking for several vehicles. There is a lawned garden area with planted borders, and a UPVC and obscured glazed doorway, set into a wall with ornamental tiled roof, leading to the rear garden.
This is modest in size and largely paved for ease of maintenance, with a greenhouse, timber shed, outside tap and light.
The pin shows the exact address of the property
Energy Efficiency Rating
Very energy efficient - lower running costs
Not energy efficient - higher running costs
Current
60Potential
78CO2 Rating
Very energy efficient - lower running costs
Not energy efficient - higher running costs
