This calculator provides a guide to the amount of residential stamp duty you may pay and does not guarantee this will be the actual cost. This calculation is based on the Stamp Duty Land Tax Rates for residential properties purchased from 23rd September 2022 and second homes from 31st October 2024. For more information on Stamp Duty Land Tax, click here.
4 bedroom Detached Bungalow for sale, Stockhill Road, Chilcompton, Somerset, BA3
Features and Description
This extensively extended detached bungalow is situated in the highly regarded village of Chilcompton and offers so much more than initially meets the eye. The well proportioned living accommodation comprises on the ground floor an entrance hall, large sitting room, dining room leading to a conservatory, a fitted kitchen/breakfast room, utility room, three double bedrooms and a recently refitted bathroom. On the first floor there is a further bedroom and a shower room which give access to a large boarded loft. Other features include a gas central heating system and PVCu double glazing. Outside there is a delightful and surprisingly private rear garden, a large drive for several vehicles and a fantastic detached double garage that also has two store rooms making ideal for a whole myriad of different uses. Highly recommended.
Directions
Proceed to Chilcompton along the Wells Road(B3139). Turn left by the Co-Op store and then proceed straight over the cross roads into Stockhill Road. The property will be found further along on the left hand side.
Entrance Hall
PVCu double glazed door to hallway with two single radiators, built in cupboard, coved ceiling, stairs to the first floor, understairs cupboard.
Sitting Room
PVCu double glazed bow window to the front and two to the side, television point, coved ceiling, three double radiators.
Dining Room
PVCu double glazed French doors to the conservatory, double radiator, coved ceiling.
Conservatory
PVCu double glazing to three aspects, PVCu double glazed French doors to the garden, oak flooring.
Kitchen / Breakfast Room
PVCu double glazed window, range of matching base and wall units, rolled edge work surfaces, tiled splash backs, plumbed for washing machine and dishwasher, electric double oven and gas hob, extractor hood, two double radiators, arch to rear porch.
Utility Room
Wall units, rolled edge work surfaces, tiled floor and splash backs.
Rear Porch
PVCu double glazing to rear and side, PVCu double glazed door to garden.
Bedroom 1
PVCu double glazed window, double radiator, fitted wardrobes and dressing table.
Bedroom 2
PVCu double glazed window, double radiator.
Bedroom 3
PVCu double glazed window, double radiator.
Bathroom
PVCu double glazed window, newly refitted with a white suite comprising panelled bath with shower above, wash hand basin with vanity unit below, low level WC, fully tiled walls, towel rail radiator, extractor fan.
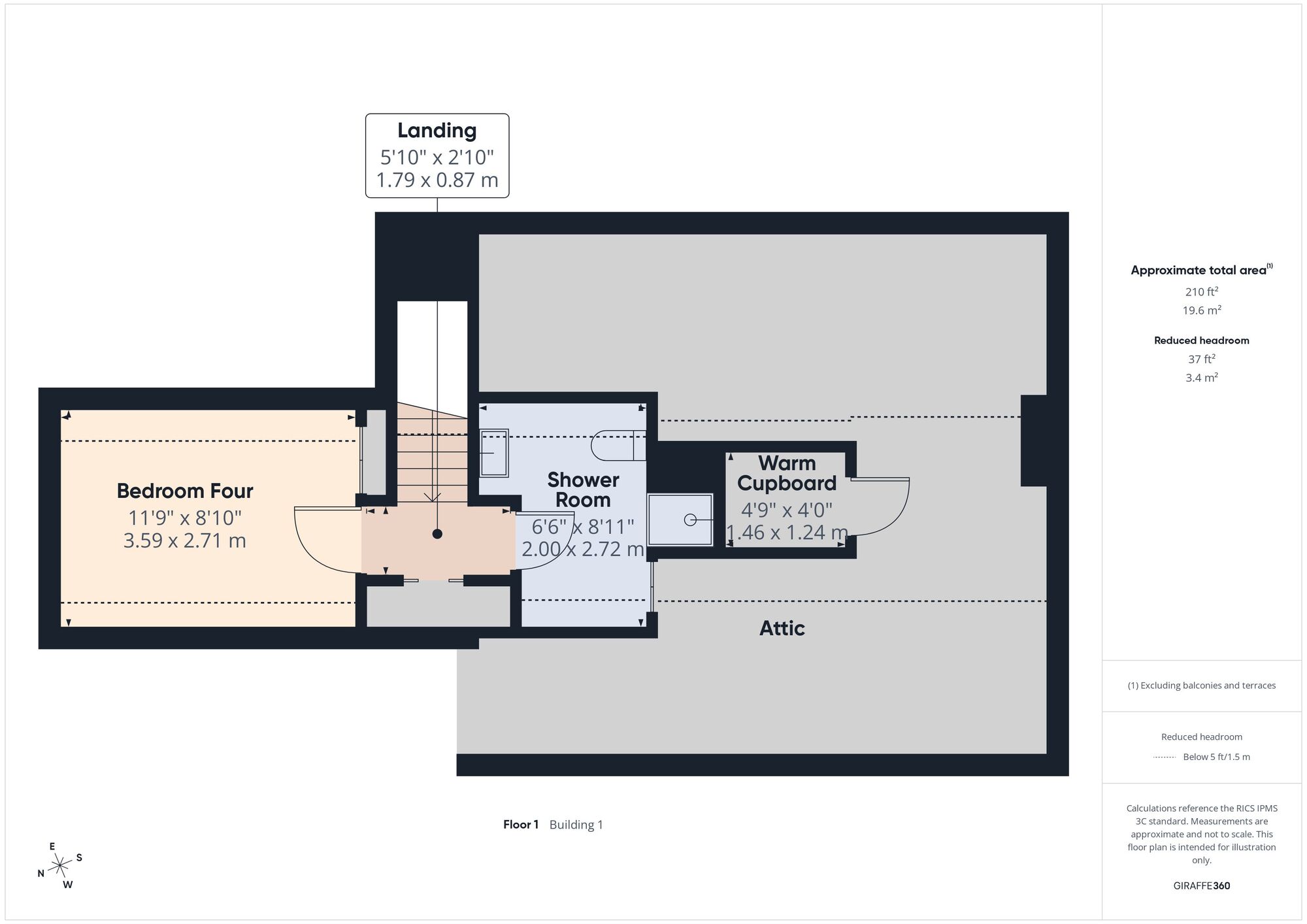
Landing
Two Velux windows, built in cupboard, airing cupboard with single radiator.
Bedroom 4
Two Velux windows, double radiator, built in cupboard.
Shower Room
Velux window, shower cubicle, low level WC, pedestal wash hand basin, fully tiled walls, towel rail radiator, door to attic.
Attic
Velux window, power and lighting, walk in cupboard with night storage heater, telephone point, gas combi boiler supplying central heating and hot water.
Front Garden
Enclosed by boundary walls and hedgerow, shrubbery borders.
Rear Garden
Enclosed by boundary walls, mainly laid to lawn, two patio areas, pergola, flower and shrubbery beds, various fruit trees, fishpond, outside tap and lighting.
Drive And Turning Area
Tarmac drive allowing off street parking for numerous vehicles and leading to the garage.
Double Garage & Store Rooms
Up and over door, power and lighting, PVCu double glazed windows to rear and side, PVCu double glazed service door to side, attic storage spaces, water supply, doors to both storerooms.
Storeroom 1
PVCu double glazed window.
Storeroom 2
PVCu double glazed window, wash hand basin.
IMPORTANT NOTE TO POTENTIAL PURCHASERS:
We endeavour to make our particulars accurate and reliable, however, they do not constitute or form part of an offer or any contract and none is to be relied upon as statements of representation or fact. The services, systems and appliances listed in this specification have not been tested by us and no guarantee as to their operating ability or efficiency is given. All photographs and measurements have been taken as a guide only and are not precise. Floor plans where included are not to scale and accuracy is not guaranteed. If you require clarification or further information on any points, please contact us, especially if you are travelling some distance to view. Fixtures and fittings other than those mentioned are to be agreed with the seller.
Stockhill Road, Chilcompton, Somerset, BA3
Additional Information
-
Property refQMI230256
-
EPCD
-
TenureFreehold
-
Council TaxE
-
Local authorityMendip District Council
Similar properties for sale by Your Move Midsomer Norton
The pin shows the exact address of the property
Energy Efficiency Rating
Very energy efficient - lower running costs
Not energy efficient - higher running costs
Current
65Potential
75CO2 Rating
Very energy efficient - lower running costs
Not energy efficient - higher running costs
