This calculator provides a guide to the amount of residential stamp duty you may pay and does not guarantee this will be the actual cost. This calculation is based on the Stamp Duty Land Tax Rates for residential properties purchased from 23rd September 2022 and second homes from 31st October 2024. For more information on Stamp Duty Land Tax, click here.
3 bedroom Detached House for sale, Almond Grove, Newhall, Derbyshire, DE11
Features and Description
- Detached three-bedroom family home
- Two separate reception rooms
- Playroom plus dedicated study
- Main bedroom with en-suite
- Built-in wardrobes to main bedroom
- Light, naturally bright kitchen
- Private garden with parking
- Close to Newhall local amenities
- Nearby schools ideal for families
- Good road and public transport links
This detached three-bedroom house is offered for sale in Newhall, Swadlincote, and is presented in good condition. The property provides two separate reception rooms, offering flexible living and dining arrangements. In addition, there is a playroom and a study, creating further options for home working or leisure.
The kitchen benefits from natural light, while the sleeping accommodation comprises two double bedrooms and one single bedroom. The main bedroom includes an en-suite and built-in wardrobes. A family bathroom serves the remaining bedrooms. The home has an EPC rating of D and falls within Council Tax band D. Externally, the property includes a garden and parking.
The location places residents within reach of local amenities in Newhall and the wider Swadlincote area, including shops, cafés and everyday services. There are nearby schools, making the property suitable for families seeking access to education.
Nearby parks and green spaces in and around Swadlincote provide opportunities for walking and outdoor recreation. Public transport links serve Newhall, with bus services connecting to Swadlincote town centre and neighbouring areas. The nearest rail connections are typically accessed via stations such as Burton-on-Trent, which offers services to destinations including Derby and Birmingham; journey times to these larger centres are usually under an hour by train.
Road links from Newhall give access to the A511 and A444, connecting to the regional motorway network and key employment centres. Overall, this detached house provides a practical layout with additional work and play spaces in a residential setting with local facilities close by.
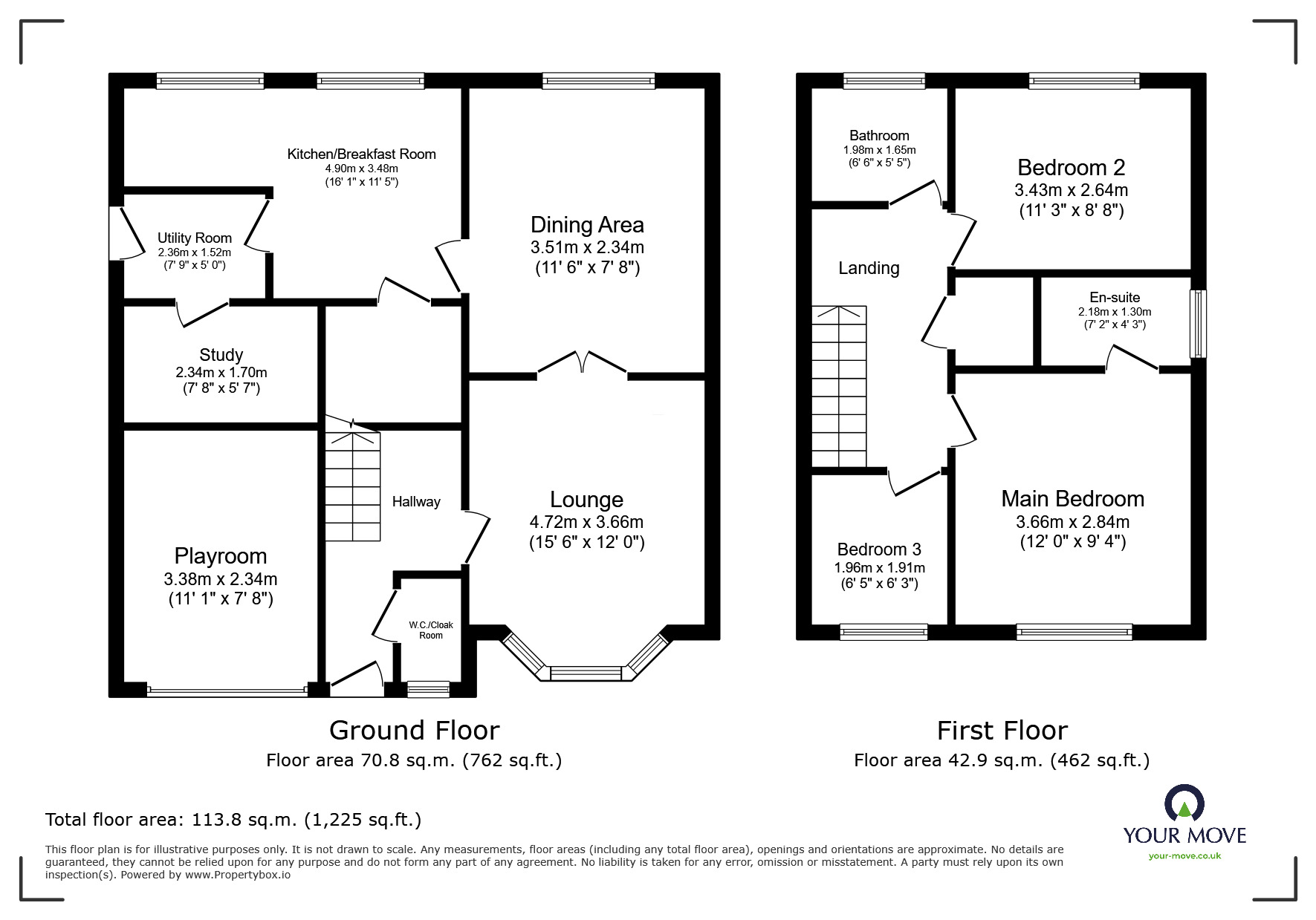
Hallway
9'3" x 8'1" (2.82m x 2.46m)
Entrance Hallway with stairs leading off to the first floor.
Cloakroom
5'4" x 2'8" (1.63m x 0.81m)
Vanity wash unit and a low flush wc.
Playroom
7'8" x 11'1" (2.34m x 3.38m)
Versatile Room currently used as a playroom.
Lounge
12 x 4.72m
Bright and airy family lounge.
Dining Room
7'8" x 11'6" (2.34m x 3.50m)
With access to the garden.
Kitchen
16'1" x 11'5" (4.90m x 3.48m)
Spacious fitted kitchen.
Utility Room
2.36m x 5
With plumbing for a washing machine and additional storage.
Study
7'8" x 5'7" (2.34m x 1.70m)
Bathroom
5'5" x 6'6" (1.65m x 1.98m)
Appointed with a three piece suite.
Main Bedroom
2.84m x 12
Double bedroom with fitted wardrobes.
En-Suite
4'3" x 7'2" (1.30m x 2.18m)
There is a shower enclosure, vanity wash unit and a low flush wc.
Bedroom 2
11'3" x 8'8" (3.43m x 2.64m)
Double bedroom.
Bedroom 3
6'5" x 6'3" (1.96m x 1.90m)
Single bedroom.
Outside
There is ample off road parking to the front of the property.
Garden
Patio area for entertaining with the remainder laid to lawn.
IMPORTANT NOTE TO POTENTIAL PURCHASERS:
We endeavour to make our particulars accurate and reliable, however, they do not constitute or form part of an offer or any contract and none is to be relied upon as statements of representation or fact. The services, systems and appliances listed in this specification have not been tested by us and no guarantee as to their operating ability or efficiency is given. All photographs and measurements have been taken as a guide only and are not precise. Floor plans where included are not to scale and accuracy is not guaranteed. If you require clarification or further information on any points, please contact us, especially if you are travelling some distance to view. Fixtures and fittings other than those mentioned are to be agreed with the seller.
Almond Grove, Newhall, Derbyshire, DE11
Additional Information
-
Property refSWD260170
-
EPCD
-
TenureFreehold
-
Council TaxD
-
Local authoritySouth Derbyshire District Council
Similar properties for sale by Your Move Swadlincote
Versatile Room currently used as a playroom.
Bright and airy family lounge.
Spacious fitted kitchen.
With plumbing for a washing machine and additional storage.
Appointed with a three piece suite.
Double bedroom with fitted wardrobes.
There is a shower enclosure, vanity wash unit and a low flush wc.
Double bedroom.
Single bedroom.
Patio area for entertaining with the remainder laid to lawn.
The pin shows the exact address of the property
Energy Efficiency Rating
Very energy efficient - lower running costs
Not energy efficient - higher running costs
Current
62Potential
80CO2 Rating
Very energy efficient - lower running costs
Not energy efficient - higher running costs
