This calculator provides a guide to the amount of residential stamp duty you may pay and does not guarantee this will be the actual cost. This calculation is based on the Stamp Duty Land Tax Rates for residential properties purchased from 23rd September 2022 and second homes from 31st October 2024. For more information on Land and Buildings Transaction Tax, click here.
4 bedroom Detached House for sale, Church Road, Duffus, Moray, IV30
Features and Description
- EPC Band E
- Council Tax Band D
- Detached family home
- Generous gardens front and rear
- Detached outbuilding ideal as a workshop or home office
- Spacious layout with two reception rooms
- Peaceful village location with easy access to Elgin
- Close to the Moray coastline and amenities
Set within the heart of the attractive village of Duffus, this substantial and characterful detached home offers generous, flexible living with the added benefit of a separate outbuilding.
The property is entered via a welcoming vestibule and hallway, leading to a bright and spacious lounge, ideal for everyday family living and entertaining. A well-proportioned dining room sits conveniently adjacent to the kitchen, which provides ample workspace and storage and leads to a rear hall. The ground floor further benefits from two double bedrooms and a shower room, making the layout particularly well suited to multi-generational living, home working, or those seeking ground-floor bedroom accommodation.
On the first floor, are two further double bedrooms, a central landing, and a family bathroom, offering comfortable and well-balanced private space for family members or guests.
Externally, the property is complemented by a detached outbuilding ideal for storage, a workshop, or hobby use, subject to any necessary consents.
Duffus is a popular village location, well known for its sense of community and proximity to the stunning Moray coastline, with the historic Duffus Castle and beaches nearby. The property is ideally placed for easy access to Elgin, which lies only a short drive away and offers a full range of amenities including supermarkets, independent shops, leisure facilities, secondary schooling, and a mainline railway station with connections to Inverness, Aberdeen, and beyond. The wider Moray area also provides excellent access to outdoor pursuits, coastal walks, and the renowned scenery of the Moray Firth.
Combining village charm with excellent accessibility and versatile accommodation, this property represents an excellent opportunity for families, professionals, or those seeking a spacious home in a highly desirable Moray setting.
Viewing is highly recommended to fully appreciate the space, location, and potential on offer.
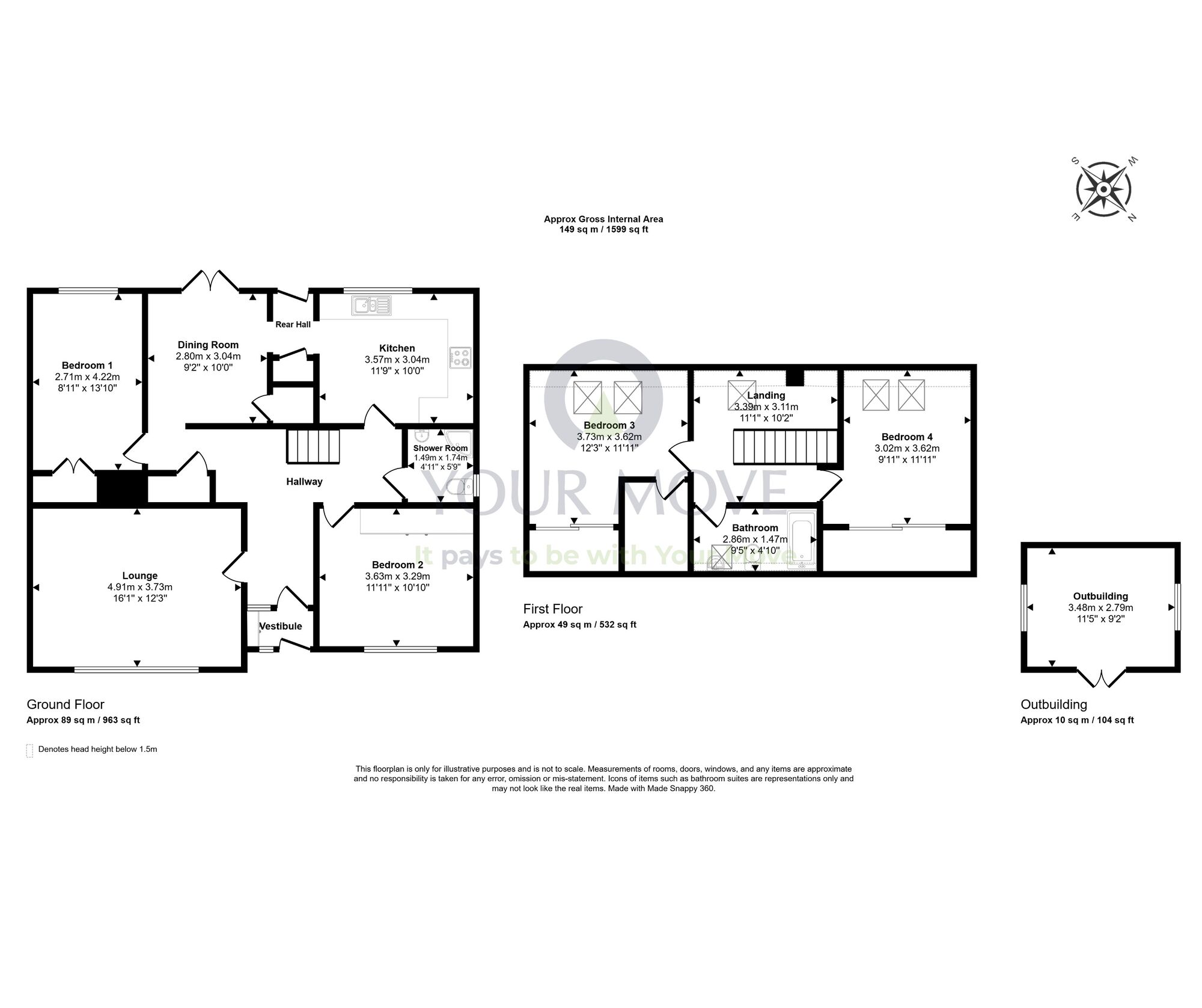
Vestibule
On entering the home, you are welcomed by a separate vestibule, which provides access through to the main hallway.
Hallway
The hallway is centred to this property providing access to the lounge, kitchen, dining room, two bedrooms, the shower room and a storage cupboard.
Lounge
16'1" x 12'3" (4.91m x 3.73m)
Situated to the front of the accommodation is a sizeable reception room with a large window overlooking the front garden and allowing for an abundance of natural light.
Kitchen
11'9" x 9'12" (3.57m x 3.04m)
The well-proportioned kitchen provides ample workspace and storage with a large window overlooking the private, rear garden. The kitchen offers designated space for free-standing appliances, complemented by an integrated oven and hob.
Dining Room
9'2" x 9'12" (2.80m x 3.04m)
There’s a cosy dining room, open to the kitchen and hallway, with French door leading out to the rear garden. This room also has a fitted cupboard and provides a fantastic additional space for general dining or entertaining guests.
Bedroom 1
8'11" x 13'10" (2.71m x 4.22m)
The main bedroom is a generous double room overlooking the rear garden and benefits from a fitted wardrobe.
Bedroom 2
11'11" x 10'10" (3.63m x 3.29m)
There is a second double bedroom on the ground floor, overlooking the front garden and offering ample space for furnishings.
Shower Room
4'11" x 5'9" (1.49m x 1.74m)
Conveniently positioned is a downstairs shower room consisting of a WC, wash hand basin and a corner shower enclosure with an easily maintained wet wall finish.
Landing
On the first floor, there is a good size landing leading into a further two bedrooms and the family bathroom.
Bedroom 3
12'3" x 11'11" (3.73m x 3.62m)
A generously sized third double bedroom with two Velux windows, a fitted wardrobe with mirrored sliding doors and a useful walk-in cupboard.
Bedroom 4
9'11" x 11'11" (3.02m x 3.62m)
There’s a fourth double bedroom with two Velux windows and a full wall length wardrobe with mirror sliding doors.
Bathroom
9'5" x 4'10" (2.86m x 1.47m)
A modern family bathroom featuring a WC, wash hand basin with storage underneath and a bath with shower above.
Outbuilding
11'5" x 9'2" (3.48m x 2.79m)
The detached, timber-built outbuilding provides an ideal space for outdoor entertaining or use as a home office. Extending to approximately 10sqm, it features double opening doors, two windows, as well as power and lighting.
External
To the front, the property is set back from the road behind a generous, well-maintained garden, creating an attractive approach. Predominantly laid to lawn, the garden offers a neat and open aspect, complemented by a central planted feature, established shrubs and boundary planting that frame the plot. A paved pathway leads to the front entrance, while a sizeable driveway runs along the right-hand side of the property.To the rear, the property enjoys a particularly generous and well-maintained garden, offering a degree of privacy and excellent outdoor space. Largely laid to lawn, the garden provides ample room for family use, children’s play, or keen gardeners, with established boundaries creating a pleasant and enclosed setting.A paved patio area offers an ideal spot for outdoor dining and entertaining, while a covered timber pergola with decked flooring creates a sheltered seating area, perfect for year-round enjoyment and social gatherings. The garden further benefits from a substantial timber shed/outbuilding, providing excellent storage or potential for workshop or hobby use.
Additional
This home further benefits from double glazing throughout and oil heating. Combining village charm with excellent accessibility and versatile accommodation, this property represents an excellent opportunity for families, professionals, or those seeking a spacious home in a highly desirable Moray setting. Viewing is highly recommended to fully appreciate the space, location, and potential on offer.
IMPORTANT NOTE TO POTENTIAL PURCHASERS:
We endeavour to make our particulars accurate and reliable, however, they do not constitute or form part of an offer or any contract and none is to be relied upon as statements of representation or fact. The services, systems and appliances listed in this specification have not been tested by us and no guarantee as to their operating ability or efficiency is given. All photographs and measurements have been taken as a guide only and are not precise. Floor plans where included are not to scale and accuracy is not guaranteed. If you require clarification or further information on any points, please contact us, especially if you are travelling some distance to view. Fixtures and fittings other than those mentioned are to be agreed with the seller.
Church Road, Duffus, Moray, IV30
Additional Information
-
Property refELG260014
-
EPCE
-
TenureFreehold
-
Council TaxD
-
Local authorityMoray Council
Situated to the front of the accommodation is a sizeable reception room with a large window overlooking the front garden and allowing for an abundance of natural light.
The well-proportioned kitchen provides ample workspace and storage with a large window overlooking the private, rear garden. The kitchen offers designated space for free-standing appliances, complemented by an integrated oven and hob.
There’s a cosy dining room, open to the kitchen and hallway, with French door leading out to the rear garden. This room also has a fitted cupboard and provides a fantastic additional space for general dining or entertaining guests.
The main bedroom is a generous double room overlooking the rear garden and benefits from a fitted wardrobe.
There is a second double bedroom on the ground floor, overlooking the front garden and offering ample space for furnishings.
Conveniently positioned is a downstairs shower room consisting of a WC, wash hand basin and a corner shower enclosure with an easily maintained wet wall finish.
A generously sized third double bedroom with two Velux windows, a fitted wardrobe with mirrored sliding doors and a useful walk-in cupboard.
There’s a fourth double bedroom with two Velux windows and a full wall length wardrobe with mirror sliding doors.
A modern family bathroom featuring a WC, wash hand basin with storage underneath and a bath with shower above.
The detached, timber-built outbuilding provides an ideal space for outdoor entertaining or use as a home office. Extending to approximately 10sqm, it features double opening doors, two windows, as well as power and lighting.
To the front, the property is set back from the road behind a generous, well-maintained garden, creating an attractive approach. Predominantly laid to lawn, the garden offers a neat and open aspect, complemented by a central planted feature, established shrubs and boundary planting that frame the plot. A paved pathway leads to the front entrance, while a sizeable driveway runs along the right-hand side of the property.To the rear, the property enjoys a particularly generous and well-maintained garden, offering a degree of privacy and excellent outdoor space. Largely laid to lawn, the garden provides ample room for family use, children’s play, or keen gardeners, with established boundaries creating a pleasant and enclosed setting.A paved patio area offers an ideal spot for outdoor dining and entertaining, while a covered timber pergola with decked flooring creates a sheltered seating area, perfect for year-round enjoyment and social gatherings. The garden further benefits from a substantial timber shed/outbuilding, providing excellent storage or potential for workshop or hobby use.
The pin shows the exact address of the property
Energy Efficiency Rating
Very energy efficient - lower running costs
Not energy efficient - higher running costs
Current
45Potential
66CO2 Rating
Very energy efficient - lower running costs
Not energy efficient - higher running costs
