This calculator provides a guide to the amount of residential stamp duty you may pay and does not guarantee this will be the actual cost. This calculation is based on the Stamp Duty Land Tax Rates for residential properties purchased from 23rd September 2022 and second homes from 31st October 2024. For more information on Stamp Duty Land Tax, click here.
3 bedroom Detached House for sale, Derby Road, Lower Kilburn, Derbyshire, DE56
Features and Description
- OFFERED FOR SALE WITH NO UPWARD CHAIN
- Convenient location for Derby, Belper and Ripley
- Ample off street parking/garage
- Open outlook to the rear
- Ground floor extension
- Requires modernisation
- Gas central heating
- Early viewing highly recommended
Offered for sale with no upward chain, this extended detached home occupies a generous plot and enjoys a highly convenient location, providing excellent access to Derby city centre, Belper and Ripley, as well as the A38 and M1 beyond.
The property now requires modernisation throughout, offering an excellent opportunity for purchasers to update and personalise to their own taste. Internally, the accommodation briefly comprises an entrance hall, open-plan lounge/dining room, spacious breakfast kitchen, family bathroom, two double bedrooms and a further single bedroom.
The property further benefits from gas central heating, ample off-street parking, a garage and a large rear garden.
Entrance Hall
Accessed via a double-glazed entrance door, the hallway features a radiator, double-glazed side window providing natural light, an integrated storage cupboard housing the combi boiler, and stairs rising to the first-floor accommodation.
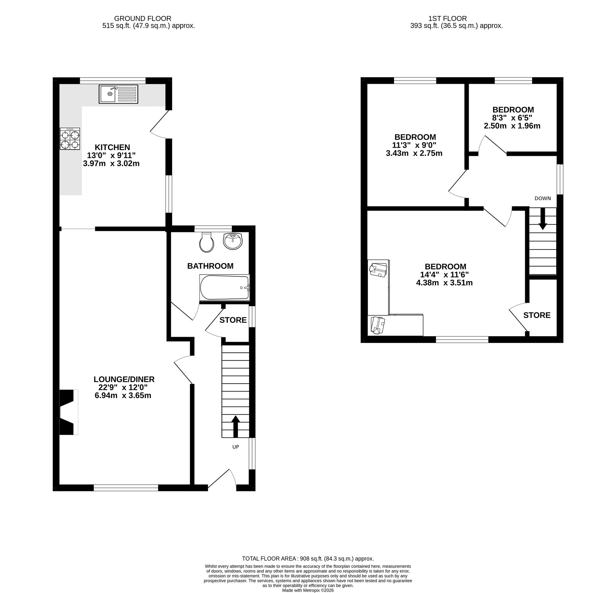
Lounge / Dining Room
22'10" x 12'0" (6.95m x 3.67m)
A particularly bright and spacious reception room, centred around a feature fireplace with decorative surround as its focal point. Additional features include two radiators and a double-glazed window to the front aspect, allowing for an abundance of natural light.
Kitchen
13'0" x 9'10" (3.97m x 3.00m)
Located within the single-storey rear extension, the kitchen is a bright and generously proportioned space, offering excellent potential for modernisation. Fitted with a range of wall and base units with work surfaces over, the kitchen incorporates space for a freestanding cooker, plumbing for appliances and a stainless steel sink unit. Two upvc double-glazed windows allow for plenty of natural light, while additional features include a radiator, side entrance door, vinyl flooring, and ample room for a breakfast table if desired.
Bathroom
7'4" x 6'5" (2.23m x 1.96m)
A well-appointed family bathroom, fitted with a three-piece suite comprising a panelled bath with mains-fed shower over and glazed screen, pedestal wash hand basin and low flush WC. The room is finished with tiled walls, complemented by tiled flooring, a wall-mounted mirror and a upvc frosted window providing natural light and privacy.Additionally, there is a useful built-in cupboard which provides handy storage.
Landing
Having a window to the side aspect and providing access to all first floor rooms.
Master Bedroom
14'4" x 11'6" (4.37m x 3.50m)
Well proportioned upvc double bedroom featuring a radiator, in-built storage cupboard, fitted wardrobes and a double glazed window to the front aspect.
Bedroom 2
8'12" x 11'1" (2.74m x 3.38m)
Double bedroom featuring radiator and a upvc double glazed overlooking the rear garden and fields beyond.
Bedroom 3
8'2" x 6'5" (2.50m x 1.96m)
Single bedroom having a radiator and a window to the rear.
External
Externally, the property occupies a pleasant plot with a generous frontage providing ample off-road parking via a paved driveway. The frontage is complemented by established planted borders, creating an attractive approach to the home.To the rear, there is an enclosed garden with a good-sized lawn and paved patio seating area, ideal for outdoor dining and entertaining. A detached sectional garage provides useful storage/workshop space and there is also an additional timber shed.The garden enjoys a pleasant open outlook beyond the boundary, adding to the sense of space and privacy.
Garage
9'9" x 16'5" (2.96m x 5.00m)
Having double wooden doors, lighting and power sockets.
IMPORTANT NOTE TO POTENTIAL PURCHASERS:
We endeavour to make our particulars accurate and reliable, however, they do not constitute or form part of an offer or any contract and none is to be relied upon as statements of representation or fact. The services, systems and appliances listed in this specification have not been tested by us and no guarantee as to their operating ability or efficiency is given. All photographs and measurements have been taken as a guide only and are not precise. Floor plans where included are not to scale and accuracy is not guaranteed. If you require clarification or further information on any points, please contact us, especially if you are travelling some distance to view. Fixtures and fittings other than those mentioned are to be agreed with the seller.
Derby Road, Lower Kilburn, Derbyshire, DE56
Additional Information
-
Property refQBP250360
-
EPCD
-
TenureFreehold
-
Council TaxD
-
Local authorityAmber Valley Borough Council
The pin shows the exact address of the property
Energy Efficiency Rating
Very energy efficient - lower running costs
Not energy efficient - higher running costs
Current
59Potential
76CO2 Rating
Very energy efficient - lower running costs
Not energy efficient - higher running costs
