This calculator provides a guide to the amount of residential stamp duty you may pay and does not guarantee this will be the actual cost. This calculation is based on the Stamp Duty Land Tax Rates for residential properties purchased from 23rd September 2022 and second homes from 31st October 2024. For more information on Stamp Duty Land Tax, click here.
3 bedroom Detached House for sale, Findern Close, Belper, Derbyshire, DE56
Features and Description
- CLOSE TO LOCAL AMENITIES
- WALKING DISTANCE TO NEARBY SCHOOLS
- OFF STREET PARKING/GARAGE
- GROUND FLOOR WC
- BATHROOM AND EN-SUITE
- TWO RECEPTION ROOMS
- GAS CENTRAL HEATING
- WELL PRESENTED THROUGHOUT
Modern three-bedroom detached home, ideally positioned within a popular residential area close to local amenities, schools and within easy reach of the town centre.
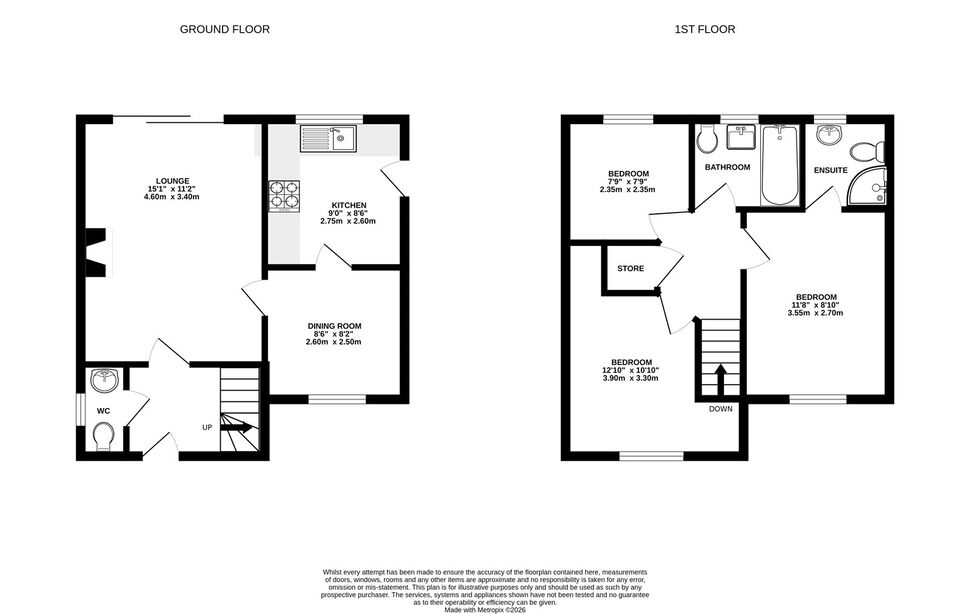
The accommodation briefly comprises an entrance hall with WC, a light and spacious living room, separate dining room and a well-appointed fitted kitchen.
To the first floor are three bedrooms, including two generous doubles—one benefiting from an en-suite shower room—and a comfortable single bedroom, alongside a contemporary family bathroom.
Externally, the property offers off-street parking, a garage and a pleasant rear garden, ideal for relaxing or entertaining. Further benefits include gas central heating and double glazing throughout.
Entrance Hall
Accessed via a double glazed entrance door, featuring a radiator and staircase rising to the first floor.
WC
Fitted with a wall-mounted wash hand basin and low flush WC. Additional features include a radiator and a double glazed window to the side aspect.
Living Room
A bright and inviting reception room with a feature fireplace forming the focal point. Further features include a radiator and large double glazed sliding doors opening onto the rear garden.
Dining Room
A well-proportioned reception space having a radiator, double glazed window to the front aspect and access through to the:-
Kitchen
Fitted with a range of wall, base and drawer units with contrasting wood-effect work surfaces and inset sink/drainer. Additional features include tiled flooring and splashbacks, space for a washing machine and fridge freezer, double glazed window to the rear aspect and a double glazed side entrance door.
Landing
Having a loft access hatch and useful built-in storage cupboard.
Master Bedroom
A spacious double bedroom featuring a radiator and double glazed window to the front aspect.
En-Suite
Appointed with a corner shower enclosure, low flush WC and vanity unit wash hand basin. Complemented by wood-effect flooring, tiled walls, radiator and a double glazed window to the rear aspect.
Bedroom 2
A well-proportioned double bedroom with two storage alcoves, radiator and double glazed window to the front aspect.
Bedroom 3
A practical single bedroom having a radiator and double glazed window overlooking the rear garden.
Bathroom
A stylish contemporary bathroom fitted with a panelled bath with shower over and glazed screen, vanity unit wash hand basin and low flush WC. Additional features include tile-effect flooring, tiled splashbacks, radiator and a double glazed window to the rear aspect.
External
To the front is a driveway providing off-street parking alongside a lawn with mature trees. The rear garden offers a lawn, decked seating area, established planting and access to the garage.
Garage
Having been converted into a bar by the current owners, this single garage features an up-and-over door, power and lighting.
IMPORTANT NOTE TO POTENTIAL PURCHASERS:
We endeavour to make our particulars accurate and reliable, however, they do not constitute or form part of an offer or any contract and none is to be relied upon as statements of representation or fact. The services, systems and appliances listed in this specification have not been tested by us and no guarantee as to their operating ability or efficiency is given. All photographs and measurements have been taken as a guide only and are not precise. Floor plans where included are not to scale and accuracy is not guaranteed. If you require clarification or further information on any points, please contact us, especially if you are travelling some distance to view. Fixtures and fittings other than those mentioned are to be agreed with the seller.
Findern Close, Belper, Derbyshire, DE56
Additional Information
-
Property refQBP260086
-
TenureFreehold
-
Council TaxC
-
Local authorityAmber Valley Borough Council
The pin shows the exact address of the property
Energy Efficiency Rating
Very energy efficient - lower running costs
Not energy efficient - higher running costs
Current
N/APotential
N/ACO2 Rating
Very energy efficient - lower running costs
Not energy efficient - higher running costs
