This calculator provides a guide to the amount of residential stamp duty you may pay and does not guarantee this will be the actual cost. This calculation is based on the Stamp Duty Land Tax Rates for residential properties purchased from 23rd September 2022 and second homes from 31st October 2024. For more information on Stamp Duty Land Tax, click here.
4 bedroom Detached House for sale, Joe Brown Close, Crewe, Cheshire, CW1
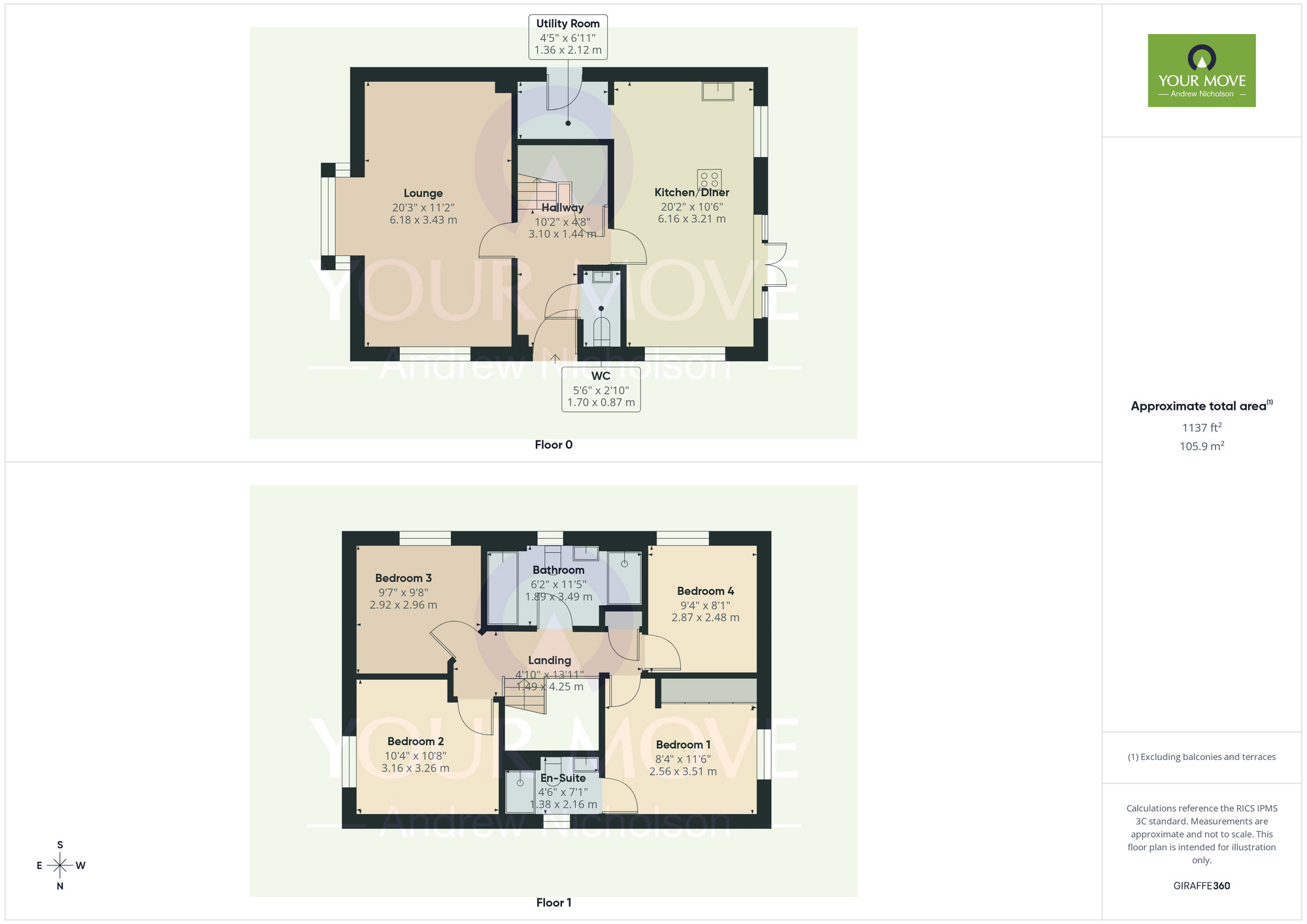
Features and Description
LOCATED WITHIN THE CONFINES OF THE SOUGHT AFTER SAXON GATE DEVELOPMENT BY BLOOR HOMES THAT WAS CONSTRUCTED CIRCA 2018, YOUR MOVE ANDREW NICHOLSON ARE PLEASED TO OFFER TO THE MARKET FOR SALE THIS LOVELY DETACHED RESIDENCE.
Very well presented throughout this home is situated upon a prominent corner plot and is one that will be sure to hold great appeal to any buyers who are seeking a home to suit the family needs.
If you work at, or are a regular visitor to Leighton Hospital then this could be just the right home for you as it is situated within a close proximity.
Having gardens to the three sides and a driveway to the rear that can accommodate several cars, the property is accessed via an entrance hall off which is located an useful downstairs cloakroom/wc. The hallway also leads into the lounge and to the open plan kitchen/diner, from which one can access the utility room.
The main bedroom has built in wardrobes and a lovely modern en-suite shower room. In addition there are three further bedrooms and a superb family bathroom that has a bath and separate double shower cubicle.
The detached garage that is found to the rear has boarding above to provide an additional storage area, whilst there is also an EV charging point next to the driveway.
Viewings are highly advised in order to fully appreciate all that this property has to offer, so call us now to arrange yours.
Agents Notes
LOCATED WITHIN THE CONFINES OF THE SOUGHT AFTER SAXON GATE DEVELOPMENT BY BLOOR HOMES THAT WAS CONSTRUCTED CIRCA 2018, YOUR MOVE ANDREW NICHOLSON ARE PLEASED TO OFFER TO THE MARKET FOR SALE THIS LOVELY DETACHED RESIDENCE. Very well presented throughout, this home is situated upon a prominent corner plot and is one that will be sure to hold great appeal to any buyers who are seeking a home to suit the family needs. If you work at, or are a regular visitor to Leighton Hospital then this could be just the right home for you as it is situated within a close proximity. Having gardens to the three sides and a driveway to the rear that can accommodate several cars, the property is accessed via an entrance hall off which is located an useful downstairs cloakroom/wc. The hallway also leads into the lounge and to the open plan kitchen/diner, from which one can access the utility room. The main bedroom has built in wardrobes and a lovely modern en-suite shower room. In addition there are three further bedrooms and a superb family bathroom that has a bath and separate double shower cubicle. The detached garage that is found to the rear has boarding above to provide an additional storage area, whilst there is also an EV charging point next to the driveway. Viewings are highly advised in order to fully appreciate all that this property has to offer, so call us now to arrange yours.
Entrance Hall
Double glazed entrance door, stairs leading to first floor landing, understairs storage cupboard, radiator,.
Downstairs Cloakroom
Fitted with a white two piece suite that includes: low level wc and wash hand basin with tiled splashback, tiled flooring, extractor fan, double glazed window to front.
Lounge
Dual aspected with double glazed window to front and double glazed box bay window to side, two radiators.
Kitchen / Diner
Dual aspected with double glazed windows to front and side and double glazed French style doors leading into the garden. Fitted with a one and a half bowl single drainer sink unit and a range of base, drawer and wall cupboards. Integrated appliances including dishwasher, fridge freezer, oven and hob. Laminate flooring. Two radiators. Spotlights.
Utility Room
Having space and plumbing for washing machine and space for dryer. Gas fired central heating boiler. Laminate flooring. Wall cupboard. Double glazed door into the garden. Radiator.
Landing
Built in storage cupboard, access to loft area.
Bedroom 1
Double glazed window to side, built in wardrobes with mirrored sliding doors, radiator.
En-Suite Shower Room
Having a white three piece suite that includes: tiled shower cubicle, pedestal was hand basin and low level wc, radiator, double glazed window to rear.
Bedroom 2
Double glazed window to side, radiator.
Bedroom 3
Double glazed window to front, radiator.
Bedroom 4
Double glazed window to front, radiator.
Family Bathroom
Fitted with a white four piece suite that includes: double shower cubicle, panelled bath with tiled surrounds, pedestal wash hand basin with tiled splashback and low level wc, double glazed window to front, heated towel rail, spotlights, extractor fan.
Garden
The garden is laid mainly to lawn with a flagged patio area and having gated access to the drive and the garage.
Driveway
The tarmac driveway offers off road parking for several cars and has an EV charging point.
Detached Garage
Up and over door.
IMPORTANT NOTE TO POTENTIAL PURCHASERS:
We endeavour to make our particulars accurate and reliable, however, they do not constitute or form part of an offer or any contract and none is to be relied upon as statements of representation or fact. The services, systems and appliances listed in this specification have not been tested by us and no guarantee as to their operating ability or efficiency is given. All photographs and measurements have been taken as a guide only and are not precise. Floor plans where included are not to scale and accuracy is not guaranteed. If you require clarification or further information on any points, please contact us, especially if you are travelling some distance to view. Fixtures and fittings other than those mentioned are to be agreed with the seller.
Joe Brown Close, Crewe, Cheshire, CW1
Additional Information
-
Property refCRE260084
-
EPCB
-
TenureFreehold
-
Council TaxD
-
Local authorityCheshire East Council
Dual aspected with double glazed window to front and double glazed box bay window to side, two radiators.
Dual aspected with double glazed windows to front and side and double glazed French style doors leading into the garden. Fitted with a one and a half bowl single drainer sink unit and a range of base, drawer and wall cupboards. Integrated appliances including dishwasher, fridge freezer, oven and hob. Laminate flooring. Two radiators. Spotlights.
Having space and plumbing for washing machine and space for dryer. Gas fired central heating boiler. Laminate flooring. Wall cupboard. Double glazed door into the garden. Radiator.
Double glazed window to side, built in wardrobes with mirrored sliding doors, radiator.
Having a white three piece suite that includes: tiled shower cubicle, pedestal was hand basin and low level wc, radiator, double glazed window to rear.
Double glazed window to side, radiator.
Double glazed window to front, radiator.
Double glazed window to front, radiator.
Fitted with a white four piece suite that includes: double shower cubicle, panelled bath with tiled surrounds, pedestal wash hand basin with tiled splashback and low level wc, double glazed window to front, heated towel rail, spotlights, extractor fan.
The pin shows the exact address of the property
Energy Efficiency Rating
Very energy efficient - lower running costs
Not energy efficient - higher running costs
Current
84Potential
93CO2 Rating
Very energy efficient - lower running costs
Not energy efficient - higher running costs
