This calculator provides a guide to the amount of residential stamp duty you may pay and does not guarantee this will be the actual cost. This calculation is based on the Stamp Duty Land Tax Rates for residential properties purchased from 23rd September 2022 and second homes from 31st October 2024. For more information on Stamp Duty Land Tax, click here.
4 bedroom Detached House for sale, Kingside Hill, Silloth, Cumbria, CA7
Features and Description
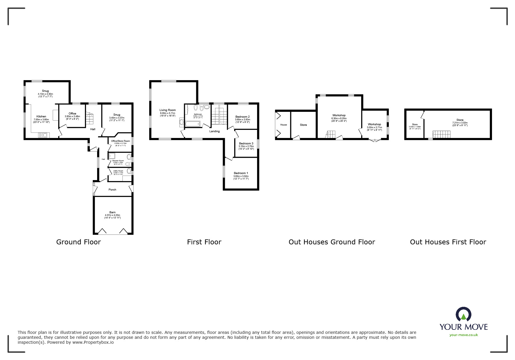
This stunning property is situated within approximately three acres of grounds. The main house comprises to the ground floor, cloakroom area, ideal for kicking off wellie boots, useful utility room with a range of units, and shower room. As you explore further down the corridor you are met with a superb stain glass feature window that lights up the stairs and hallway. There is a snug/bedroom, office and spacious kitchen/dining room with a range of modern units, electric oven and LPG gas hob. To the first floor are three double bedrooms, the family bathroom and the spacious living room situated on the first floor to benefit from the stunning views. Outside the grounds are split up into different areas the walled vegetable garden with poly tunnel , orchard, and established flower and shrubs beds at every turn. There is a long sweeping drive with handy turning circle, a paddock to the left and tucked away behind the property is the second larger paddock. Attached to the house is a large two story barn with workshop, stores and adjoining garage. There is a large courtyard, ideal for entertaining friends and family.
Entrance Area / Cloakroom
5'5" x 14'10" (1.65m x 4.53m)
Perfect area as a boot room, storage for outside jackets etc.
Utility Room
5'7" x 9'1" (1.69m x 2.76m)
Handy utility room.
Shower Room
5'5" x 9'8" (1.65m x 2.94m)
Downstairs shower room with shower cubicle, w/c and wash hand basin.
Play Room
7'0" x 8'11" (2.14m x 2.71m)
Handy room would be ideal as a play room or for storage.
Snug / Bedroom
11'4" x 12'2" (3.46m x 3.71m)
Currently styled as a snug but could also be a fourth double bedroom.
Office
8'11" x 9'10" (2.71m x 2.99m)
Office space with plenty of room for a desk and storage.
Kitchen / Dining / Snug
3.88m (Max) x 6.76m
Beautiful kitchen/dining room with additional snug area at the end, having a range of fitted units and plenty of room for a six seater table.
Bedroom 1
11'7" x 13'6" (3.52m x 4.11m)
Spacious double bedroom overlooking the courtyard.
Bedroom 2
9'3" x 12'0" (2.83m x 3.67m)
Double bedroom overlooking the paddock to the side of the property.
Bedroom 3
9'3" x 10'2" (2.81m x 3.11m)
Further double bedroom.
Bathroom
9'3" x 12'0" (2.83m x 3.67m)
Bathroom with bath, w/c and wash hand basin and built in airing cupboards.
Living Room
12'11" x 22'5" (3.93m x 6.82m)
Large living room triple aspect so flooded with natural light and taking advantage of the panoramic stunning views.
Outside
The property sits within approximately a 3 acre plot. There is a double storey barn which adjoins the house with workshop and plenty of storage. Sweeping drive and turn circle and different areas of gardens with vegetable plots and established plants and shrubs.
Agents Notes
The property has some double glazing and has oil heating. There are solar panels on the garage roof for personal use and are owned outright. There are two septic tanks at the property both located within the boundary of the property.
IMPORTANT NOTE TO POTENTIAL PURCHASERS:
We endeavour to make our particulars accurate and reliable, however, they do not constitute or form part of an offer or any contract and none is to be relied upon as statements of representation or fact. The services, systems and appliances listed in this specification have not been tested by us and no guarantee as to their operating ability or efficiency is given. All photographs and measurements have been taken as a guide only and are not precise. Floor plans where included are not to scale and accuracy is not guaranteed. If you require clarification or further information on any points, please contact us, especially if you are travelling some distance to view. Fixtures and fittings other than those mentioned are to be agreed with the seller.
Agents are required by law to conduct Anti-Money Laundering checks on all buyers. Your Move Carlisle, Whitehaven and Wigton charge £30 including VAT per buyer. The charge covers the cost of obtaining and retaining relevant data from a third party. This fee is payable in advance prior to issuing a memorandum of sale and before the property can be sale agreed.
Kingside Hill, Silloth, Cumbria, CA7
Additional Information
-
Property refWIG260011
-
EPCF
-
TenureFreehold
-
Council TaxF
-
Local authorityCumberland Council
Downstairs shower room with shower cubicle, w/c and wash hand basin.
Currently styled as a snug but could also be a fourth double bedroom.
Beautiful kitchen/dining room with additional snug area at the end, having a range of fitted units and plenty of room for a six seater table.
Spacious double bedroom overlooking the courtyard.
Double bedroom overlooking the paddock to the side of the property.
Further double bedroom.
Bathroom with bath, w/c and wash hand basin and built in airing cupboards.
Large living room triple aspect so flooded with natural light and taking advantage of the panoramic stunning views.
The property sits within approximately a 3 acre plot. There is a double storey barn which adjoins the house with workshop and plenty of storage. Sweeping drive and turn circle and different areas of gardens with vegetable plots and established plants and shrubs.
The pin shows the exact address of the property
Energy Efficiency Rating
Very energy efficient - lower running costs
Not energy efficient - higher running costs
Current
28Potential
80CO2 Rating
Very energy efficient - lower running costs
Not energy efficient - higher running costs
