5 bedroom Detached House to rent, Glapthorn Road, Peterborough, PE8
Available Unfurnished, from 01/02/2026
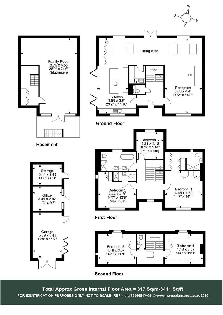
Features and Description
- - A high-specification family house
- - Walk to schools and Market Place
- - Five double bedrooms
- - Three bathrooms
- - Garaging and home office
Located only a short walk to the marketplace in Oundle is this exceptional five-bedroom family home designed to create integrated family living, with a great flow to an open plan ground floor.
The front door, with bespoke fanlight above, opens up into the entrance hallway.
Kitchen is the hub of the house and offers a large, light room fitted with a great range of wall and base units with granite surfaces and inset sink. The large granite topped island has a hardwood breakfast bar to one end. Integrated appliances include a Miele induction hob, two electric ovens, steamer and a combi microwave. Bi-fold doors retract fully to open the kitchen to the south facing courtyard.
Dining room offers space for large dining furniture and acts as a link to the sitting room which is spacious, yet elegant, with a fabulous stone fireplace with woodburning stove.
A guest cloakroom completes the ground floor accommodation.
Steps lead from the hallway down to the basement which is a great games, or family room, with integrated sound system. Glazed doors allow in natural light and provide access to an external stairway.
An oak staircase leads from the hall to the first-floor landing. The principal bedroom is spacious in size with fitted wardrobes, dressing area and a luxurious shower room.
Guest bedroom has a lovely ensuite shower and bedroom three has the use of the superbly appointed family bathroom.
Stairs rise to the second floor where there are two further double bedrooms and WC/washroom.
The property sits behind a hedged and lawned front garden with the granite set driveway providing parking for multiple vehicles. Garage is off to one side with glazed bi-folds, tiled flooring and heating. It forms part of a run of rooms including home office and store.
There is a large, private courtyard and sheltered garden which runs behind the house.
Available early February, this property is offered on an un-furnished basis.
Viewings by appointment only with Your Move Nolan Thrown.
IMPORTANT NOTE TO POTENTIAL RENTERS:
We endeavour to make our particulars accurate and reliable, however, they do not constitute or form part of an offer or any contract and none is to be relied upon as statements of representation or fact. The services, systems and appliances listed in this specification have not been tested by us and no guarantee as to their operating ability or efficiency is given. All photographs and measurements have been taken as a guide only and are not precise. Floor plans where included are not to scale and accuracy is not guaranteed. If you require clarification or further information on any points, please contact us, especially if you are travelling some distance to view.
All properties are available for a minimum length of time, with the exception of short term accommodation. Please contact the branch for details. A security deposit of at least one month’s rent is required. Rent is to be paid one month in advance. It is the tenant’s responsibility to insure any personal possessions. Payment of all utilities including water rates or metered supply and Council Tax is the responsibility of the tenant in every case.
Glapthorn Road, Peterborough, PE8
The pin shows the exact address of the property
Energy Efficiency Rating
Very energy efficient - lower running costs
Not energy efficient - higher running costs
Current
85Potential
89CO2 Rating
Very energy efficient - lower running costs
Not energy efficient - higher running costs
