4 bedroom Detached House to rent, Grant Close, Ushaw Moor, Durham, DH7
Available Unfurnished, from 22/05/2026
Features and Description
- Four bed detached
- Beautifully presented
- Unfurnished property
- Available from May 22nd
- Garden and driveway
- Council Tax Band D
- EPC Rating B
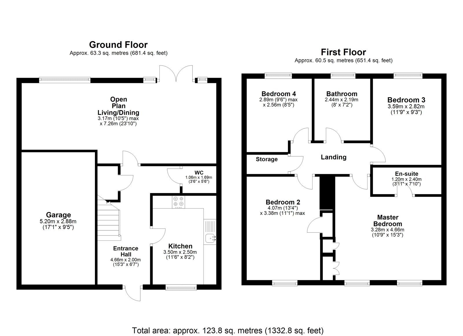
Beautifully presented to a high standard this four bedroom detached property would make a perfect home for a family or professionals.
The property briefly comprises: To the ground; entrance hall with tiled flooring which continues throughout the ground floor. Leading to kitchen with a range of wall and base units, gas hob and electric oven with integrated appliances including fridge freezer, dishwasher and washing machine. The hallway also provides understairs storage cupboard and separate WC. To the back of the property is an open plan living room/dining room with double doors leading to a tiered garden.
Upstairs are four bedrooms. The principal bedroom has built in wardrobes and an en-suite shower room. The family bathroom has as a bath, washbasin and WC.
Externally the property offers a low maintenance garden with artificial grass to the front and rear of the property and a double drive for off road parking.
Garage is NOT currently included in the let.
Grant Close is situated on a highly sought-after estate within Ushaw Moor. The property provides a wide range local amenities, including shops, pubs and primary schools. With transport links to Durham City Centre and Newcastle City via the A167 close by. There are also popular country walks in Ushaw Moor itself and in close neighbouring villages.
• Four bed detached
• Beautifully presented
• Unfurnished property
• Available from May 22nd
• Garden and driveway
• Council Tax Band D
• EPC Rating B
IMPORTANT NOTE TO POTENTIAL RENTERS:
We endeavour to make our particulars accurate and reliable, however, they do not constitute or form part of an offer or any contract and none is to be relied upon as statements of representation or fact. The services, systems and appliances listed in this specification have not been tested by us and no guarantee as to their operating ability or efficiency is given. All photographs and measurements have been taken as a guide only and are not precise. Floor plans where included are not to scale and accuracy is not guaranteed. If you require clarification or further information on any points, please contact us, especially if you are travelling some distance to view.
All properties are available for a minimum length of time, with the exception of short term accommodation. Please contact the branch for details. A security deposit of at least one month’s rent is required. Rent is to be paid one month in advance. It is the tenant’s responsibility to insure any personal possessions. Payment of all utilities including water rates or metered supply and Council Tax is the responsibility of the tenant in every case.
Grant Close, Ushaw Moor, Durham, DH7
The pin shows the exact address of the property
Energy Efficiency Rating
Very energy efficient - lower running costs
Not energy efficient - higher running costs
Current
82Potential
93CO2 Rating
Very energy efficient - lower running costs
Not energy efficient - higher running costs
