3 bedroom Detached House to rent, Nottingham Road, Eastwood, Nottinghamshire, NG16
Features and Description
- Three double bedrooms
- Detached family home
- Two bright reception rooms
- Garden with direct access
- Convenient off-street parking
- Bedroom with built-in wardrobes
- Two modern bathrooms
- Close to Eastwood high street
- Near parks and green spaces
- Good public transport links
To let: a 3-bedroom detached house in Eastwood, offered in good condition and well-suited to families. The property provides two reception rooms, one with large windows bringing in plenty of natural light, and a second reception room enjoying a garden view with direct access outside. There are two bathrooms, each with a heated towel rail, and three double bedrooms, including one with built-in wardrobes. Outside, you’ll find a garden and convenient parking.
Located in Eastwood, the house is close to local amenities on the high street, including shops, cafés and everyday services. Nearby parks offer green space for walks and play. Families benefit from access to nearby schools in the area. Public transport links are available along Nottingham Road, providing bus routes into Nottingham and surrounding towns. Council Tax Band C and EPC Rating E.
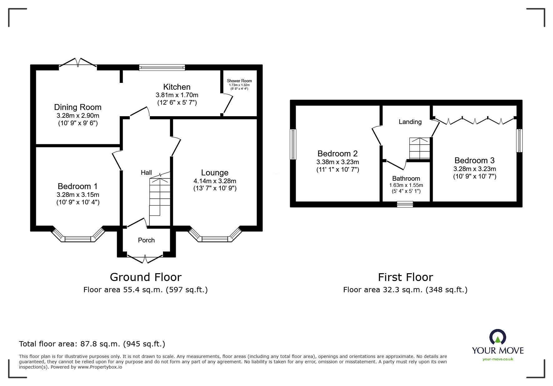
Entrance Porch
Enter through double doors into the porch having tiled flooring.
Entrance Hallway
A bright and spacious hallway having laminate wood effect flooring and stairs to the first floor.
Lounge
13'7" x 10'9" (4.14m x 3.28m)
A great size lounge having a radiator and bay window to the front elevation.
Kitchen
12'6" x 5'7" (3.80m x 1.70m)
Having a range of fitted wall and base unts with worktops over and inset stainless steel sink drainer. Integrated oven and hob with extractor hood over. Space and plumbing for a washing machine and space for a fridge freezer. Laminate wood effect flooring, radiator and window to the rear elevation.
Dining Room
10'9" x 9'6" (3.28m x 2.90m)
A further good size reception room having laminate wood effect flooring, radiator and French doors opening onto the rear garden.
Donwstairs Shower Room
5'8" x 4'4" (1.73m x 1.32m)
Having a low flush wc, wash hand basin and walk in shower enclosure.
Bedroom 1
10'9" x 10'4" (3.28m x 3.15m)
A great size double room situated on the ground floor and having a radiator and bay window to the front elevation.
Bedroom 2
11'1" x 10'7" (3.38m x 3.23m)
A further great size double room having a radiator and window to the side elevation.
Bedroom 3
10'9" x 10'7" (3.28m x 3.23m)
A third double bedroom having a range of fitted wardrobes, radiator and window to the side elevation.
Bathroom
5'4" x 5'1" (1.63m x 1.55m)
A modern bathroom having a low flush wc, vanity wash hand basin and panelled bath with shower over. Part tiled walls, heated towel rail and window to the front elevation.
Outside
To the front of the property is an enclosed garden laid to lawn with pathway leading to the main access door.Off road parking is provided with a driveway.To the rear is a great size enclosed garden laid mainly to lawn with a paved patio area and side access gate.
EPC
EPC rating is E
IMPORTANT NOTE TO POTENTIAL RENTERS:
We endeavour to make our particulars accurate and reliable, however, they do not constitute or form part of an offer or any contract and none is to be relied upon as statements of representation or fact. The services, systems and appliances listed in this specification have not been tested by us and no guarantee as to their operating ability or efficiency is given. All photographs and measurements have been taken as a guide only and are not precise. Floor plans where included are not to scale and accuracy is not guaranteed. If you require clarification or further information on any points, please contact us, especially if you are travelling some distance to view.
All properties are available for a minimum length of time, with the exception of short term accommodation. Please contact the branch for details. A security deposit of at least one month’s rent is required. Rent is to be paid one month in advance. It is the tenant’s responsibility to insure any personal possessions. Payment of all utilities including water rates or metered supply and Council Tax is the responsibility of the tenant in every case.
Additional Information
-
Property refILK260025
-
Council TaxC
-
Local authorityBroxtowe Borough Council
