This calculator provides a guide to the amount of residential stamp duty you may pay and does not guarantee this will be the actual cost. This calculation is based on the Stamp Duty Land Tax Rates for residential properties purchased from 23rd September 2022 and second homes from 31st October 2024. For more information on Stamp Duty Land Tax, click here.
4 bedroom End Terrace House for sale, Laurel Crescent, Romford, RM7
Features and Description
- CHAIN FREE
- DRIVEWAY
- UTILITY ROOM
- GARAGE
- DOWNSTAIRS SHOWER ROOM
- FOUR BEDROOMS
- END OF TERRACE
- CLOSE TO LOCAL TRANSPORT LINKS AND AMENITIES
- CALL NOW TO ARRANGE A VIEWING!
GUIDE PRICE £600,000-£625,000
Situated on Laurel Crescent, this spacious four bedroom end of terrace home offers and excellent blend of generous living space and practical features, making it ideal for growing families.
The property boasts four well-proportioned bedrooms, providing ample space for family living, working from home and guest accommodation. Downstairs, the home benefits from a large through-lounge with double doors separating the open plan kitchen/dining area which is situated in the rear extension. This impressive space forms the heart of the home, ideal for relaxing and entertaining guests.
The ground floor also benefits from a downstairs shower room, a convenient utility room and a garage.
This fantastic home is perfectly positioned for local amenities, schools and transport links, making it a superb opportunity for buyers seeking both space and convenience. The property also benefits from a driveway. Early viewing is highly recommended!!
EPC RATING D
COUNCIL TAX BAND D
Lettings and management
Your Move Stewart and Co offer Landlords a professional, ARLA accredited, lettings and management service. Please contact our lettings manager Fatih Akdag for more information.
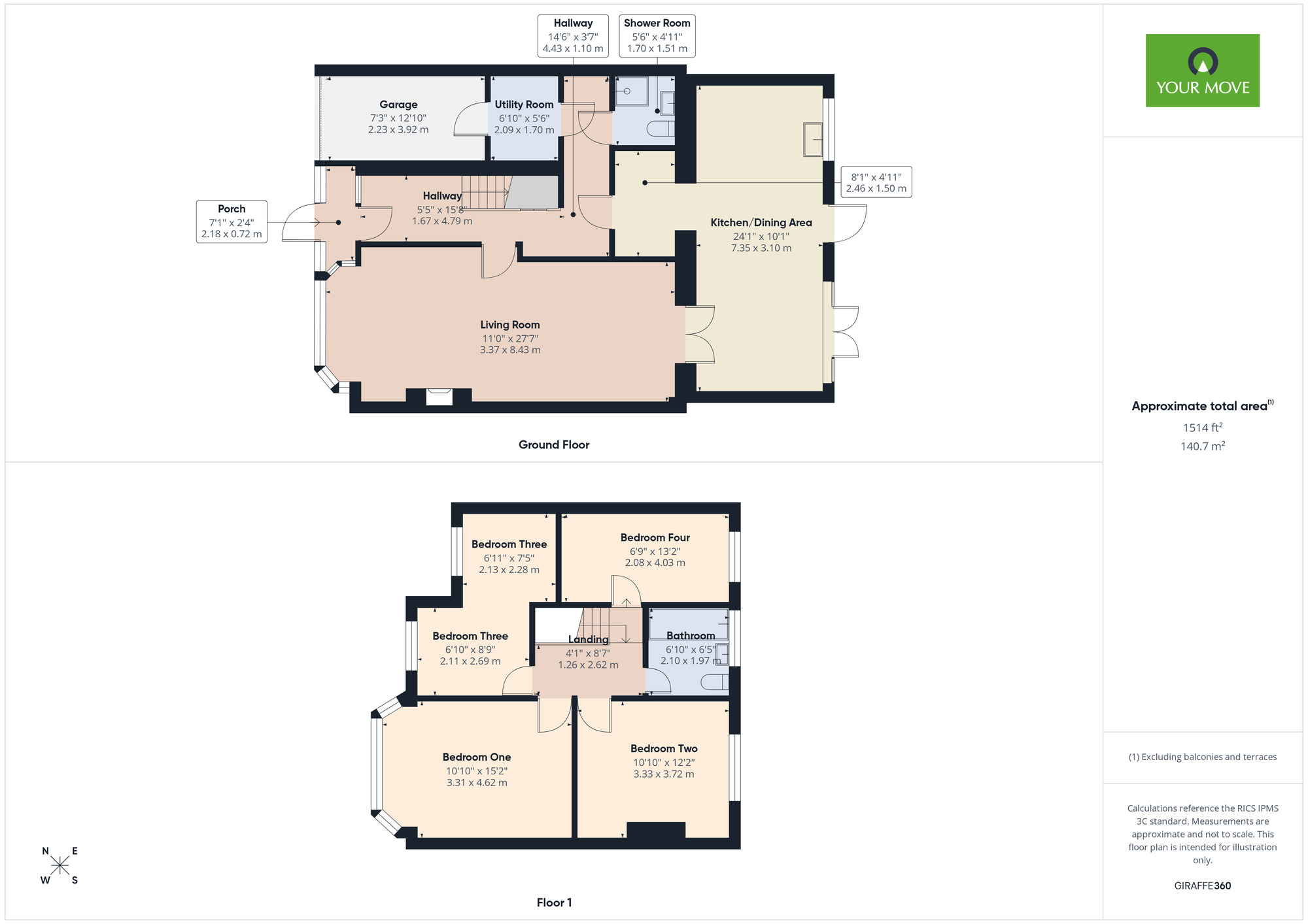
Porch
7'1" x 2'4" (2.16m x 0.70m)
Hallway
5'5" x 15'8" (1.65m x 4.78m)
Hallway
14'6" x 3'7" (4.42m x 1.10m)
Garage
7'3" x 12'10" (2.20m x 3.90m)
Utility Room
6'10" x 5'6" (2.08m x 1.68m)
Kitchen / Dining Area
24'1" x 10'1" (7.34m x 3.07m)
Living Room
10'12" x 27'7" (3.35m x 8.40m)
Landing
4'1" x 8'7" (1.24m x 2.62m)
Bedroom 1
10'10" x 15'2" (3.30m x 4.62m)
Bedroom 2
10'10" x 12'2" (3.30m x 3.70m)
Bedroom 3
2.08mx 2.67m
Bedroom 3
2.1mx 2.26m
Bedroom 4
6'9" x 13'2" (2.06m x 4.01m)
Bathroom
6'10" x 6'5" (2.08m x 1.96m)
IMPORTANT NOTE TO POTENTIAL PURCHASERS:
We endeavour to make our particulars accurate and reliable, however, they do not constitute or form part of an offer or any contract and none is to be relied upon as statements of representation or fact. The services, systems and appliances listed in this specification have not been tested by us and no guarantee as to their operating ability or efficiency is given. All photographs and measurements have been taken as a guide only and are not precise. Floor plans where included are not to scale and accuracy is not guaranteed. If you require clarification or further information on any points, please contact us, especially if you are travelling some distance to view. Fixtures and fittings other than those mentioned are to be agreed with the seller.
Laurel Crescent, Romford, RM7
Additional Information
-
Property refQRO260093
-
EPCD
-
TenureFreehold
-
Council TaxD
-
Local authorityBarking and Dagenham
The pin shows the exact address of the property
Energy Efficiency Rating
Very energy efficient - lower running costs
Not energy efficient - higher running costs
Current
66Potential
85CO2 Rating
Very energy efficient - lower running costs
Not energy efficient - higher running costs
