This calculator provides a guide to the amount of residential stamp duty you may pay and does not guarantee this will be the actual cost. This calculation is based on the Stamp Duty Land Tax Rates for residential properties purchased from 23rd September 2022 and second homes from 31st October 2024. For more information on Stamp Duty Land Tax, click here.
3 bedroom End Terrace House for sale, Primrose Fields, Bedford, Bedfordshire, MK41
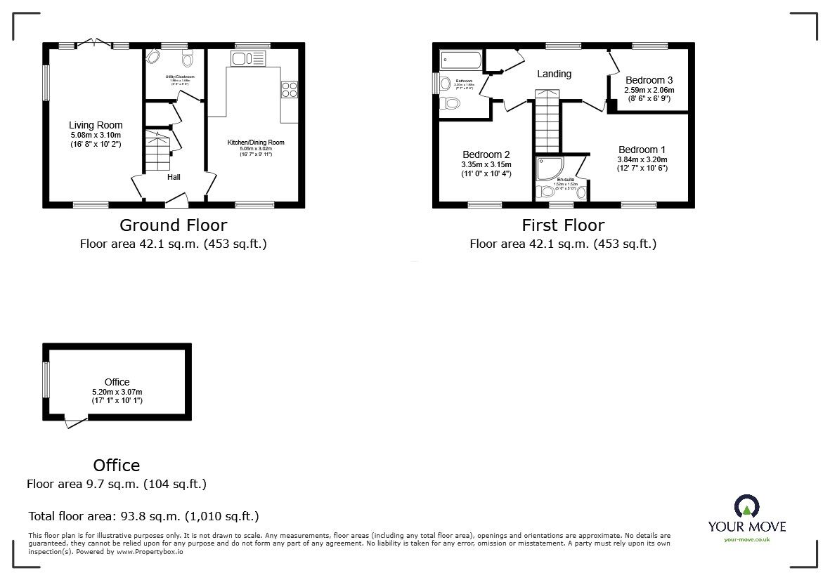
Features and Description
- Large Three Bedroom Family Home Overlooking A Park
- Landscaped Garden With a Patio And Decking
- 17ft Converted Garage Into An Office/Man Cave
- Near Putnoe Schools, Shops, Parks And The Bypass
- 16ft Triple Aspect Living Room
- 16ft Fully Integrated Fitted Kitchen/Dining Room
- Utility/Cloakroom
- Ensuite To Your Main Bedroom
- Driveway
- Council Tax Band D And EPC Rated C
If your looking for a large family home on the North side of Bedford with access to the sought after Putnoe schools and amenities, then look no further! This three bedroom family is the perfect upgrade for any family looking for a property that they can move straight into, offering a large amount of space, in a nice quiet area. Inside offers you a large hall with bespoke pull out understairs storage cupboards and a large utility cloakroom. It boasts of having a very light and airy triple aspect 16ft living room with French doors leading out onto your garden. There is a separate 16ft fully integrated fitted kitchen/dining room, with ample room to sit, chat, cook and dine. Whilst upstairs you have a light and airy landing giving you access to your main bedroom, which comes complete with an ensuite shower room and wardrobes recess. On this floor you also have a further double bedroom, large third single bedroom and a fitted family bathroom suite. Outside you have a lovely, well designed landscaped rear garden benefitting from having a feature lawn area with a paved path surround and flower bed borders to either side. With a large full width decked area and separate patio area to enjoy. To the rear of the garden you have access to your converted garage. The converted garage measures a good 17ft in length, which offers you a versatile office space, complete with spot lighting and loft storage space. Which could be used as a games room, gym or man cave. In front of the converted garage is a driveway. To the front of the property you have a small garden area with views over a small toddlers park. Viewing is highly recommended. Council Tax Band D and EPC rated C.
Location
Located to the North East of Bedford, just off of Norse Road in Primrose Fields, tucked away off of Markham Rise. The property is sat on a nice corner plot position overlooking a small toddlers park within a mews style location on a modern development. Having access to the Putnoe schools, nice field walks and a variety of children's parks. You are only a short drive away from the Hills, Hazeldene, Goldington Academy and Castle Newnham Schools, as well as Bedford's University. Close by you have access to a parade of shops with an Aldi and Iceland Supermarkets, together with a variety of others shops and a medical Centre. The area also gives you access to a Tesco's Superstore, Lidl, B&M, Wicks DIY Store and a McDonald's, Starbuck's and a KFC fast-food outlets. There are a number of pub/restaurants to try, a vets, carwash and regular bus services. For nice walks you have access to Mowsbury Park, with its 18 hole golf course and Goldington Green, with it's children's parks. The bypass offers you excellent road links to the A1, M1, A600 and A6 if you commute.
IMPORTANT NOTE TO POTENTIAL PURCHASERS:
We endeavour to make our particulars accurate and reliable, however, they do not constitute or form part of an offer or any contract and none is to be relied upon as statements of representation or fact. The services, systems and appliances listed in this specification have not been tested by us and no guarantee as to their operating ability or efficiency is given. All photographs and measurements have been taken as a guide only and are not precise. Floor plans where included are not to scale and accuracy is not guaranteed. If you require clarification or further information on any points, please contact us, especially if you are travelling some distance to view. Fixtures and fittings other than those mentioned are to be agreed with the seller.
Primrose Fields, Bedford, Bedfordshire, MK41
Additional Information
-
Property refBED250348
-
EPCC
-
TenureFreehold
-
Council TaxD
-
Local authorityBedford Borough Council
The pin shows the exact address of the property
Energy Efficiency Rating
Very energy efficient - lower running costs
Not energy efficient - higher running costs
Current
75Potential
80CO2 Rating
Very energy efficient - lower running costs
Not energy efficient - higher running costs
