This calculator provides a guide to the amount of residential stamp duty you may pay and does not guarantee this will be the actual cost. This calculation is based on the Stamp Duty Land Tax Rates for residential properties purchased from 23rd September 2022 and second homes from 31st October 2024. For more information on Land and Buildings Transaction Tax, click here.
2 bedroom Semi Detached House for sale, Rae Street, Cowdenbeath, Fife, KY4
Features and Description
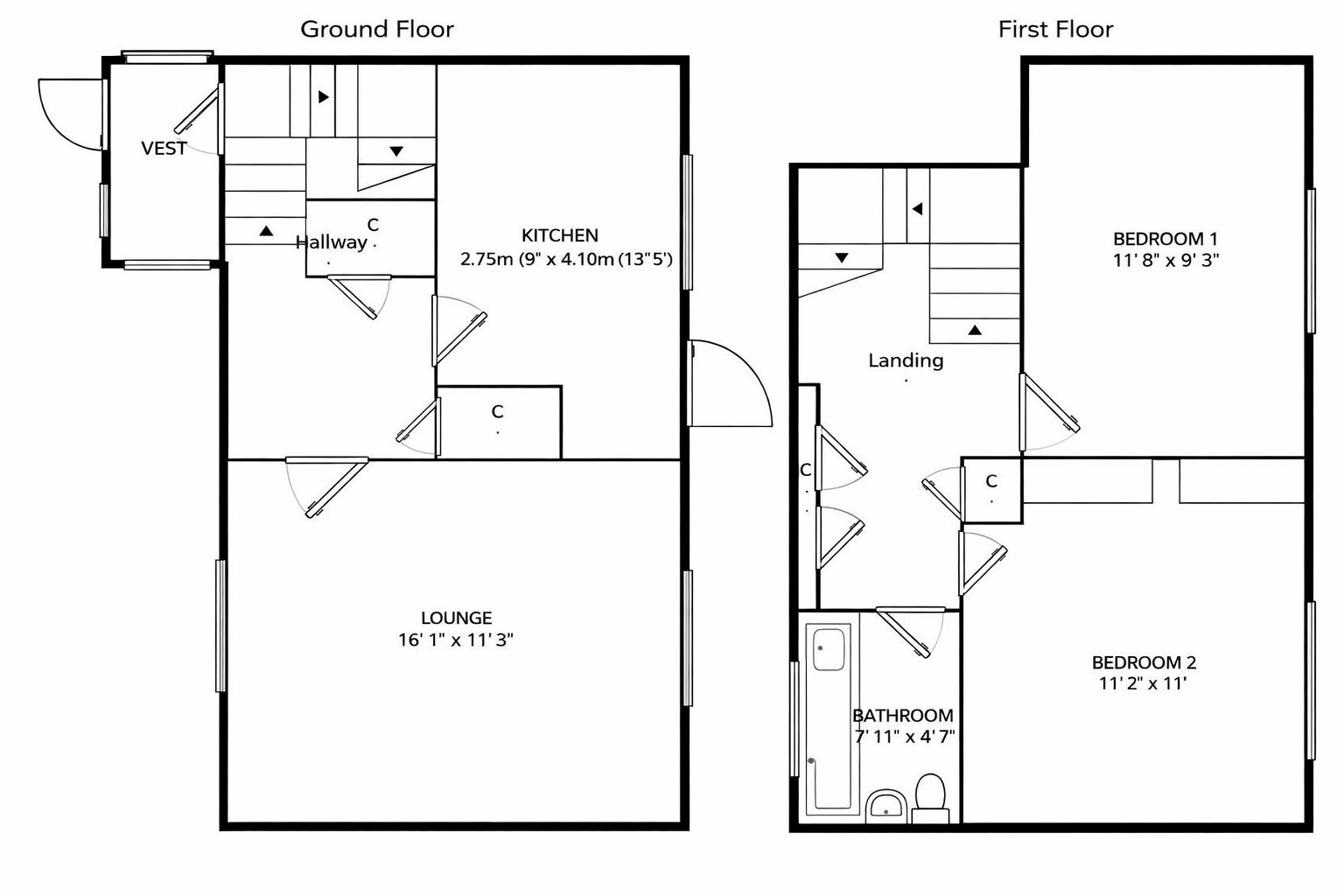
- Two-bedroom semi-detached home in Rae Street, Cowdenbeath
- Spacious lounge measuring approximately 16'1" x 11'3"
- Kitchen with direct access to the rear garden
- Two well-proportioned double bedrooms
- Family bathroom with three-piece suite
- Entrance vestibule and hallway with storage cupboards
- Private garden grounds with potential for landscaping
- Requires cosmetic upgrading, ideal for adding value
Situated on Rae Street in Cowdenbeath, this two-bedroom semi-detached home offers an excellent opportunity for buyers seeking a property with strong potential to personalise and add value. While the property would benefit from cosmetic upgrading, it provides a solid layout and generous room sizes throughout.
The ground floor comprises a welcoming vestibule leading into a central hallway with useful storage. To the front, the bright and spacious lounge (approximately offers ample room for both relaxing and dining. To the rear, the kitchen provides direct access to the garden and presents a great opportunity for modernisation to suit individual tastes.
Upstairs, the property features two well-proportioned double bedrooms, both offering comfortable accommodation. A family bathroom with three-piece suite completes the first floor, along with additional storage off the landing.
Externally, the property benefits from private garden grounds, ideal for outdoor enjoyment or further landscaping.
This home is ideally suited to first-time buyers, investors, or those looking for a renovation project, and is conveniently located for local amenities, schools, and transport links within Cowdenbeath.
* Agents note * Photos have been enhanced using AI.
IMPORTANT NOTE TO POTENTIAL PURCHASERS:
We endeavour to make our particulars accurate and reliable, however, they do not constitute or form part of an offer or any contract and none is to be relied upon as statements of representation or fact. The services, systems and appliances listed in this specification have not been tested by us and no guarantee as to their operating ability or efficiency is given. All photographs and measurements have been taken as a guide only and are not precise. Floor plans where included are not to scale and accuracy is not guaranteed. If you require clarification or further information on any points, please contact us, especially if you are travelling some distance to view. Fixtures and fittings other than those mentioned are to be agreed with the seller.
Rae Street, Cowdenbeath, Fife, KY4
Additional Information
-
Property refDUF260099
-
EPCD
-
TenureFreehold
-
Council TaxB
-
Local authorityFife Council
Similar properties for sale by Your Move Dunfermline
The pin shows the exact address of the property
Energy Efficiency Rating
Very energy efficient - lower running costs
Not energy efficient - higher running costs
Current
68Potential
75CO2 Rating
Very energy efficient - lower running costs
Not energy efficient - higher running costs
