This calculator provides a guide to the amount of residential stamp duty you may pay and does not guarantee this will be the actual cost. This calculation is based on the Stamp Duty Land Tax Rates for residential properties purchased from 23rd September 2022 and second homes from 31st October 2024. For more information on Stamp Duty Land Tax, click here.
4 bedroom End Terrace House for sale, Thistle Lane, Wixams, Bedfordshire, MK42
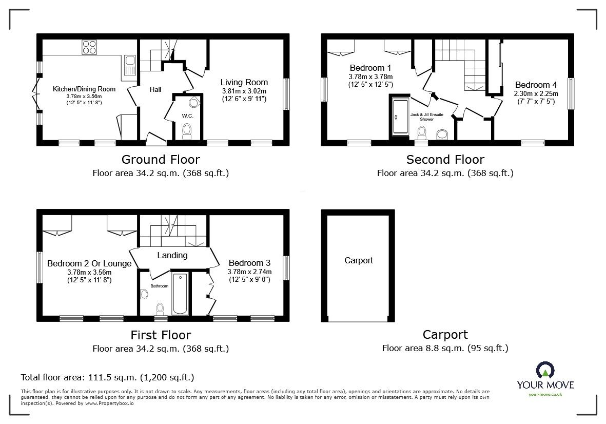
Features and Description
- Highly Attractive Four Double Bedroom Town House
- Offering Lots Of Space And A Versatile Accommodation
- Tucked Away Wixams Location Near Amenities
- Living Room And Fitted Kitchen/Dining Room
- Downstairs Cloakroom
- Fitted Wardrobes To All Bedrooms
- Ensuite And Fitted Family Bathroom Suite
- Garden And Carport With Off Road Parking For 2 Cars
- Ideal Universal Studios Investment Or Family Home
- Council Tax Band D And EPC Rated B
A GREAT HIGHLY SPACIOUS FOUR BEDROOM FAMILY HOME IN THE SOUGHT AFTER WIXAMS AREA. Just round the corner from the Wixams Tree Primary and Academy Schools, with access to lovely walks and parks. It offers you:- A Hall * Cloakroom * Living Room * Fitted Kitchen/Dining Room * Four Double Bedrooms With Fitted Wardrobes * Ensuite Shower * Fitted Family Bathroom * Garden * Carport And Off Road Parking For Two Cars * Access To A Shop And The Bypass
Whether your looking for a buy to let investment with Universal Studios in mind or a lovely family home to live in, then look no further. This spacious family home offers you a nice range of light and airy twin aspect rooms and fitted wardrobes to all the bedrooms. With it being a town house, it also offers you a versatile accommodation to suit you and your families needs. Whilst being sat in a lovely quiet tucked away cul de sac location within easy access to good schools, supermarkets, lovely walks and children's themed parks. Downstairs offers you an entrance hall with a fitted cloakroom, a twin aspect living room and a lovely large fitted kitchen/dining room with integrated appliances, and French doors leading out onto your garden. The first floor provides you with two large double bedrooms with fitted wardrobes and a family bathroom suite. Where the second bedroom could be used as a first floor lounge. The second floor offers you a top floor main bedroom with fitted wardrobes and a Jack and Jill ensuite shower room, with a fourth spare double bedroom with fitted wardrobes. Whilst outside you have a lawn garden with a patio and gated side access. To the front of the property you have a landscaped front garden with a further a block paved area, providing off road parking for a car. To the side of the property you have a carport in a block providing off road parking for two cars with further designated off road parking areas within the road. Ideal as a Air BNB for Universal Studios. Council Tax Band D and EPC Rated B.
Location
Situated off of the A6 towards Luton in the highly popular and modern village location of Wixams. Renowned for it's good local schooling, access to lovely parks, quayside and field walks. This property is sat in a nice tucked away, position off of Southern Cross in Bluebell Road, having access to the sought after Wixams Tree Primary and Academy schools. It also provides you with access to a supermarket, hairdressers. community centre and sports centre. There is a local Garden Centre In Wixams with a cafe and a vets. You have regular bus services and excellent transport links down to Luton, with the highly anticipated and under construction railway station. Which will provide you with access to London and Luton Airport Parkway. The bypass is only a short drive away giving you excellent road links to the A1, M1 and A600 if you commute by car.
IMPORTANT NOTE TO POTENTIAL PURCHASERS:
We endeavour to make our particulars accurate and reliable, however, they do not constitute or form part of an offer or any contract and none is to be relied upon as statements of representation or fact. The services, systems and appliances listed in this specification have not been tested by us and no guarantee as to their operating ability or efficiency is given. All photographs and measurements have been taken as a guide only and are not precise. Floor plans where included are not to scale and accuracy is not guaranteed. If you require clarification or further information on any points, please contact us, especially if you are travelling some distance to view. Fixtures and fittings other than those mentioned are to be agreed with the seller.
Thistle Lane, Wixams, Bedfordshire, MK42
Additional Information
-
Property refBED260019
-
EPCB
-
TenureFreehold
-
Council TaxD
-
Local authorityBedford Borough Council
The pin shows the exact address of the property
Energy Efficiency Rating
Very energy efficient - lower running costs
Not energy efficient - higher running costs
Current
85Potential
95CO2 Rating
Very energy efficient - lower running costs
Not energy efficient - higher running costs
