This calculator provides a guide to the amount of residential stamp duty you may pay and does not guarantee this will be the actual cost. This calculation is based on the Stamp Duty Land Tax Rates for residential properties purchased from 23rd September 2022 and second homes from 31st October 2024. For more information on Stamp Duty Land Tax, click here.
2 bedroom End Terrace House for sale, Water Street, Wigton, Cumbria, CA7
Features and Description
This two bedroom cottage is located in the market town of Wigton, close to shops, local amenities and transport links. This property is perfect for first time buyers or as a buy to let, the property has recently been rented out for £650.00 PCM achieving a yield of 7%.
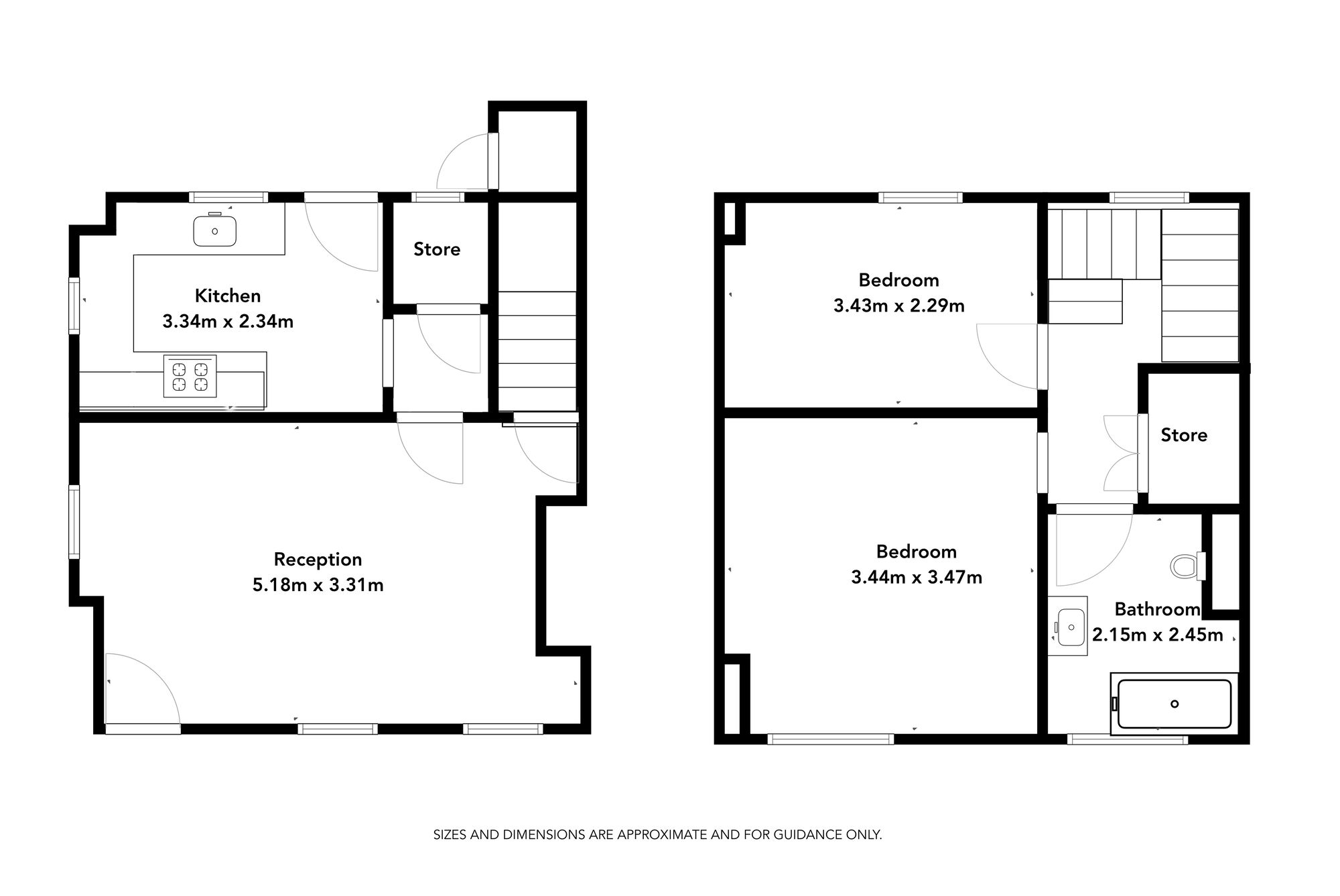
Living Room
10'9" x 15'6" (3.28m x 4.72m)
Good size living room with electric fire and feature fire surround, stairs lead to the first floor.
Kitchen
7'9" x 11'0" (2.36m x 3.36m)
Kitchen with a range of fitted units, gas hob, electric oven and access to the handy utility area.
Bedroom 1
10'12" x 11'1" (3.35m x 3.38m)
Double bedroom.
Bedroom 2
8'3" x 11'1" (2.51m x 3.38m)
Good size single bedroom.
Bathroom
5'9" x 6'10" (1.75m x 2.08m)
Modern bathroom with bath, shower over, w/c and wash hand basin.
Outside
Outside is a private low maintenance garden with storage shed and patio area.
Agents Notes
The property has double glazing and gas heating. There is no parking at the property. Water Street car park is located near by which offers a paying permit system.
AGENTS NOTES
A damp report has been carried out on this property and has confirmed recommended works. The report is available for all interested buyers. Please ask a member of our team.PERSONAL INTEREST: The seller of this property is an employee of Property@Cumbria Ltd, Trading as Your Move.
IMPORTANT NOTE TO POTENTIAL PURCHASERS:
We endeavour to make our particulars accurate and reliable, however, they do not constitute or form part of an offer or any contract and none is to be relied upon as statements of representation or fact. The services, systems and appliances listed in this specification have not been tested by us and no guarantee as to their operating ability or efficiency is given. All photographs and measurements have been taken as a guide only and are not precise. Floor plans where included are not to scale and accuracy is not guaranteed. If you require clarification or further information on any points, please contact us, especially if you are travelling some distance to view. Fixtures and fittings other than those mentioned are to be agreed with the seller.
Agents are required by law to conduct Anti-Money Laundering checks on all buyers. Your Move Carlisle, Whitehaven and Wigton charge £30 including VAT per buyer. The charge covers the cost of obtaining and retaining relevant data from a third party. This fee is payable in advance prior to issuing a memorandum of sale and before the property can be sale agreed.
Water Street, Wigton, Cumbria, CA7
Additional Information
-
Property refWIG250408
-
EPCD
-
TenureFreehold
-
Council TaxA
-
Local authorityCumberland Council
Good size living room with electric fire and feature fire surround, stairs lead to the first floor.
Kitchen with a range of fitted units, gas hob, electric oven and access to the handy utility area.
Double bedroom.
Good size single bedroom.
Modern bathroom with bath, shower over, w/c and wash hand basin.
Outside is a private low maintenance garden with storage shed and patio area.
The pin shows the exact address of the property
Energy Efficiency Rating
Very energy efficient - lower running costs
Not energy efficient - higher running costs
Current
62Potential
88CO2 Rating
Very energy efficient - lower running costs
Not energy efficient - higher running costs
