3 bedroom End Terrace House to rent, Four Lane Ends, Hetton-le-Hole, Tyne and Wear, DH5
Available Unfurnished, from 01/04/2026
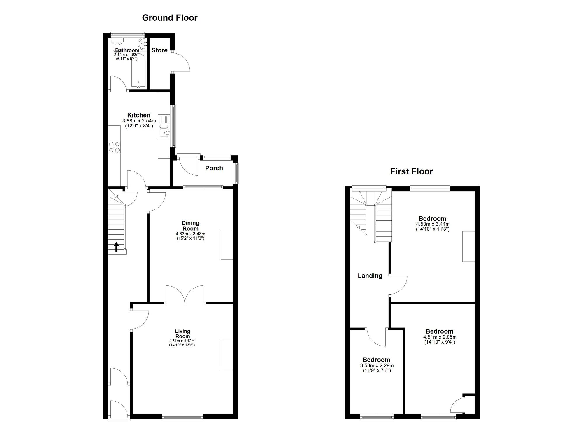
Features and Description
- 3 Bed End Of Terrace House
- Available Now
- Long Term Let Considered
- Approx. 113SqM - 1,216SqFt
- Unfurnished
- Council Tax Band A
- EPC Rating D
This is a fine example of a three bedroom traditional end of terrace house that has been significantly improved over the years and is ready to move into
A spacious porch and hallway guides you into the principal Lounge with doors into the Dining Room and both are served by a modern style kitchen with built in appliances.
The three bedrooms to the first floor are served by the ground floor Bathroom with a shower over the bath
There is a rear porch and a traditional rear yard wit timber garden store.
Set in a popular and well served residential area with a wide choice of local shopping, schooling of all grades, health and leisure facilities al being close at hand.
IMPORTANT NOTE TO POTENTIAL RENTERS:
We endeavour to make our particulars accurate and reliable, however, they do not constitute or form part of an offer or any contract and none is to be relied upon as statements of representation or fact. The services, systems and appliances listed in this specification have not been tested by us and no guarantee as to their operating ability or efficiency is given. All photographs and measurements have been taken as a guide only and are not precise. Floor plans where included are not to scale and accuracy is not guaranteed. If you require clarification or further information on any points, please contact us, especially if you are travelling some distance to view.
All properties are available for a minimum length of time, with the exception of short term accommodation. Please contact the branch for details. A security deposit of at least one month’s rent is required. Rent is to be paid one month in advance. It is the tenant’s responsibility to insure any personal possessions. Payment of all utilities including water rates or metered supply and Council Tax is the responsibility of the tenant in every case.
Four Lane Ends, Hetton-le-Hole, Tyne and Wear, DH5
Similar properties to rent by Your Move Houghton-le-Spring
The pin shows the exact address of the property
Energy Efficiency Rating
Very energy efficient - lower running costs
Not energy efficient - higher running costs
Current
64Potential
85CO2 Rating
Very energy efficient - lower running costs
Not energy efficient - higher running costs
