This calculator provides a guide to the amount of residential stamp duty you may pay and does not guarantee this will be the actual cost. This calculation is based on the Stamp Duty Land Tax Rates for residential properties purchased from 23rd September 2022 and second homes from 31st October 2024. For more information on Land and Buildings Transaction Tax, click here.
2 bedroom Flat for sale, Ann Street, Gatehouse of Fleet, Dumfries and Galloway, DG7
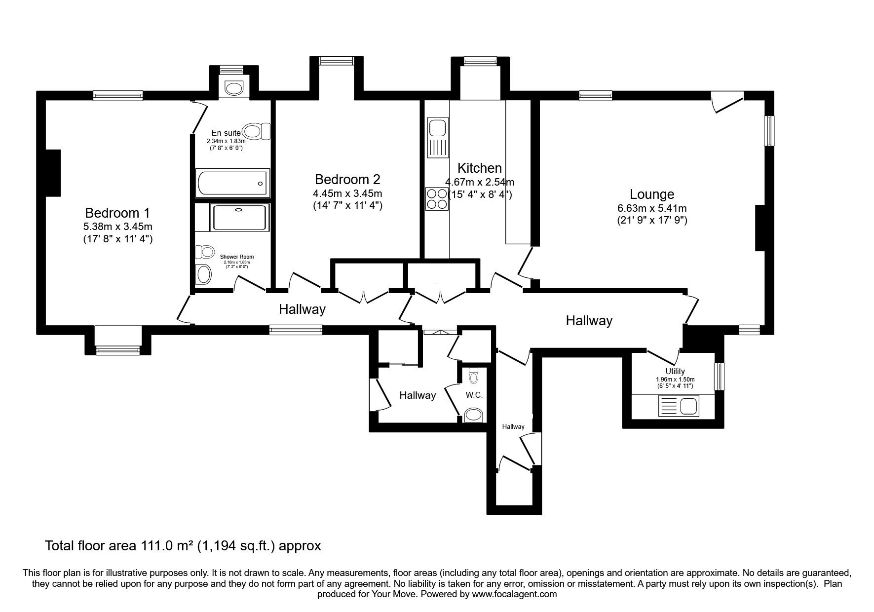
Features and Description
- Charming two-bedroom apartment within a characterful converted mill building
- Bright and spacious 21'9" lounge with feature fireplace
- Modern fitted kitchen with integrated appliances
- Generously proportioned bedrooms with excellent storage
- Well-maintained communal grounds
- Single garage, communal parking and shared gardens
- Peaceful semi-rural setting with attractive outlooks
Set within an attractive period mill conversion, this beautifully presented two-bedroom ground-floor apartment offers generous accommodation, modern finishes and an abundance of charm. Positioned in a peaceful semi-rural setting, the property enjoys leafy surroundings and well-kept communal gardens, along with the benefit of a single garage and additional communal parking.
Internally, the apartment provides a spacious and welcoming layout. A bright lounge forms the heart of the home, complemented by a multiple windows that allow natural light to flood the room. The modern kitchen offers stylish cabinetry, high-quality work surfaces and modern appliances, ideal for everyday cooking and entertaining.
Both bedrooms are excellent doubles, with Bedroom 1 featuring an en-suite shower room. A second shower room serves the remainder of the accommodation. Ample hallway storage and a practical utility area add further convenience.
This charming home blends character features with modern comforts and is ideal for buyers seeking a peaceful lifestyle in a unique historic setting. Early viewing is highly recommended.
IMPORTANT NOTE TO POTENTIAL PURCHASERS:
We endeavour to make our particulars accurate and reliable, however, they do not constitute or form part of an offer or any contract and none is to be relied upon as statements of representation or fact. The services, systems and appliances listed in this specification have not been tested by us and no guarantee as to their operating ability or efficiency is given. All photographs and measurements have been taken as a guide only and are not precise. Floor plans where included are not to scale and accuracy is not guaranteed. If you require clarification or further information on any points, please contact us, especially if you are travelling some distance to view. Fixtures and fittings other than those mentioned are to be agreed with the seller.
Ann Street, Gatehouse of Fleet, Dumfries and Galloway, DG7
Additional Information
-
Property refDUM250433
-
EPCF
-
TenureFreehold
-
Council TaxE
-
Local authorityDumfries & Galloway Council
The pin shows the exact address of the property
Energy Efficiency Rating
Very energy efficient - lower running costs
Not energy efficient - higher running costs
Current
36Potential
71CO2 Rating
Very energy efficient - lower running costs
Not energy efficient - higher running costs
